Mieszkanie na sprzedaż
379 500 zł
38 m2



1 / 3
Szczegóły ogłoszenia
- Symbol oferty NGK-MS-496
- Typ oferty mieszkanie na sprzedaż
- Cena 379 500 zł
- Charakterystyka mieszkania 37.95 m2, 2 pokoje
- Budynek kamienica
- Rozkład mieszkania 4p piętro
- Media Ogrzewanie: inne; Woda: tak-podgrzewacz elektryczny; Gaz: brak
- Dojazd asfalt
- Instalacje nowe
- Okna drewniane
- Otoczenie centrum miasta
- Stan lokalu deweloperski
- Technologia budowlana cegła
Lokalizacja
- Adres zachodniopomorskie, Szczecin, Śródmieście
Opis nieruchomości
Do sprzedaży mieszkanie 2 pokojowe, z klimatyzacją, położone przy ul. Jagiellońskiej.
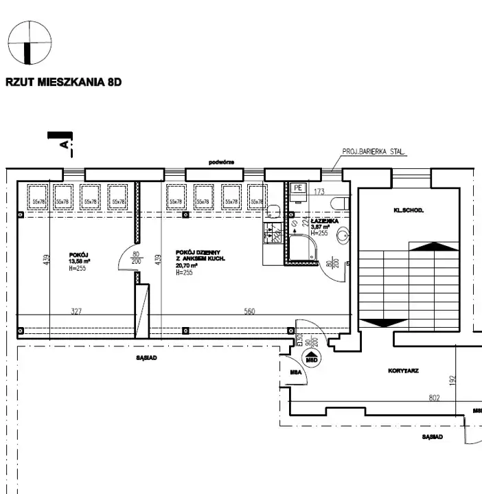
Adaptacja poddasza:
- pokój dzienny z aneksem kuchennym 20,70 m2,
- pokój 13,58 m2,
- łazienka 3,87 m2.
Mieszkanie o jednostronnej - południowej ekspozycji okien. Powierzchnia użytkowa wg. dokumentacji projektowej to 37,95 m2.
Lokal oddany będzie w standardzie deweloperskim z możliwością wykończenia lokalu pod klucz.
Standard: podłogi - płyta OSB oraz płyta ognioodporna, ściany i sufity wygładzone i
pomalowane na biało, rozprowadzone instalacje: elektryczna i wodno – kanalizacyjna. W kuchni i w łazience wyprowadzone, w zależności od projektu, wszystkie podłączenia pod zlewy, umywalki, wanny lub kabiny prysznicowe, pralki i płyty i piekarniki. Drzwi wejściowe antywłamaniowe, ognioodporne.
Ogrzewanie i chłodzenie lokalu - klimatyzator, ciepła woda - podgrzewacz elektryczny.
Podana cena jest ceną brutto, zawiera podatek VAT - kupujący nie płaci 2 % podatku PCC.
Polecam.
Adaptacja poddasza:
- pokój dzienny z aneksem kuchennym 20,70 m2,
- pokój 13,58 m2,
- łazienka 3,87 m2.
Mieszkanie o jednostronnej - południowej ekspozycji okien. Powierzchnia użytkowa wg. dokumentacji projektowej to 37,95 m2.
Lokal oddany będzie w standardzie deweloperskim z możliwością wykończenia lokalu pod klucz.
Standard: podłogi - płyta OSB oraz płyta ognioodporna, ściany i sufity wygładzone i
pomalowane na biało, rozprowadzone instalacje: elektryczna i wodno – kanalizacyjna. W kuchni i w łazience wyprowadzone, w zależności od projektu, wszystkie podłączenia pod zlewy, umywalki, wanny lub kabiny prysznicowe, pralki i płyty i piekarniki. Drzwi wejściowe antywłamaniowe, ognioodporne.
Ogrzewanie i chłodzenie lokalu - klimatyzator, ciepła woda - podgrzewacz elektryczny.
Podana cena jest ceną brutto, zawiera podatek VAT - kupujący nie płaci 2 % podatku PCC.
Polecam.
Nota prawna
Opis oferty zawarty na stronie internetowej sporządzany jest na podstawie oględzin nieruchomości oraz informacji uzyskanych od właściciela, może podlegać aktualizacji i nie stanowi oferty określonej w art. 66 i następnych K.C.
Kalkulator kredytowy
Formularz kontaktowy