Dom na sprzedaż
























Szczegóły ogłoszenia
- Symbol oferty T4H-DS-221
- Typ oferty dom na sprzedaż
- Cena 2 150 000 zł
- Charakterystyka mieszkania 418 m2, 8 pokoi, do zamieszkania
- Media Ogrzewanie: ekogroszek; Woda: tak - miejska; Kanalizacja: miejska; Prąd: jest; Gaz: jest
- Bezpieczeństwo ogrodzenie działki: ogrodzona
- Balkon jest
- Dojazd asfalt
- Działka Zagospodarowana, płaska, prostokąt
- Garaż w bryle
- Instalacje dobre
- Material konstrukcyjny beton, cegła
- Okna PCV
- Otoczenie las
- Podpiwniczenie Tak
- Pokrycie dachu papa
- Pozwolenie na użytkowanie Tak
- Rodzaj domu inny
- Stan prawny Własność
- Taras taras duży
Lokalizacja
- Adres dolnośląskie, Szklarska Poręba, Szklarska Poręba Górna
Opis nieruchomości
Nieruchomość sprzedawana wyłącznie przez nasze biuro nieruchomości:-) Prosimy o umawianie prezentacji wyłącznie za pośrednictwem naszego biura.
W ogłoszeniu otrzymają Państwo poglądowe rzuty oraz ujęcia z drona, które ułatwią podjęcie decyzji już na etapie oglądania oferty! Rzuty nieruchomości dostępna na stronie internetowej naszego biura tj. www.team4home.pl
Biuro Nieruchomości Team4Home z przyjemnością prezentuje wyjątkową ofertę sprzedaży domu z funkcją pensjonatu, położonego w malowniczej części Szklarskiej Poręby, przy ul. Kasprowicza.
Nieruchomość o imponującej łącznej powierzchni 417,91 m² składa się z:
- budynku głównego o powierzchni całkowitej 262,14 m² (powierzchnia użytkowa 241,8 m²),
- przestronnego strychu o powierzchni ok. 74,8 m²,
- garażu o powierzchni ok. 21,18 m²,
- wolnostojącego pomieszczenia gospodarczego 23,28 m²,
- trzech balkonów o łącznej powierzchni 34,49 m².
Ta nieruchomość oferuje ogromny potencjał inwestycyjny oraz szerokie możliwości adaptacyjne – zarówno jako komfortowy dom rodzinny, jak i dochodowy pensjonat.
Najważniejsze atuty nieruchomości:
- 5 min spacerem od głównego deptaka .
- Wyjątkowa lokalizacja – bezpośrednie sąsiedztwo lasu (teren Nadleśnictwa) oraz wyjście na szlak w kierunku Drogi pod Reglami – idealne miejsce dla turystów i miłośników górskich wędrówek. Daje to nam gwarancję, że nie powstaną nowe zabudowania.
- Z okien, balkonów i tarasów roztacza się przepiękny widok na górskie panoramy, w tym m.in. na Śnieżne Kotły oraz Wysoki Kamień – jedne z najbardziej rozpoznawalnych szczytów Karkonoszy.
- Dom wykończony w 2010 roku, wszystkie instalacje (elektryczna i grzewcza) wykonane w miedzi.
- Ogrzewanie: piec na ekogroszek + piec gazowy do podgrzewania wody. Możliwość montażu pieca gazowego dwufunkcyjnego.
- Woda i kanalizacja z sieci miejskiej.
- Księga wieczysta bez obciążeń.
- Dach pokryty gontem papowym, pełnowymiarowa piwnica (możliwość stworzenia strefy SPA lub innej aranżacji).
- Deski na podłogach w pomieszczeniach, terakota w łazienkach.
- Nieruchomość posiada osobne wejścia na każde piętro, co daje pełną niezależność i świetne warunki do prowadzenia działalności pensjonatowej.
- Możliwość dalszego podziału nieruchomości na oddzielne apartamenty lub wyodrębnienie mieszkań.
- Strych z potencjałem – do adaptacji na cele mieszkalne lub najem krótkoterminowy.
- Garaż w bryle budynku oraz dodatkowe 3 miejsca parkingowe przy posesji. Na przeciwko domu, na terenie gminnym – kolejne 3 miejsca parkingowe przy lesie. Dodatkowo możliwość zaparkowania do 3 aut na dojeździe do garażu.
- Na posesji znajduje się również budynek gospodarczy, który może pełnić funkcję składziku lub dodatkowej przestrzeni użytkowej.
- Do dyspozycji mieszkańców i gości: ogród z wydzieloną strefą relaksu, miejsce do wypoczynku na świeżym powietrzu, a także tarasy i balkony – idealne do porannej kawy z widokiem na góry i las.
- Możliwość zakupu działki o powierzchni ok. 400 m² położonej naprzeciwko domu – również uzbrojonej. W przeszłości na działce było wydane pozwolenie na budowę oraz został wybrany grunt pod budowę.
- Możliwość pozostawienie wyposażenia (do indywidualnych rozmów) – w tym nowo wykończonej kuchni o wartości 40 000 zł z 2025 roku.
- Gotowa infrastruktura kominowa.
- Piwnica [49,2m2 + 15,29m2]:
- Korytarz (7,8m2),
- Pomieszczenie (10,84m2),
- Pomieszczenie (3,46m2),
- Pomieszczenie (6,5m2),
- Pomieszczenie (12,9m2),
- Pomieszczenie (7,7m2),
- Schowek (8,94m2) – wys. 0,55m,
- Schowek (6,35m2) – wys. 0,55m.
- Korytarz (2,2m2),
- Przedpokój (7,31m2)
- Kuchnia (17,59m2),
- Pokój (17,59m2),
- Pokój (10,38m2),
- Łazienka (5,46m2),
- Korytarz (2,2m2),
- Korytarz (2,02m2),
- Korytarz (1,1m2),
- Przedpokój (4,95m2),
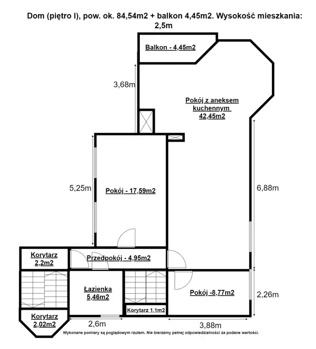
- Pokój z aneksem kuchennym (42,45m2),
- Pokój (17,59m2),
- Pokój (8,77m2),
- Łazienka (5,46m2),
- Balkon (4,45m2),
- Korytarz (2,2m2),
- Korytarz (2,02m2),
- Przedpokój (6,09m2),
- Pokój (21,47m2),
- Pokój (17,78m2),
- Pokój (14,97m2),
- Łazienka (5,46m2),
- Balkon (20,54m2),
- Balkon (9,5m2).
- Strych nad domem – 74,8m2 [8,15m x 91,5m] + 16m2 [4m x 4m] (deski), wysokość maks. 3,5m na środku, skosy do ziemi + ciągi komunikacyjne 2,64m2.
- Pomieszczenie gospodarcze (wolnostojące) – 23,28m2 [6,65m x 3,5m]. Wysokość 2,7m.
- Garaż – 21,18m2 [5,5m x 3,85m]
Zapraszam na prezentację :)
Przy zakupie oferujemy wsparcie przy uzyskaniu finansowania na zakup nieruchomości z opcją dodatkowych korzyści! Szczegóły u Doradcy Finansowego. Oferujemy szereg innych usług związanych z rynkiem nieruchomości. Zapraszamy do współpracy z naszym biurem.
Prezentowana oferta nie stanowi oferty handlowej w rozumieniu Art. 66 par. 1 Kodeksu Cywilnego, a dane w niej zawarte mają charakter jedynie informacyjny i mogą ulec zmianie.