Dom na sprzedaż





















Szczegóły ogłoszenia
- Symbol oferty RAM-DS-2280
- Typ oferty dom na sprzedaż
- Cena 315 000 zł
- Charakterystyka mieszkania 154.6 m2, 6 pokoi
- Media Ogrzewanie: piec; Woda: ciepła - piecyk; Kanalizacja: miejska; Prąd: jest
Lokalizacja
- Adres lubuskie, wschowski, Szlichtyngowa
Opis nieruchomości
Budynek mieszkalny wraz z zabudowaniami gospodarczymi położony na działce o powierzchni 2228 m2 w miejscowości Dryżyna, gm. Szlichtyngowa
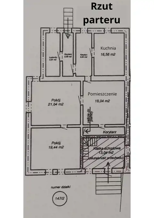
Powierzchnia domu według dokumentów:
- 91,62 m2 - parter
- 62,98 m2 – piętro
- 69,65 m2 - strych
Dom posiada 3 części:
Parter :
- kuchnia
- 3 pokoje/pomieszczenia
- łazienka z WC
- 2 korytarze
1 Piętro:
- 3 pokoje/pomieszczenia
Strych:
- 2 pomieszczenia
Parter posiada niezależne wejście do nieruchomości, natomiast 1 piętro i strych posiadają wspólną klatkę z niezależnymi wejściami. Swobodnie mogą mieszkać 2 lub 3 rodziny.
Media:
- Kanalizacja - gmina
- Woda zimna - gmina
- woda ciepła - piec
- ogrzewanie piec „klasa 5” pellet / ekogroszek, w sypialni ogrzewanie podłogowe
- założona fotowoltaika- zużycie prądu na poziomie 0
Dodatkowe informację:
- budynki gospodarcze
- duża stodoła
- Parter posiada niezależne wejście do nieruchomości, natomiast 1 piętro i strych posiadają wspólną klatkę z niezależnymi wejściami. Swobodnie mogą mieszkać 2 lub 3 rodziny.
Zapraszamy do kontaktu
RAM Nieruchomości
Krzysztof Bajer
Ul. Starowałowa 1
67-200 Głogów
Tel.:
Krzysztof Bajer – 501 268 626
Magdalena Kotwas 732-775-767
Nota prawna
Opis oferty zawarty na stronie internetowej sporządzany jest na podstawie oględzin nieruchomości oraz informacji uzyskanych od właściciela, może podlegać aktualizacji i nie stanowi oferty określonej w art. 66 i następnych K.C.
Do kosztów uzyskania nieruchomości należy doliczyć również kwotę podatku od czynności cywilno - prawnych (PCC - 2%), koszt taksy notarialnej oraz koszt obsługi transakcji przez biuro nieruchomości.