Mieszkanie na sprzedaż













Szczegóły ogłoszenia
- Symbol oferty BS5-MS-310453
- Typ oferty mieszkanie na sprzedaż
- Cena 495 780 zł
- Charakterystyka mieszkania 62.05 m2, 3 pokoje
- Budynek apartamentowiec; rok budowy: 2025
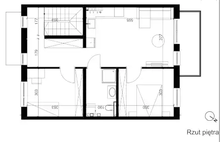
- Rozkład mieszkania 1p piętro
- Media Ogrzewanie: piec dwufunkcyjny; Woda: piec gazowy dwufunkcyjny; Gaz: tak - miejski
- Balkon jest
- Dojazd asfaltowa/kostka
- Garaż miejsce postojowe przed budynkiem
- Ilość sypialni 2
- Instalacje nowe
- Okna PCV 3 szyby, ciepły montaż
- Otoczenie zabudowa mieszana
- Stan lokalu deweloperski
- Technologia budowlana silikat
Lokalizacja
- Adres małopolskie, Tarnów, Zabłocie
Opis nieruchomości
Przestronne mieszkanie blisko centrum i komunikacji idealne dla studentów – 62,05 m² | Tarnów, ul. Skrzyszowska, Osiedle „Nowa Pradolina”
Przedsprzedaż ruszyła!
Na sprzedaż oferujemy przestronne, 3-pokojowe mieszkanie o powierzchni 62,05 m², położone na 1 piętrze w nowoczesnej inwestycji „Nowa Pradolina” w Tarnowie. Do mieszkania przynależy balkon o powierzchni 4,54 m², który stanowi idealne miejsce na poranną kawę lub odpoczynek po pracy.
Rozkład pomieszczeń:
- Salon z aneksem kuchennym: 20,92 m²
- Sypialnia 1: 10,60 m²
- Sypialnia 2: 10,70 m²
- Łazienka: 5,76 m²
- Wiatrołap i przedpokój
- Balkon: 4,5 m²
Najważniejsze atuty:
- Miejsce postojowe w cenie
- Ogrzewanie podłogowe z piecem gazowym dwufunkcyjnym
- Trzyszybowe okna zapewniające doskonałą izolację
- Możliwość montażu instalacji fotowoltaicznej
- Budynki w technologii tradycyjnej, ściany z bloczków silikatowych, ocieplone wełną mineralną lub styropianem
- Możliwość wykończenia mieszkania „pod klucz” zgodnie z prezentowanym standardem
- Nowoczesne, ogrodzone i monitorowane osiedle z oświetleniem i strefą rekreacyjną nad strumieniem
- Zachowany starodrzew, nowe nasadzenia, ogrody deszczowe wzdłuż chodników
Lokalizacja i okolica:
- Zielona, spokojna okolica w sąsiedztwie terenów rekreacyjnych
- Szybki dojazd do centrum Tarnowa oraz autostrady A4
- Centrum usług na terenie osiedla – większość spraw załatwisz bez wychodzenia poza osiedle
- Dla rodzin i dzieci: plac zabaw, ścieżki spacerowe i rowerowe w środku lasku
- Szybki dojazd do centrum Tarnowa (8 min), dworca PKP (12 min) i Krakowa (60 min)
Dodatkowe informacje:
- Planowany termin zakończenia I etapu inwestycji: III kwartał 2026 r.
- Pomoc doradcy kredytowego na miejscu
Zapraszamy do kontaktu i na prezentację!
Nie przegap okazji – skorzystaj z oferty przedsprzedażowej i wybierz wymarzone mieszkanie na zielonym, nowoczesnym osiedlu w Tarnowie.
Szczegóły oferty:
798 352 683
marek3@sadurscy.pl