Mieszkanie na sprzedaż


















Szczegóły ogłoszenia
- Symbol oferty BS5-MS-310454
- Typ oferty mieszkanie na sprzedaż
- Cena 651 955 zł
- Charakterystyka mieszkania 72.52 m2, 4 pokoje
- Budynek apartamentowiec; rok budowy: 2025
- Rozkład mieszkania parter piętro
- Media Ogrzewanie: piec dwufunkcyjny; Woda: piec gazowy dwufunkcyjny; Gaz: tak - miejski
- Dojazd asfaltowa/kostka
- Garaż miejsce postojowe przed budynkiem
- Ilość sypialni 3
- Instalacje nowe
- Okna PCV 3 szyby, ciepły montaż
- Otoczenie zabudowa mieszana
- Stan lokalu deweloperski
- Taras taras duży
- Technologia budowlana silikat
Lokalizacja
- Adres małopolskie, Tarnów, Zabłocie
Opis nieruchomości
Komfortowe, dwupoziomowe mieszkanie z ogródkiem i miejsce postojowym - idealne dla rodziny o pow. 72,52 m² | Tarnów, ul. Skrzyszowska, Osiedle „Nowa Pradolina”
Przedsprzedaż ruszyła!
Na sprzedaż przestronne, dwupoziomowe mieszkanie o powierzchni 72,52 m², położone na parterze i 1. piętrze nowoczesnego osiedla „Nowa Pradolina” w Tarnowie. Do mieszkania przynależy prywatny ogródek z komórką narzędziową o powierzchni 35,90 m², idealny do rekreacji i odpoczynku.
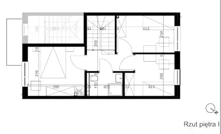
Rozkład pomieszczeń:
Parter:
- Salon z aneksem kuchennym: 25,62 m²
- Łazienka: 4,05 m²
- Wiatrołap i przedpokój
- Ogródek z komórką narzędziową: 35,90 m²
Piętro:
- Pokój 1: 11,24 m²
- Pokój 2: 8,62 m²
- Pokój 3: 7,57 m²
- Druga łazienka: 3,31 m²
- Przedpokój
Najważniejsze atuty:
- Miejsce postojowe w cenie
- Ogrzewanie podłogowe z piecem gazowym dwufunkcyjnym
- Trzyszybowe okna zapewniające doskonałą izolację
- Możliwość montażu instalacji fotowoltaicznej
- Budynki w technologii tradycyjnej, ściany z bloczków silikatowych, ocieplone wełną mineralną lub styropianem
- Możliwość wykończenia mieszkania „pod klucz” zgodnie z prezentowanym standardem
- Nowoczesne, ogrodzone i monitorowane osiedle z oświetleniem i strefą rekreacyjną nad strumieniem
- Zachowany starodrzew, nowe nasadzenia, ogrody deszczowe wzdłuż chodników
Lokalizacja i okolica:
- Zielona, spokojna okolica w sąsiedztwie terenów rekreacyjnych
- Szybki dojazd do centrum Tarnowa oraz autostrady A4
- Centrum usług na terenie osiedla – większość spraw załatwisz bez wychodzenia poza osiedle
- Dla rodzin i dzieci: plac zabaw, ścieżki spacerowe i rowerowe w środku lasku
- Szybki dojazd do centrum Tarnowa (8 min), dworca PKP (12 min) i Krakowa (60 min)
Dodatkowe informacje:
- Planowany termin zakończenia I etapu inwestycji: III kwartał 2026 r.
- Pomoc doradcy kredytowego na miejscu
Zapraszamy do kontaktu i na prezentację!
Nie przegap okazji – skorzystaj z oferty przedsprzedażowej i wybierz wymarzone mieszkanie na zielonym, nowoczesnym osiedlu w Tarnowie.
Szczegóły oferty:
798 352 683
marek3@sadurscy.pl