Mieszkanie na sprzedaż
274 716 zł
53 m2








1 / 8
Szczegóły ogłoszenia
- Symbol oferty LCM-MS-14212
- Typ oferty mieszkanie na sprzedaż
- Cena 274 716 zł
- Charakterystyka mieszkania 52.83 m2, 3 pokoje
- Budynek blok; rok budowy: 2017
- Rozkład mieszkania parter piętro
- Media Ogrzewanie: miejskie; Woda: tak - miejska; Gaz: brak
- Balkon duży
- Dojazd asfalt
- Ilość sypialni 2
- Instalacje nowe
- Okna PCV
- Otoczenie działki zabudowane
- Plac zabaw Tak
- Stan lokalu do wykończenia
- Taras taras duży
- Technologia budowlana cegła
- Winda Tak
Lokalizacja
- Adres kujawsko-pomorskie, Toruń, Jakubskie Przedmieście
Opis nieruchomości
*NIE POBIERAMY PROWIZJI OD KUPUJĄCEGO. WYNAGRODZENIE POŚREDNIKA POKRYWA SPRZEDAJĄCY*
STYLOWE OSIEDLE I ROZBUDOWANA INFRASTRUKTURA - 2 KM OD STAREGO MIASTA.
To jeszcze nie wszystkie z wielu atutów prezentowanej inwestycji.
Oferta sprzedaży na RYNKU PIERWOTNYM. KUPUJĄCY NIE PŁACI 2% PODATKU PCC.
Ogrodzone, monitorowane osiedle blisko Starówki oraz głównych szlaków komunikacyjnych Torunia.
Architektura o prostej i nowoczesnej formie. Dbałość o jakość wykończenia. Szlachetny beton w połączeniu ze szkłem oraz nierdzewną stalą.
Duża liczba miejsc parkingowych oraz plac zabaw w ramach osiedla, budynki wyposażone w WINDĘ. Hala garażowa w podziemiu.
Lokalizacja która zapewnia szybki dostęp do punktów potrzebnych w codziennym funkcjonowaniu oraz szybki wyjazd z miasta.
W sąsiedztwie nie brakuje naturalnych terenów rekreacyjnych.
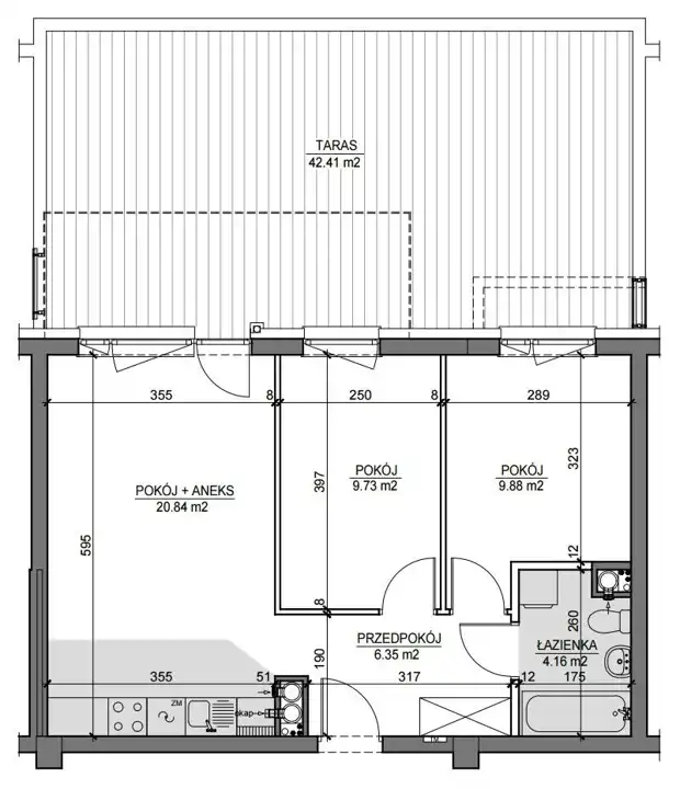
Prezentowane mieszkanie położone jest na parterze.
Posiada powierzchnię 52,83 m2 na którą składają się: salon z aneksem, 2 pokoje, łazienka z WC oraz przedpokój.
Z salonu prowadzi wyjście na duży TARAS: 42,41 m2.
Ekspozycja okien na wschód.
STYLOWE OSIEDLE I ROZBUDOWANA INFRASTRUKTURA - 2 KM OD STAREGO MIASTA.
To jeszcze nie wszystkie z wielu atutów prezentowanej inwestycji.
Oferta sprzedaży na RYNKU PIERWOTNYM. KUPUJĄCY NIE PŁACI 2% PODATKU PCC.
Ogrodzone, monitorowane osiedle blisko Starówki oraz głównych szlaków komunikacyjnych Torunia.
Architektura o prostej i nowoczesnej formie. Dbałość o jakość wykończenia. Szlachetny beton w połączeniu ze szkłem oraz nierdzewną stalą.
Duża liczba miejsc parkingowych oraz plac zabaw w ramach osiedla, budynki wyposażone w WINDĘ. Hala garażowa w podziemiu.
Lokalizacja która zapewnia szybki dostęp do punktów potrzebnych w codziennym funkcjonowaniu oraz szybki wyjazd z miasta.
W sąsiedztwie nie brakuje naturalnych terenów rekreacyjnych.
Prezentowane mieszkanie położone jest na parterze.
Posiada powierzchnię 52,83 m2 na którą składają się: salon z aneksem, 2 pokoje, łazienka z WC oraz przedpokój.
Z salonu prowadzi wyjście na duży TARAS: 42,41 m2.
Ekspozycja okien na wschód.
Termin realizacji: 30 listopad 2017 roku.
POLECAM I ZAPRASZAM NA PREZENTACJĘ!
Jakub Mścichecki tel. 793 941 091
POLECAM I ZAPRASZAM NA PREZENTACJĘ!
Jakub Mścichecki tel. 793 941 091
Nota prawna
Opis oferty zawarty na stronie internetowej sporządzany jest na podstawie oględzin nieruchomości oraz informacji uzyskanych od właściciela, może podlegać aktualizacji i nie stanowi oferty określonej w art. 66 i następnych K.C.
Kalkulator kredytowy
Formularz kontaktowy