Mieszkanie na sprzedaż
317 135 zł
53 m2







1 / 7
Szczegóły ogłoszenia
- Symbol oferty LCM-MS-14186
- Typ oferty mieszkanie na sprzedaż
- Cena 317 135 zł
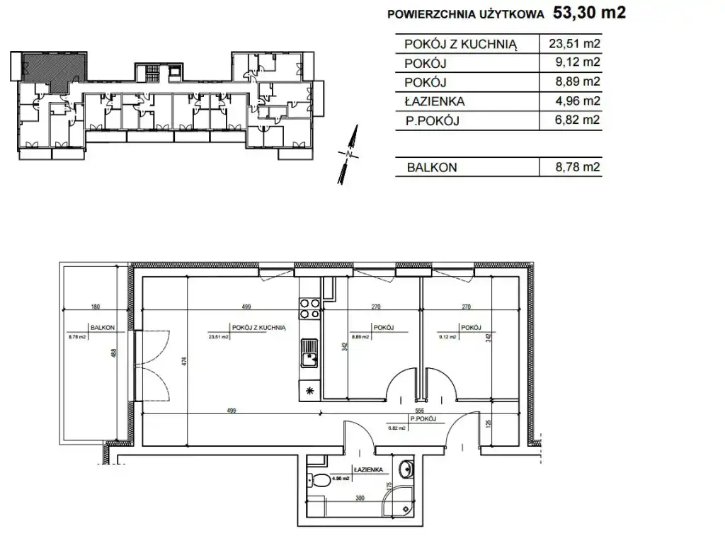
- Charakterystyka mieszkania 53.3 m2, 3 pokoje
- Budynek blok; rok budowy: 2017
- Rozkład mieszkania 1p piętro
- Media Ogrzewanie: miejskie; Woda: tak - miejska; Gaz: brak
- Balkon duży
- Dojazd asfalt
- Ilość sypialni 2
- Instalacje nowe
- Okna PCV
- Otoczenie las
- Plac zabaw Tak
- Stan lokalu do wykończenia
- Technologia budowlana cegła
- Winda Tak
Lokalizacja
- Adres kujawsko-pomorskie, Toruń, Wrzosy
Opis nieruchomości
*NIE POBIERAMY PROWIZJI OD KUPUJĄCEGO. WYNAGRODZENIE POŚREDNIKA POKRYWA SPRZEDAJĄCY*
MIESZKANIA Z RYNKU PIERWOTNEGO PRZY KTÓRYM KUPUJĄCY NIE PŁACI 2% PODATKU PCC.
To osiedle to oferta dla Klientów przywiązujących wagę do wygód miejskiego życia, a jednocześnie ceniących spokój i bliskość natury. Osiedle zlokalizowane jest w sąsiedztwie lasu i kompleksów rekreacyjnych, jednocześnie niedaleko centrum i Starego Miasta: 5,5 km.
W najbliższym otoczeniu znajdują się sklepy, markety, piekarnia, szkoła podstawowa i gimnazjum, przedszkole, przystanki komunikacji miejskiej.
Budynki charakteryzują się dbałością o każdy szczegół. Wykończone są wysokiej jakości materiałami. Wyposażone w WINDĘ, HALĘ GARAŻOWĄ.
Nowoczesna architektura oferuje niespotykane dotąd typy mieszkań z przestronnymi antresolami na ostatnim piętrze, a także z tarasami – ogrodami na parterze.
Budynki usytuowane są na ogrodzonym terenie.
Prezentowane mieszkanie znajduje się na I piętrze. Posiada powierzchnię 53,30 m2 i składa się z 3 pokoi w tym jednego z aneksem kuchennym, przedpokoju oraz łazienki z WC.
Mieszkanie posiada Balkon: 8,78 m2.
Istnieje możliwość możliwość zakupu miejsca postojowego w hali garażowej pod budynkiem.
Termin realizacji: listopad 2017 roku.
POLECAM I ZAPRASZAM NA PREZENTACJĘ
Jakub Mścichecki tel. 793 941 091
W najbliższym otoczeniu znajdują się sklepy, markety, piekarnia, szkoła podstawowa i gimnazjum, przedszkole, przystanki komunikacji miejskiej.
Budynki charakteryzują się dbałością o każdy szczegół. Wykończone są wysokiej jakości materiałami. Wyposażone w WINDĘ, HALĘ GARAŻOWĄ.
Nowoczesna architektura oferuje niespotykane dotąd typy mieszkań z przestronnymi antresolami na ostatnim piętrze, a także z tarasami – ogrodami na parterze.
Budynki usytuowane są na ogrodzonym terenie.
Prezentowane mieszkanie znajduje się na I piętrze. Posiada powierzchnię 53,30 m2 i składa się z 3 pokoi w tym jednego z aneksem kuchennym, przedpokoju oraz łazienki z WC.
Mieszkanie posiada Balkon: 8,78 m2.
Istnieje możliwość możliwość zakupu miejsca postojowego w hali garażowej pod budynkiem.
Termin realizacji: listopad 2017 roku.
POLECAM I ZAPRASZAM NA PREZENTACJĘ
Jakub Mścichecki tel. 793 941 091
Nota prawna
Opis oferty zawarty na stronie internetowej sporządzany jest na podstawie oględzin nieruchomości oraz informacji uzyskanych od właściciela, może podlegać aktualizacji i nie stanowi oferty określonej w art. 66 i następnych K.C.
Kalkulator kredytowy
Formularz kontaktowy