Mieszkanie na sprzedaż
366 933 zł
61 m2







1 / 7
Szczegóły ogłoszenia
- Symbol oferty LCM-MS-14168
- Typ oferty mieszkanie na sprzedaż
- Cena 366 933 zł
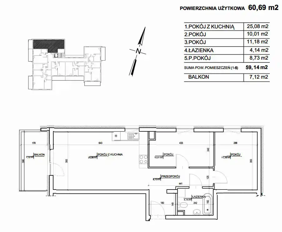
- Charakterystyka mieszkania 60.65 m2, 3 pokoje
- Budynek blok; rok budowy: 2016
- Rozkład mieszkania 1p piętro
- Media Ogrzewanie: miejskie; Woda: tak - miejska; Gaz: brak
- Balkon jest
- Dojazd asfalt
- Instalacje nowe
- Okna PCV
- Otoczenie las
- Plac zabaw Tak
- Stan lokalu do wykończenia
- Technologia budowlana cegła
- Winda Tak
Lokalizacja
- Adres kujawsko-pomorskie, Toruń, Wrzosy
Opis nieruchomości
*NIE POBIERAMY PROWIZJI OD KUPUJĄCEGO. WYNAGRODZENIE POŚREDNIKA POKRYWA SPRZEDAJĄCY*
MIESZKANIA Z RYNKU PIERWOTNEGO PRZY KTÓRYM KUPUJĄCY NIE PŁACI 2% PODATKU PCC
To osiedle to oferta dla Klientów przywiązujących wagę do wygód miejskiego życia, a jednocześnie ceniących spokój i bliskość natury. Osiedle zlokalizowane jest w sąsiedztwie lasu i kompleksów rekreacyjnych, jednocześnie niedaleko centrum i Starego Miasta: 5,5 km.
W najbliższym otoczeniu znajdują się sklepy, markety, piekarnia, szkoła podstawowa i gimnazjum, przedszkole, przystanki komunikacji miejskiej.
Budynki charakteryzują się dbałością o każdy szczegół. Wykończone są wysokiej jakości materiałami. Wyposażone w WINDĘ, HALĘ GARAŻOWĄ.
Nowoczesna architektura oferuje niespotykane dotąd typy mieszkań z przestronnymi antresolami na ostatnim piętrze, a także z tarasami – ogrodami na parterze.
Budynki usytuowane są na ogrodzonym terenie.
Prezentowane mieszkanie znajduje się na parterze. Posiada powierzchnię 60,65 m2 i składa się z 2 pokoi, salonu z aneksem kuchennym, przedpokoju oraz łazienki z WC.
Mieszkanie posiada BALKON: 7,12m2.
Istnieje możliwość możliwość zakupu miejsca postojowego w hali garażowej pod budynkiem.
Termin realizacji: grudzień 2016 roku.
POLECAM I ZAPRASZAM NA PREZENTACJĘ
******** DAMIAN JANUSZEWSKI 531-941-093 ********
W najbliższym otoczeniu znajdują się sklepy, markety, piekarnia, szkoła podstawowa i gimnazjum, przedszkole, przystanki komunikacji miejskiej.
Budynki charakteryzują się dbałością o każdy szczegół. Wykończone są wysokiej jakości materiałami. Wyposażone w WINDĘ, HALĘ GARAŻOWĄ.
Nowoczesna architektura oferuje niespotykane dotąd typy mieszkań z przestronnymi antresolami na ostatnim piętrze, a także z tarasami – ogrodami na parterze.
Budynki usytuowane są na ogrodzonym terenie.
Prezentowane mieszkanie znajduje się na parterze. Posiada powierzchnię 60,65 m2 i składa się z 2 pokoi, salonu z aneksem kuchennym, przedpokoju oraz łazienki z WC.
Mieszkanie posiada BALKON: 7,12m2.
Istnieje możliwość możliwość zakupu miejsca postojowego w hali garażowej pod budynkiem.
Termin realizacji: grudzień 2016 roku.
POLECAM I ZAPRASZAM NA PREZENTACJĘ
******** DAMIAN JANUSZEWSKI 531-941-093 ********
Nota prawna
Opis oferty zawarty na stronie internetowej sporządzany jest na podstawie oględzin nieruchomości oraz informacji uzyskanych od właściciela, może podlegać aktualizacji i nie stanowi oferty określonej w art. 66 i następnych K.C.
Kalkulator kredytowy
Formularz kontaktowy