Mieszkanie na sprzedaż
719 097 zł
59 m2















1 / 15
Szczegóły ogłoszenia
- Symbol oferty BLU-MS-7102
- Typ oferty mieszkanie na sprzedaż
- Cena 719 097 zł
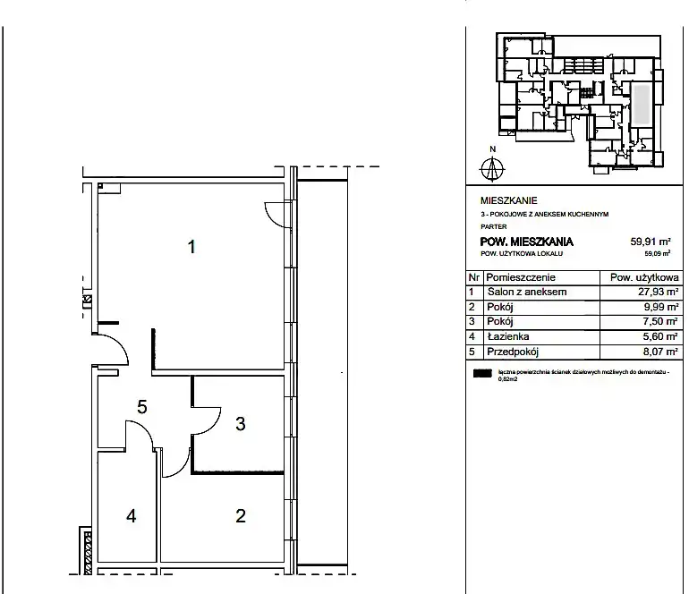
- Charakterystyka mieszkania 59.09 m2, 3 pokoje
- Budynek rok budowy: 2025
- Rozkład mieszkania wysoki parter piętro
- Media Ogrzewanie: pompa ciepła; Woda: jest
- Balkon duży
- Dojazd asfalt
- Garaż miejsce garażowe
- Ilość sypialni 2
- Instalacje nowe
- Okna PCV
- Otoczenie osiedle
- Stan lokalu wysoki standard
- Technologia budowlana tradycyjna murowana
- Winda Tak
Lokalizacja
- Adres kujawsko-pomorskie, Toruń, Stawki
Opis nieruchomości
3 POKOJE | WYSOKI STANDARD | 59,09 m² | PARTER | NOWE BUDOWNICTWO | DUŻY BALKON | OGRZEWANIE PODŁOGOWE | KLIMATYZACJA | 2025 r. | OSIEDLE STAWKI
Biuro nieruchomości Blue-Home z przyjemnością prezentuje wartą uwagi ofertę sprzedaży nowego 3-POKOJOWEGO MIESZKANIA wykończonego "pod klucz", zlokalizowanego na toruńskich Stawkach.
Mieszkanie o powierzchni 59,09 m² składa się z:
– przestronnego salonu z aneksem kuchennym i wyjściem na bardzo duży balkon (ok 20 m²)
– 2 sypialni
– nowoczesnej łazienki z wc
– funkcjonalnego przedpokoju
Standard wykończenia:
– gładzie, podłogi wyłożone panelami ułożonymi w jodełkę
– kuchnia z zabudową i sprzętem AGD – gotowa do użytkowania
– łazienka wykończona w kaflach
– drzwi wejściowe antywłamaniowe
– w mieszkaniu zamontowana klimatyzacja
W cenie: umeblowanie widoczne na zdjęciach, zabudowa przedpokoju, kuchenna + AGD – idealna opcja dla osób szukających gotowego lokum
Cena – 719 097 zł
Kupujący zwolniony z 2% podatku PCC
Dlaczego warto?
– nowe, gotowe do wprowadzenia mieszkanie
– wysoki standard wykończenia
– klimatyzacja i balkon
– świetna lokalizacja i dostępność usług
Lokalizacja:
– nowoczesna, prężnie rozwijająca się część Torunia – os. Stawki
– dogodny dostęp do infrastruktury: sklepy, przedszkole, przystanki autobusowe, obiekty sporto
– budynek oddany do użytku w 2025 roku
– niska zabudowa z windą
Zapraszamy na prezentację!
Usługa pośrednictwa jest płatna.
Oferujemy kompleksową pomoc w procesie kredytowania.
Karol – 883 900 224
Blue-Home Nieruchomości
Szosa Chełmińska 175A/6, 87-100 Toruń
właściciel: Agnieszka Płachta
NIP: 879-185-37-94
Biuro nieruchomości Blue-Home z przyjemnością prezentuje wartą uwagi ofertę sprzedaży nowego 3-POKOJOWEGO MIESZKANIA wykończonego "pod klucz", zlokalizowanego na toruńskich Stawkach.
Mieszkanie o powierzchni 59,09 m² składa się z:
– przestronnego salonu z aneksem kuchennym i wyjściem na bardzo duży balkon (ok 20 m²)
– 2 sypialni
– nowoczesnej łazienki z wc
– funkcjonalnego przedpokoju
Standard wykończenia:
– gładzie, podłogi wyłożone panelami ułożonymi w jodełkę
– kuchnia z zabudową i sprzętem AGD – gotowa do użytkowania
– łazienka wykończona w kaflach
– drzwi wejściowe antywłamaniowe
– w mieszkaniu zamontowana klimatyzacja
W cenie: umeblowanie widoczne na zdjęciach, zabudowa przedpokoju, kuchenna + AGD – idealna opcja dla osób szukających gotowego lokum
Cena – 719 097 zł
Kupujący zwolniony z 2% podatku PCC
Dlaczego warto?
– nowe, gotowe do wprowadzenia mieszkanie
– wysoki standard wykończenia
– klimatyzacja i balkon
– świetna lokalizacja i dostępność usług
Lokalizacja:
– nowoczesna, prężnie rozwijająca się część Torunia – os. Stawki
– dogodny dostęp do infrastruktury: sklepy, przedszkole, przystanki autobusowe, obiekty sporto
– budynek oddany do użytku w 2025 roku
– niska zabudowa z windą
Zapraszamy na prezentację!
Usługa pośrednictwa jest płatna.
Oferujemy kompleksową pomoc w procesie kredytowania.
Karol – 883 900 224
Blue-Home Nieruchomości
Szosa Chełmińska 175A/6, 87-100 Toruń
właściciel: Agnieszka Płachta
NIP: 879-185-37-94
Nota prawna
Opis oferty zawarty na stronie internetowej sporządzany jest na podstawie oględzin nieruchomości oraz informacji uzyskanych od właściciela, może podlegać aktualizacji i nie stanowi oferty określonej w art. 66 i następnych K.C.
Kalkulator kredytowy
Formularz kontaktowy