Dom na sprzedaż













Szczegóły ogłoszenia
- Symbol oferty NHM-DS-36858
- Typ oferty dom na sprzedaż
- Cena 990 000 zł
- Charakterystyka mieszkania 180 m2, 4 pokoje, do remontu
- Bezpieczeństwo ogrodzenie działki: siatka
- Balkon jest
- Okna aluminiowe
- Podpiwniczenie Tak
- Pokrycie dachu inne
- Rodzaj domu jednorodzinny
- Stan prawny Własność
- Taras taras
Lokalizacja
- Adres dolnośląskie, Trzebnica (gw), Księginice
Opis nieruchomości
Dom z potencjałem i dużą działką – idealny dla rodziny lub inwestora!
Na sprzedaż przestronny, trzypoziomowy dom o powierzchni użytkowej 110 m², położony na dużej, ogrodzonej działce o powierzchni 21 ar (2 127 m²).
Nieruchomość z z szybkim dojazdem do Trzebnicy i Wrocławia (trasa S5).
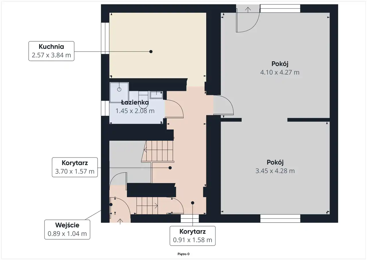
Układ pomieszczeń:
- Piwnica (ok. 75 m²)
-
kilka pomieszczeń gospodarczych,
-
kotłownia,
-
dodatkowa przestrzeń magazynowa.
- Parter (ok. 55m2)
-
kuchnia,
-
łazienka,
-
dwa ustawne pokoje.
- Piętro (ok. 55m2)
-
kuchnia,
-
łazienka,
-
dwa pokoje,
-
balkon z widokiem na ogród.
Najważniejsze atuty nieruchomości:
- Dom docieplony, dach pokryty pianką – świetna izolacja i ochrona przed utratą ciepła,
- Ogrzewanie piecem na drewno – ekonomiczne i przyjemne w użytkowaniu,
- Oryginalne parkiety dębowe, rolety, alarm, dobre okna na profilu stalowym,
- Jasne wnętrza (ekspozycja południowo-zachodnia),
- Taras 20 m² z widokiem na ogród – idealny na rodzinne spotkania i relaks,
- Pomieszczenie gospodarcze 200 m² – idealne pod warsztat, magazyn lub działalność gospodarczą,
- Działka geodezyjnie podzielona na dwie części (nr 141/28 i 141/29) – możliwość sprzedaży lub zabudowy drugiej części.
Dodatkowe atuty lokalizacji:
- blisko szkoły, sklepy i komunikacja,
- szybki dojazd do S5 i Wrocławia (niecałe 20 min do granic Wrocławia)
- spokojne sąsiedztwo i przyjazna okolica,
- duża, zielona działka dająca prywatność i przestrzeń do odpoczynku.
Dom jest w dobrym stanie technicznym, z możliwością natychmiastowego zamieszkania.
Wymaga odświeżenia/remontu, co pozwoli nowym właścicielom nadać mu własny charakter i styl.
To idealne miejsce dla osób, które szukają przestrzeni, spokoju i potencjału na przyszłość – zaledwie kilkanaście minut od Wrocławia.
Zadzwoń i umów się na prezentację!
Zobacz na żywo tę wyjątkową nieruchomość – przekonaj się, jak wiele możliwości oferuje.
Przy zakupie oferujemy wsparcie przy uzyskaniu finansowania na zakup nieruchomości z opcją dodatkowych korzyści! Szczegóły u naszego Doradcy Finansowego.
Oferujemy kompleksowe wsparcie przy zakupie nieruchomości – zajmiemy się wszystkimi formalnościami i przeprowadzimy Cię przez cały proces od początku do końca. Zapraszamy do współpracy z naszym biurem.
Prezentowana oferta nie stanowi oferty handlowej w rozumieniu Art. 66 par. 1 Kodeksu Cywilnego, a dane w niej zawarte mają charakter jedynie informacyjny i mogą ulec zmianie