Dom na sprzedaż
























Szczegóły ogłoszenia
- Symbol oferty GRS-DS-3158
- Typ oferty dom na sprzedaż
- Cena 1 599 000 zł
- Charakterystyka mieszkania 204.8 m2, 5 pokoi, do zamieszkania
- Budynek rok budowy: 2012
- Media Ogrzewanie: pompa ciepła; Woda: tak - miejska; Kanalizacja: miejska; Prąd: jest
- Bezpieczeństwo ogrodzenie działki: ogrodzona
- Balkon jest
- Działka Zagospodarowana, płaska, prostokąt
- Garaż dwustanowiskowy
- Okna PCV
- Pokrycie dachu dachówka cementowa
- Rodzaj domu wolnostojący
- Technologia budowlana suporeks
- Umeblowanie do uzgodnienia
Lokalizacja
- Adres pomorskie, Ustka (gw), Wodnica
Opis nieruchomości
Dom wolnostojący na sprzedaż – Wodnica | 204,8 m² | działka 1744 m² | pompa ciepła | fotowoltaika | garaż dwustanowiskowy
Opis nieruchomości
Na sprzedaż przestronny i funkcjonalny dom wolnostojący położony w miejscowości Wodnica, idealny dla rodziny poszukującej komfortowej nieruchomości z dużą działką oraz nowoczesnymi rozwiązaniami technicznymi.
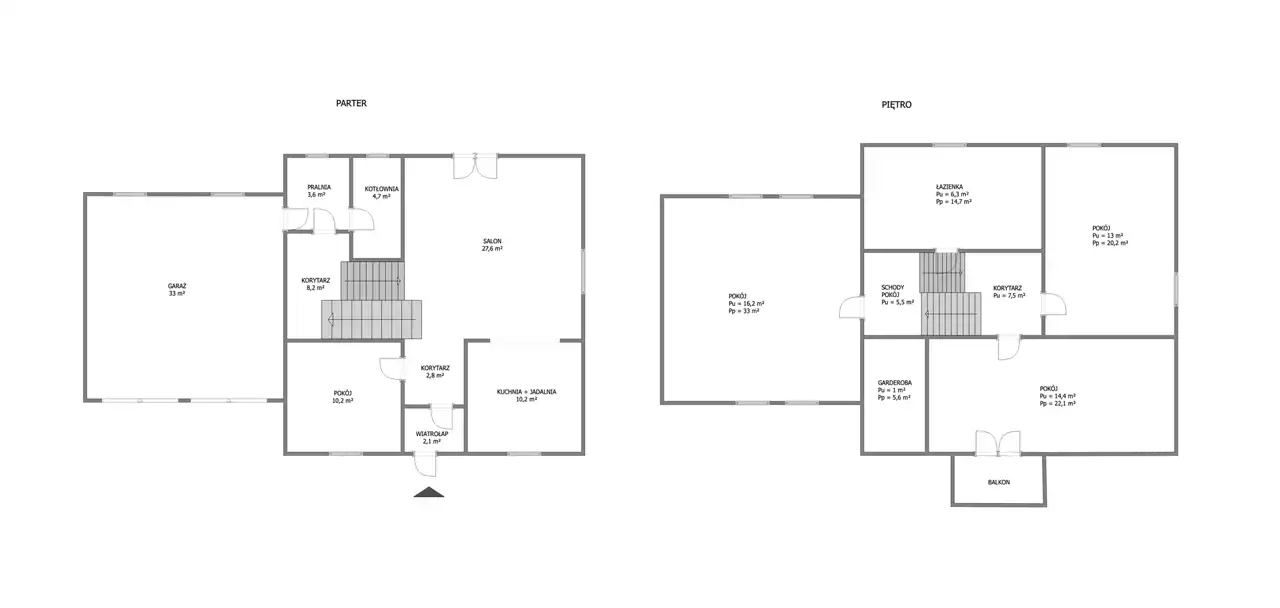
Budynek o powierzchni całkowitej 204,8 m² oraz powierzchni użytkowej 166,3 m² został zaprojektowany z myślą o wygodzie codziennego życia. Na parterze znajduje się przestronny salon połączony z kuchnią i jadalnią, sypialnia, toaleta oraz korytarz. Dodatkowo do dyspozycji są pomieszczenia gospodarcze, takie jak kotłownia i pralnia. Na piętrze mieszczą się 3 pokoje, garderoba oraz duża łazienka.
W bryle budynku znajduje się garaż dwustanowiskowy o powierzchni 33 m², wyposażony w dwie bramy garażowe.
Standard i wyposażenie
1. Parter
Salon z aneksem kuchennym:
- przestronny, jasny salon z jadalnią w układzie otwartym
- duże przeszklenia zapewniają bardzo dobre doświetlenie wnętrza
- wyjście na ogród / taras bezpośrednio z części dziennej
- efektowny kominek
- dekoracyjne ściany z cegły, nadające wnętrzu charakteru
- nowoczesna, przytulna i spójna stylistycznie przestrzeń dzienna
- miejsce na duży stół jadalniany dla całej rodziny
- oddzielona kuchnia z szerokim przejściem do jadalni
- kuchnia z dużą ilością szafek i blatu roboczego
- klasyczna zabudowa w ciepłym, drewnianym wybarwieniu
- wnętrza zadbane, ustawne i gotowe do zamieszkania
Toaleta / WC:
- osobna, elegancko wykończona toaleta
- umywalka nablatowa
- praktyczne i wygodne rozwiązanie dla domowników oraz gości
- spójna, efektowna aranżacja wnętrza
Sypialnia:
- jasna i przytulna sypialnia
- ustawny układ pomieszczenia
- duże okno zapewniające dobre doświetlenie
- spokojna, komfortowa przestrzeń do wypoczynku
- miejsce na łóżko oraz szafę lub dodatkowe meble
- wnętrze utrzymane w stonowanej, uniwersalnej stylistyce
2. Piętro
Pokój 1:
- jasny i ustawny pokój na poddaszu
- duże okno balkonowe zapewniające dobre doświetlenie
- wyjście na balkon
- skosy nadające wnętrzu przytulny charakter
- idealny jako pokój dziecięcy, młodzieżowy lub gabinet
- garderoba
Pokój 2:
- przestronny pokój z dużą ilością wolnej przestrzeni
- dobrze doświetlony dzięki oknu dachowemu i oknu standardowemu
- funkcjonalny układ pozwalający na wydzielenie strefy wypoczynku i pracy
- sprawdzi się jako pokój młodzieżowy, gabinet lub pokój hobby
Sypialnia główna:
- bardzo przestronna i komfortowa sypialnia
- dobrze doświetlona dzięki kilku oknom dachowym
- wysoka estetyka wnętrza podkreślona dekoracyjnymi belkami sufitowymi
- dużo miejsca na strefę wypoczynkową i przechowywanie
- idealna jako główna sypialnia właścicieli
Duża łazienka:
- przestronna i funkcjonalna łazienka na poddaszu
- duża wanna
- kabina prysznicowa
- umywalka z szafką
- toaleta
- okno dachowe zapewniające naturalne światło
- dużo miejsca do przechowywania
- estetyczne, nowoczesne wykończenie
Dom został wyposażony w nowoczesne i ekonomiczne rozwiązania. Ogrzewanie zapewnia pompa ciepła. Dodatkowo zamontowana została instalacja fotowoltaiczna. Na parterze oraz w łazience na piętrze zastosowano ogrzewanie podłogowe, a dodatkowo we wszystkich pomieszczeniach zamontowano grzejniki. W salonie znajduje się również kominek z rozprowadzeniem kanałów powietrznych do wszystkich pomieszczeń, co tworzy wyjątkowy klimat i stanowi dodatkowe źródło ciepła.
Wnętrze domu wykończone zostało z dbałością o detale. Na uwagę zasługują kamienne parapety oraz kuchnia wykonana pod wymiar. Dach budynku pokryty jest dachówką cementową.
Działka i teren zewnętrzny
Nieruchomość usytuowana jest na dużej działce o powierzchni 1744 m². Teren jest w całości ogrodzony – od tyłu i z boku siatką, natomiast od frontu wykonano ogrodzenie murowane z cegły wraz z bramą wjazdową. Przed domem znajduje się kostka brukowa.
Dodatkowe zabudowania
Na posesji znajdują się również liczne udogodnienia i zabudowania dodatkowe: szklarnia, wędzarnia, drewutnia, studnia do podlewania oraz wiata grillowa w trakcie rozbudowy.
To doskonała propozycja dla osób szukających komfortowego domu z dużą działką, garażem, nowoczesnym ogrzewaniem i potencjałem do wypoczynku we własnym ogrodzie.
Lokalizacja
Wodnica to spokojna, zielona miejscowość położona tuż obok Ustki. To idealne miejsce dla osób ceniących ciszę, kameralne otoczenie i jednocześnie szybki dostęp do morza, plaży oraz atrakcji nadmorskiego kurortu. Dodatkowym atutem okolicy są tereny spacerowe i przyrodnicze.
Cena nieruchomości: 1.599.000 PLN
Strona Kupująca pokrywa wynagrodzenie prowizyjne dla biura.
Więcej informacji uzyskasz kontaktując się z nami:
503 901 101 - Adrianna Iwanicka, licencja 23687 (opiekun oferty)
799 799 397 - Dominika Szramiak
728 202 030 - Marta Patyna, licencja numer 31772
799 333 633 - Dominika Wójcik
728 111 007 - Przemek Pryzwan, licencja numer 31771
669 647 067 - Karolina Jakuczun
799 077 000 - Wiktoria Gołębiewska
www.gryfnieruchomosci.pl
Serdecznie zapraszam Państwa na prezentację nieruchomości, z przyjemnością odpowiem na wszelkie pytania oraz udzielę dodatkowych informacji.
Zamierzasz kupić nieruchomość i skorzystać z finansowania banku? Pomożemy dokonać Ci dobrego wyboru najlepszej oferty spośród wielu banków. Nasz doradca dostosuje ofertę kredytu hipotecznego do Twoich potrzeb i oczekiwań oraz będzie do Twojej dyspozycji na każdym etapie procesu kredytowego.
Niniejsza oferta nie stanowi oferty w rozumieniu Kodeksu Cywilnego, a dane w niej zawarte mają jedynie charakter informacyjny i mogą ulec zmianie.