Dom na sprzedaż

























Szczegóły ogłoszenia
- Symbol oferty GRS-DS-1709
- Typ oferty dom na sprzedaż
- Cena 939 000 zł
- Charakterystyka mieszkania 118.3 m2, 6 pokoi, do zamieszkania
- Budynek rok budowy: 2008
- Bezpieczeństwo ogrodzenie działki: frontowe kute
- Balkon jest
- Działka Zagospodarowana, płaska, prostokąt
- Garaż w bryle
- Okna PCV
- Pokrycie dachu dachówka ceramiczna
- Rodzaj domu wolnostojący
- Taras taras duży
- Technologia budowlana bloczki ytong
- Umeblowanie częściowo umeblowane
Lokalizacja
- Adres pomorskie, słupski, Ustka (gw)
Opis nieruchomości
Prezentujemy na sprzedaż dom wolnostojący o powierzchni 118,3m2 z ładnie zagospodarowaną, dużą działką o powierzchni 1145m2 w nadmorskim Wytownie !
Proponujemy do sprzedaży klasyczny, niezwykle funkcjonalny wolnostojący dom jednorodzinny o łącznej powierzchni użytkowej 118,3m2, zlokalizowany w atrakcyjnej części miejscowości Wytowno – osiedle domów wolnostojących, jednorodzinnych. Dom posadowiony na zagospodarowanej, dużej działce o powierzchni 1145m2. Posesja ogrodzona ogrodzeniem kutym od frontu oraz bramą przesuwną. Na działce wygospodarowane miejsce blaszane pomieszczenie gospodarcze służące do przechowywania opału oraz narzędzi ogrodniczych.
Parter domu to powierzchnia 89,2m2, na którą składa się: komunikacja (13m2), salon z kominkiem (24,5m2), kuchnia z jadalnią (8,2m2), pokój (10m2), łazienka (3,8m2), WC (1,6m2). Dodatkowo kotłownia (5,5m2) oraz garaż (22,6m2)
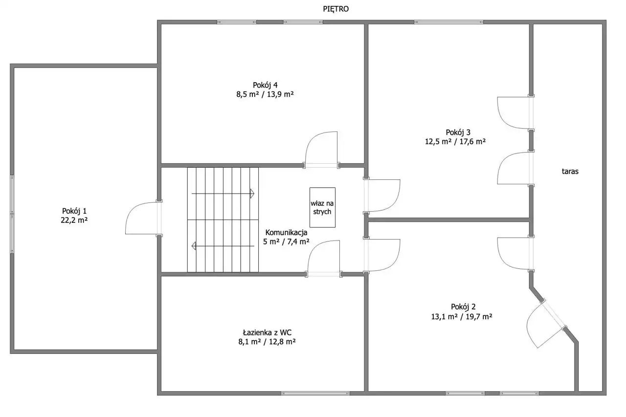
Piętro domu to powierzchnia 69,4m2, na którą składa się: komunikacja (5m2), łazienka z WC (8,1m2) oraz cztery pokoje (22,2m2, 13,1m2, 12,5m2, 8,5m2).
Do domu wchodzimy przez obszerny wiatrołap, mieszczący wygodne szafy ubraniowe, otwarty na komunikację. Otwarta strefa dzienna jest idealnym miejscem rodzinnego wypoczynku. Szerokie przeszklenia w salonie pięknie doświetlają wnętrze, łączy dom z częściowo zadaszonym tarasem i otwiera widok na ogród, przyjemny klimat w całym wnętrzu podczas długich, zimowych wieczorów wprowadzi kominek. Przy dużym oknie zlokalizowano część jadalną, natomiast za nią, kuchnię z odpowiednią ilością blatów roboczych, zapewniających wygodną pracę. W strefie parteru przewidziano także dodatkowy pokój, który można przeznaczyć na gabinet lub sypialnię gościnną, w pobliżu znajduje się łazienka oraz WC.
Sypialnie w strefie nocnej są bardzo wygodne i ustawne, zapewniające optymalne warunki do nauki i wypoczynku. Z dwóch pokoi wyjście na duży taras. Program piętra uzupełnia duża, jasna łazienka oraz wejście na strych z części komunikacyjnej.
Wytowno, mała miejscowość położona tylko 3 kilometry do najbliższych, piaszczystych plaż, 9 kilometrów do turystycznej Ustki, w pobliżu Słowińskiego Parku Narodowego, Parku Krajobrazowego Dolina Słupi oraz okolicznych lasów i ukwieconych łąk - to połączenie przyjemnego z pożytecznym. Nieskazitelnie czyste powietrze, pełne zdrowego jodu oraz bliskość większego miasta tworzą wyjątkową i rzadko spotykaną mieszankę. To spokojna miejscowość położona wśród sosnowych i bukowych lasów, w pobliskim otoczeniu jezior i Słowińskiego Parku Narodowego. Liczne szlaki piesze oraz rowerowe sprawiają, że mieszka i wypoczywa się w Wytownie wspaniale! Główna atrakcja Wytowna to bliskie sąsiedztwo Bałtyku oraz malownicze, rozległe plaże.
Atutem nieruchomości jest wspaniała lokalizacja. Charakter miejscowości czyni, iż jest to oferta skierowana do osób ceniących ciszę, spokój i bliskość natury. Niedaleka odległość od plaży Morza Bałtyckiego sprawia, iż nieruchomość idealnie nadaje się do celów zarobkowych.
DODATKOWE INFORMACJE:
- ogrzewanie centralne – piec z podajnikiem,
- fotowoltaika,
- ogrzewanie podłogowe na całej powierzchni parteru, również w garażu oraz kotłowni,
- kominek w salonie,
- wszystkie okna PCV, połaciowe drewniane, wyposażone w rolety wewnętrzne,
- dachówka ceramiczna,
- ocieplenie – styropian 12cm,
- strych wykończony w płycie OSB, docieplony do szczytu wełną mineralną,
- rok budowy – 2008r.
CENA: 939 000 PLN
Wynagrodzenie prowizyjne dla biura pokrywa strona Kupująca.
Więcej informacji uzyskasz kontaktując się z nami:
799 799 313 – Marta Rutkowska
728 202 030 – Marta Patyna
503 901 101 – Adrianna Iwanicka
728 111 007 – Przemysław Pryzwan
Więcej zdjęć znajdziecie Państwo na Naszej stronie:
www.gryfnieruchomosci.pl
Serdecznie zapraszam Państwa na prezentację nieruchomości, z przyjemnością odpowiem na wszelkie pytania oraz udzielę dodatkowych informacji.
Zamierzasz kupić nieruchomość i skorzystać z finansowania banku? Pomożemy dokonać Ci dobrego wyboru najlepszej oferty spośród wielu banków. Nasz doradca dostosuje ofertę kredytu hipotecznego do Twoich potrzeb i oczekiwań oraz będzie do Twojej dyspozycji na każdym etapie procesu kredytowego.
Niniejsza oferta nie stanowi oferty w rozumieniu Kodeksu Cywilnego, a dane w niej zawarte mają jedynie charakter informacyjny i mogą ulec zmianie.