Dom na sprzedaż


















Szczegóły ogłoszenia
- Symbol oferty NBB-DS-3200
- Typ oferty dom na sprzedaż
- Cena 1 715 000 zł
- Charakterystyka mieszkania 108 m2, 3 pokoje, BARDZO WYSOKI STANDARD
- Budynek rok budowy: 2026
- Media Ogrzewanie: inne; Woda: jest; Kanalizacja: tak
- Bezpieczeństwo ogrodzenie działki: ogrodzona
- Balkon jest
- Dojazd inna
- Działka prostokąt
- Garaż jest
- Ilość sypialni 3
- Okna aluminiowe
- Otoczenie osiedle
- Rodzaj domu villa
- Taras taras
- Umeblowanie częściowo umeblowane
Lokalizacja
- Adres Valencia, Vega Baja del Segura, Los Montesinos
Opis nieruchomości
Nowoczesna willa z ogrodem | 3 sypialnie | 108 m² + działka 305 m² | Los Montesinos, Costa Blanca Południowa
Prezentujemy nowoczesne, wolnostojące wille Alba Salina III, położone w spokojnej i zadbanej dzielnicy La Herrada w miejscowości Los Montesinos. To idealna propozycja dla osób poszukujących komfortowego domu w słonecznej Hiszpanii – zarówno do zamieszkania na stałe, jak i jako inwestycja wakacyjna.
Lokalizacja:
Osiedle znajduje się w doskonałej lokalizacji – zaledwie kilka minut od centrum Los Montesinos, gdzie dostępne są wszystkie udogodnienia:
-
sklepy, supermarkety, bary i restauracje
-
apteka, centrum medyczne i szkoły
-
malownicze tereny rekreacyjne idealne do spacerów i jazdy na rowerze
Dogodny dojazd do głównych tras (N-332, AP-7) zapewnia szybkie połączenie z najważniejszymi punktami regionu:
-
ok. 20 minut do lotniska w Alicante
-
10–15 minut do piaszczystych plaż Guardamar del Segura i Torrevieja
-
w pobliżu pola golfowe Ciudad Quesada
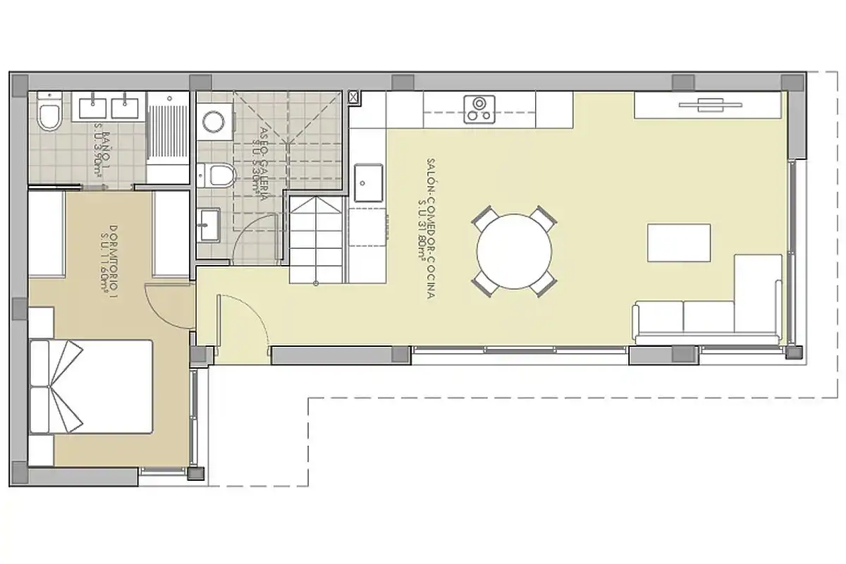
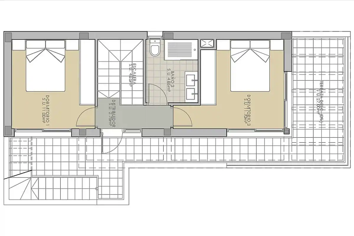
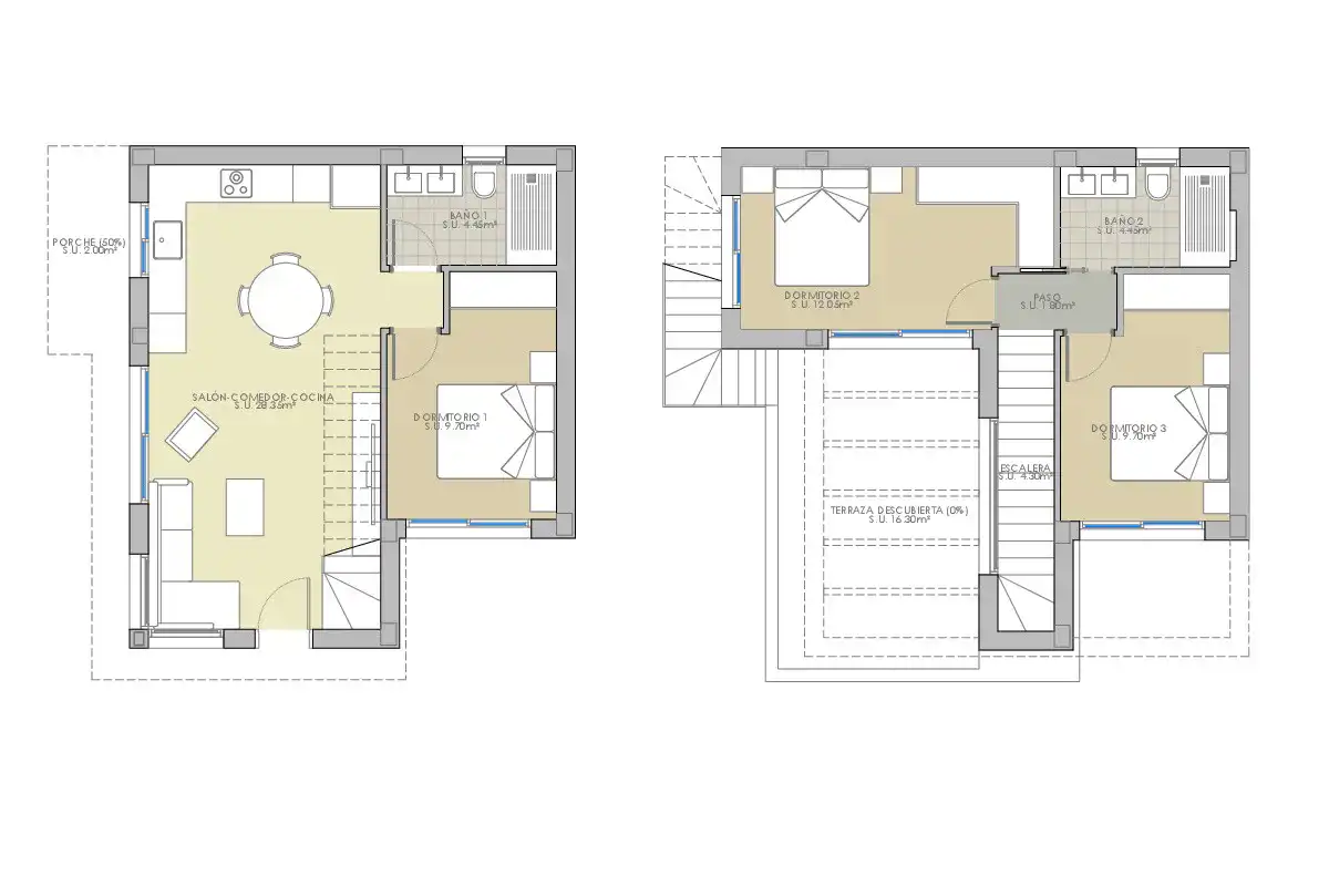
Charakterystyka willi:
-
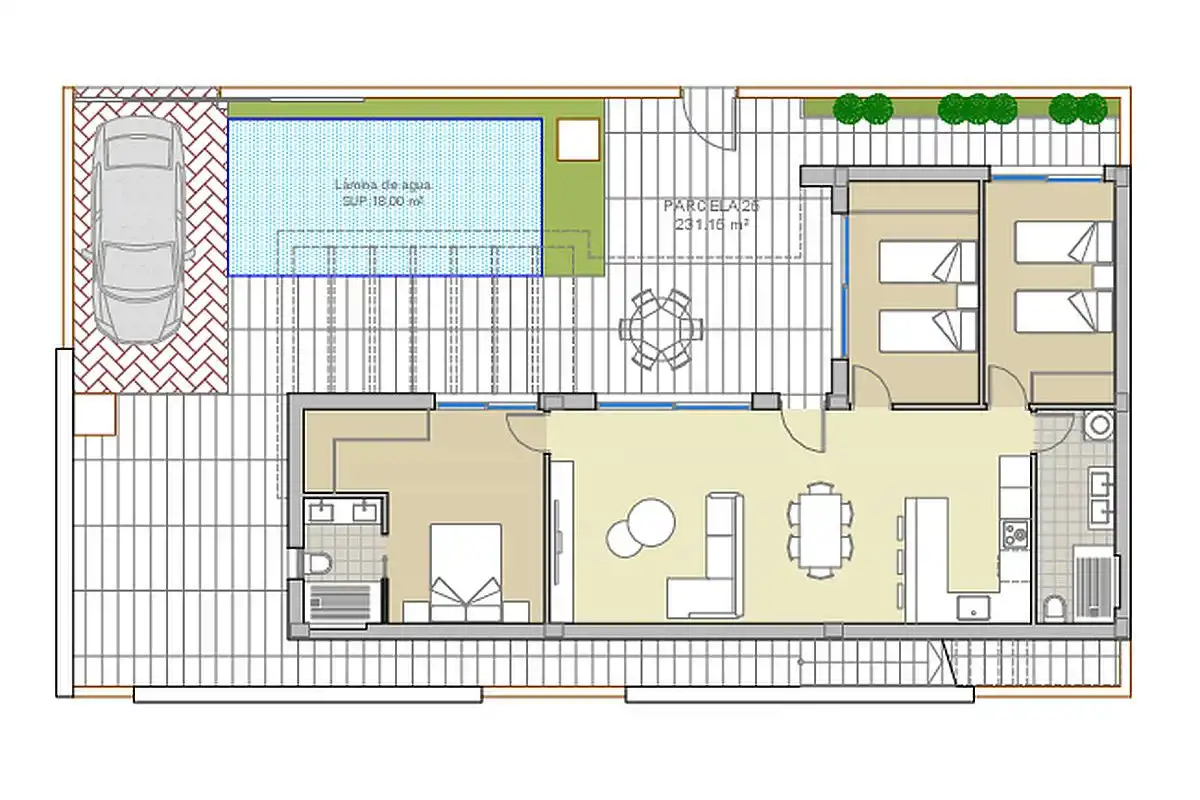
Powierzchnia całkowita: 108 m²
-
Działka: 305 m²
-
3 sypialnie dwuosobowe z wbudowanymi szafami i 2 łazienki + toaleta dla gości
-
Główna sypialnia z garderobą i prywatną łazienką
-
Jasny salon z jadalnią w układzie otwartym
-
Nowoczesna, w pełni wyposażona kuchnia z barem śniadaniowym
-
Taras i prywatny ogród z możliwością budowy basenu
-
Parking na działce
Duże przeszklenia w salonie wprowadzają do wnętrza naturalne światło, tworząc przestrzeń idealną do wypoczynku i spotkań z bliskimi. Wille zostały wykonane z najwyższej jakości materiałów, z dbałością o każdy detal, łącząc nowoczesny design z funkcjonalnością.
Cena: 1 715 000
Zapraszamy do kontaktu i poznania szczegółów:
Fabian Bokś
503 668 575
fabian@nieruchomosci-boks.pl