Dom na sprzedaż

























Szczegóły ogłoszenia
- Symbol oferty NBB-DS-3204
- Typ oferty dom na sprzedaż
- Cena 1 964 000 zł
- Charakterystyka mieszkania 124 m2, 3 pokoje, BARDZO WYSOKI STANDARD
- Budynek rok budowy: 2026
- Media Ogrzewanie: inne; Woda: jest; Kanalizacja: tak
- Bezpieczeństwo ogrodzenie działki: ogrodzona
- Balkon jest
- Dojazd inna
- Garaż jest
- Ilość sypialni 3
- Okna aluminiowe
- Otoczenie osiedle
- Rodzaj domu villa
- Taras taras
- Umeblowanie umeblowane
Lokalizacja
- Adres Valencia, Vega Baja del Segura, Los Montesinos
Opis nieruchomości
Nowoczesna willa z prywatnym basenem | 3 sypialnie | 124 m² + działka 200 m² | Los Montesinos, Costa Blanca Południowa
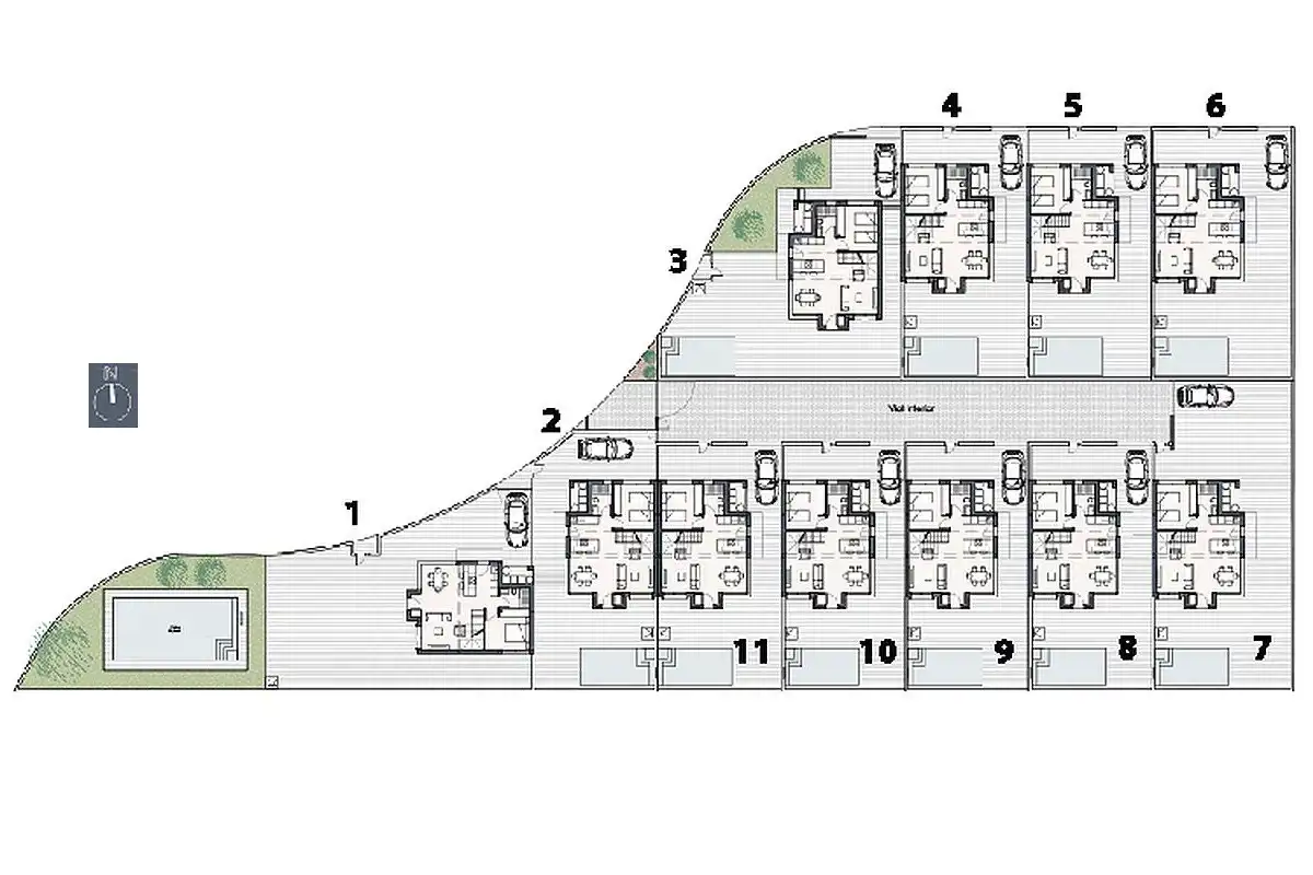
Prezentujemy nową, luksusową inwestycję – kameralne osiedle 11 nowoczesnych, wolnostojących willi położonych w spokojnej dzielnicy La Herrada w miejscowości Los Montesinos. To idealne miejsce dla osób poszukujących elegancji, komfortu i stylu życia w hiszpańskim słońcu.
Lokalizacja:
Nieruchomość znajduje się w południowej części Costa Blanca, w atrakcyjnej lokalizacji:
-
w sąsiedztwie supermarketów, barów i sklepów,
-
kilka minut od Ciudad Quesada,
-
zaledwie 5 minut jazdy od plaż Guardamar,
-
10 minut od Torrevieja,
-
25 minut od lotniska w Alicante,
-
w pobliżu renomowanych pól golfowych La Finca i La Marquesa,
-
z pięknymi widokami na słone jeziora Torrevieja i La Mata.
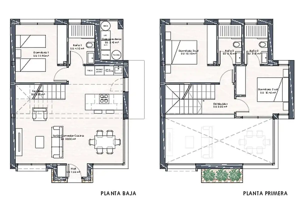
Charakterystyka willi:
-
Powierzchnia zabudowy: 124 m²
-
Działka: 200 m²
-
3 przestronne sypialnie z wbudowanymi szafami
-
3 nowoczesne łazienki z ogrzewaniem podłogowym
-
Przestronny salon z jadalnią i otwartą kuchnią
-
Prywatny basen z tarasem i częścią wypoczynkową
-
Solarium na dachu (52 m²) z panoramicznym widokiem
-
Możliwość dodania piwnicy/podpiwniczenia
-
Prywatny parking na działce
Atuty inwestycji:
-
Luksusowy standard i nowoczesny design
-
Prywatny basen i przestronne solarium
-
Blisko plaż, pól golfowych i udogodnień
-
Piękne widoki na słone jeziora
-
Idealne miejsce zarówno do zamieszkania, jak i pod wynajem
Cena: 1 964 000 PLN
Zapraszamy do kontaktu i poznania szczegółów:
Fabian Bokś
503 668 575
fabian@nieruchomosci-boks.pl