Dom na sprzedaż






















Szczegóły ogłoszenia
- Symbol oferty NBB-DS-3205
- Typ oferty dom na sprzedaż
- Cena 2 006 000 zł
- Charakterystyka mieszkania 127 m2, 3 pokoje, BARDZO WYSOKI STANDARD
- Budynek rok budowy: 2026
- Media Ogrzewanie: inne; Woda: jest; Kanalizacja: tak
- Bezpieczeństwo ogrodzenie działki: ogrodzona
- Balkon jest
- Dojazd inna
- Garaż jest
- Ilość sypialni 3
- Okna aluminiowe
- Otoczenie osiedle
- Rodzaj domu villa
- Taras taras
- Umeblowanie częściowo umeblowane
Lokalizacja
- Adres Valencia, Vega Baja del Segura, Pilar de la Horadada
Opis nieruchomości
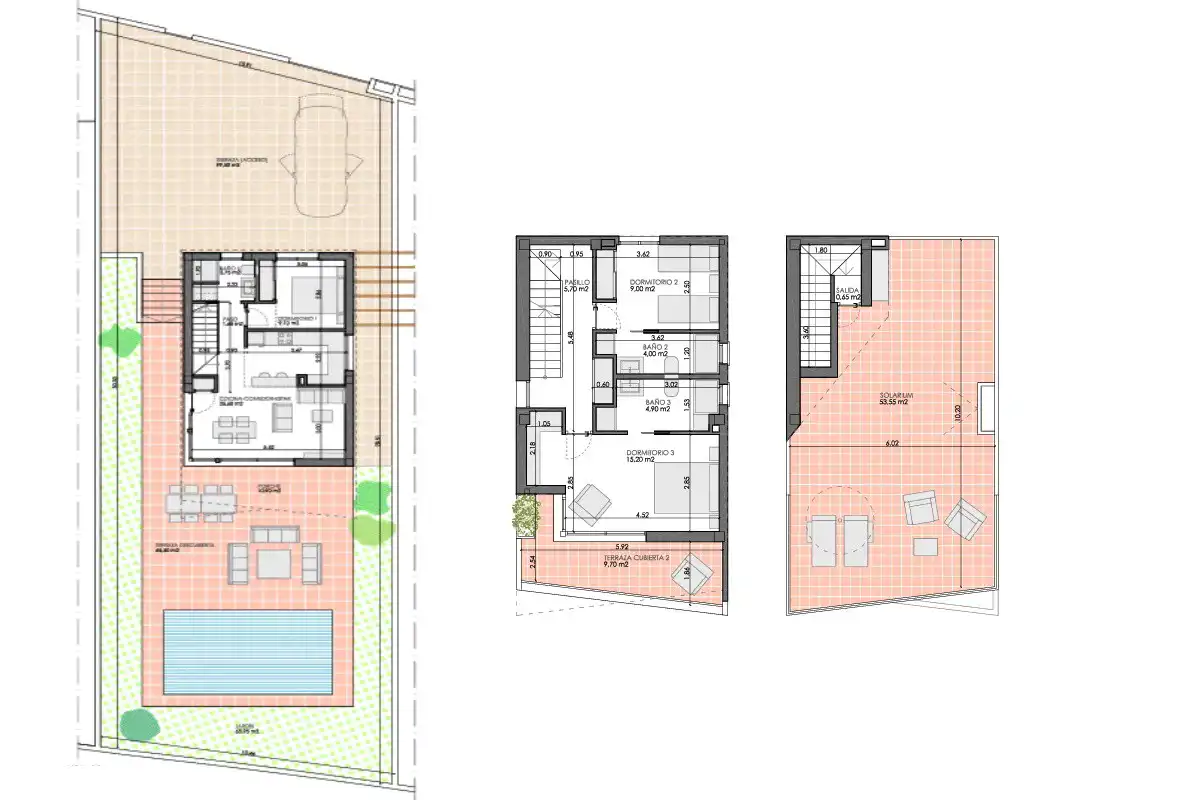
Nowoczesna willa z prywatnym basenem | 3 sypialnie | 127 m² + działka 303 m² | Pilar de la Horadada, Costa Blanca Południowa
Prezentujemy kameralną inwestycję 6 nowoczesnych, wolnostojących willi położonych tuż przy prestiżowym polu golfowym Lo Romero w miejscowości Pilar de la Horadada. To idealne miejsce dla osób szukających komfortu, luksusu i śródziemnomorskiego stylu życia w słonecznej Hiszpanii.
Lokalizacja:
Nieruchomość znajduje się w pięknej, spokojnej okolicy:
-
tuż przy 18-dołkowym polu golfowym Lo Romero,
-
w sąsiedztwie krystalicznie czystych plaż, m.in. Higuericas w Torre de la Horadada,
-
kilka kilometrów od centrum Pilar de la Horadada z restauracjami, barami i sklepami,
-
doskonałe połączenie drogowe z Alicante i Murcją,
-
niedaleko międzynarodowego lotniska w Murcji,
Charakterystyka willi:
-
Powierzchnia zabudowy: 127 m²
-
Działka: 303 m²
-
3 przestronne sypialnie z wbudowanymi szafami (1 na parterze, 2 na piętrze)
-
3 łazienki
-
Nowoczesna, w pełni wyposażona kuchnia z wyspą
-
Przestronny salon z jadalnią w układzie otwartym, prowadzący do zadaszonego tarasu i ogrodu
-
Prywatny basen
-
Solarium na dachu (54 m²) z panoramicznym widokiem i letnią kuchnią
-
Prywatny parking na działce
Cena: 2 006 000 PLN
Zapraszamy do kontaktu i poznania szczegółów:
Fabian Bokś
503 668 575
fabian@nieruchomosci-boks.pl