Dom na sprzedaż
729 000 zł
103 m2





1 / 5
Szczegóły ogłoszenia
- Symbol oferty FWR-DS-199214
- Typ oferty dom na sprzedaż
- Cena 729 000 zł
- Charakterystyka mieszkania 103 m2, 4 pokoje
- Rodzaj domu wolnostojący
Lokalizacja
- Adres wielkopolskie, Wągrowiec
Opis nieruchomości
NOWY DOM NA SPRZEDAŻ
Wągrowiec ul. Leszczynowa
Budynek parterowy, o pow. 103m2
Działka o pow. 743m2
Planowane oddanie do użytku grudzień 2026r.
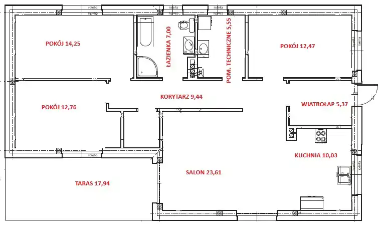
Pomieszczenia wg. projektu:
Wiatrołap - 5,37m2
Korytarz - 9,44m2
Kuchnia - 10,03m2
Salon - 23,61m2 z wyjściem na taras o pow. 17,94m2
3 pokoje o pow. 12,47m2, 14,25m2, 12,76m2
Łazienka o pow. 7,00m2
Pomieszczenie techniczne - 5,35m2
Garderoba - 2,46m2
Standard wykończenia:
Taras budynku usytuowany od strony zachodniej
Dojazd drogą gminną
Na obecnym etapie istnieje możliwość rezerwacji oferty oraz naniesienia pewnych zmian w projekcie
Cena 729 000zł brutto
Nabywając tą nieruchomość Kupujący nie płaci 2% podatku PCC przy zakupie nieruchomości
Wągrowiec ul. Leszczynowa
Budynek parterowy, o pow. 103m2
Działka o pow. 743m2
Planowane oddanie do użytku grudzień 2026r.
Pomieszczenia wg. projektu:
Wiatrołap - 5,37m2
Korytarz - 9,44m2
Kuchnia - 10,03m2
Salon - 23,61m2 z wyjściem na taras o pow. 17,94m2
3 pokoje o pow. 12,47m2, 14,25m2, 12,76m2
Łazienka o pow. 7,00m2
Pomieszczenie techniczne - 5,35m2
Garderoba - 2,46m2
Standard wykończenia:
- Budynek murowany z betonu komórkowego (Solbet 24cm), ściany działowe 12cm, nadproża
- Ocieplony styropianem 20cm
- Dach konstrukcji drewnianej, pokryty membraną i blachodachówką płaską Garda
- Orynnowanie Galeco, malowane proszkowo w kolorze antracyt
- Przewody kominowe i wentylacyjne
- Instalacja elektryczna, gazowa, wod-kan, antenowa
- Gaz z własnej butli, usytuowanej na działce o pow. 2700l
- Strop drewniany, ocieplony wełną celulozową 35cm
- Posadzki betonowe, ocieplone styropianem 15cm
- Sufity podwieszane - płyta GK
- Kratki wentylacyjne na poddaszu
- Podłoga na poddaszu częściowo wyłożona płytami OSB
- Fundamenty zaizolowane, ocieplone stryopianem wodoodpornym EPS 100
- Okna PCV 3 szybowe z ciepłym montażem
- Drzwi wejściowe z ciepłym montażem
- Okno tarasowe w systemie przesuwnym HS
- Rolety zewnętrzne elektryczne
- Elewacja pokryta tynkiem silikonowym
- Rozprowadzone ogrzewanie podłogowe w całym budynku
- Piec C.O. gazowy Immergas Tera Victrix dwufunkcyjny bez zasobnika
- Wyprowadzenie wody na zewnątrz
- Tynki wewnętrzne cementowo-wapienne
- W kuchni wyprowadzenie gazu pod kuchenkę
- Podejście i stopnie do budynku wyłożone kostką brukową
Taras budynku usytuowany od strony zachodniej
Dojazd drogą gminną
Na obecnym etapie istnieje możliwość rezerwacji oferty oraz naniesienia pewnych zmian w projekcie
Cena 729 000zł brutto
Nabywając tą nieruchomość Kupujący nie płaci 2% podatku PCC przy zakupie nieruchomości
Nota prawna
Opis oferty zawarty na stronie internetowej sporządzany jest na podstawie oględzin nieruchomości oraz informacji uzyskanych od właściciela, może podlegać aktualizacji i nie stanowi oferty określonej w art. 66 i następnych K.C.
Kalkulator kredytowy
Formularz kontaktowy