Mieszkanie na sprzedaż
264 900 zł
51 m2











1 / 11
Szczegóły ogłoszenia
- Symbol oferty MRHU-MS-485
- Typ oferty mieszkanie na sprzedaż
- Cena 264 900 zł
- Charakterystyka mieszkania 51 m2, 3 pokoje
- Budynek kamienica
- Rozkład mieszkania 4p piętro
- Czynsz Czynsz letni: 200 zł
- Okna PCV
- Stan lokalu do odświeżenia
- Umeblowanie do uzgodnienia
Lokalizacja
- Adres dolnośląskie, Wałbrzych
Opis nieruchomości
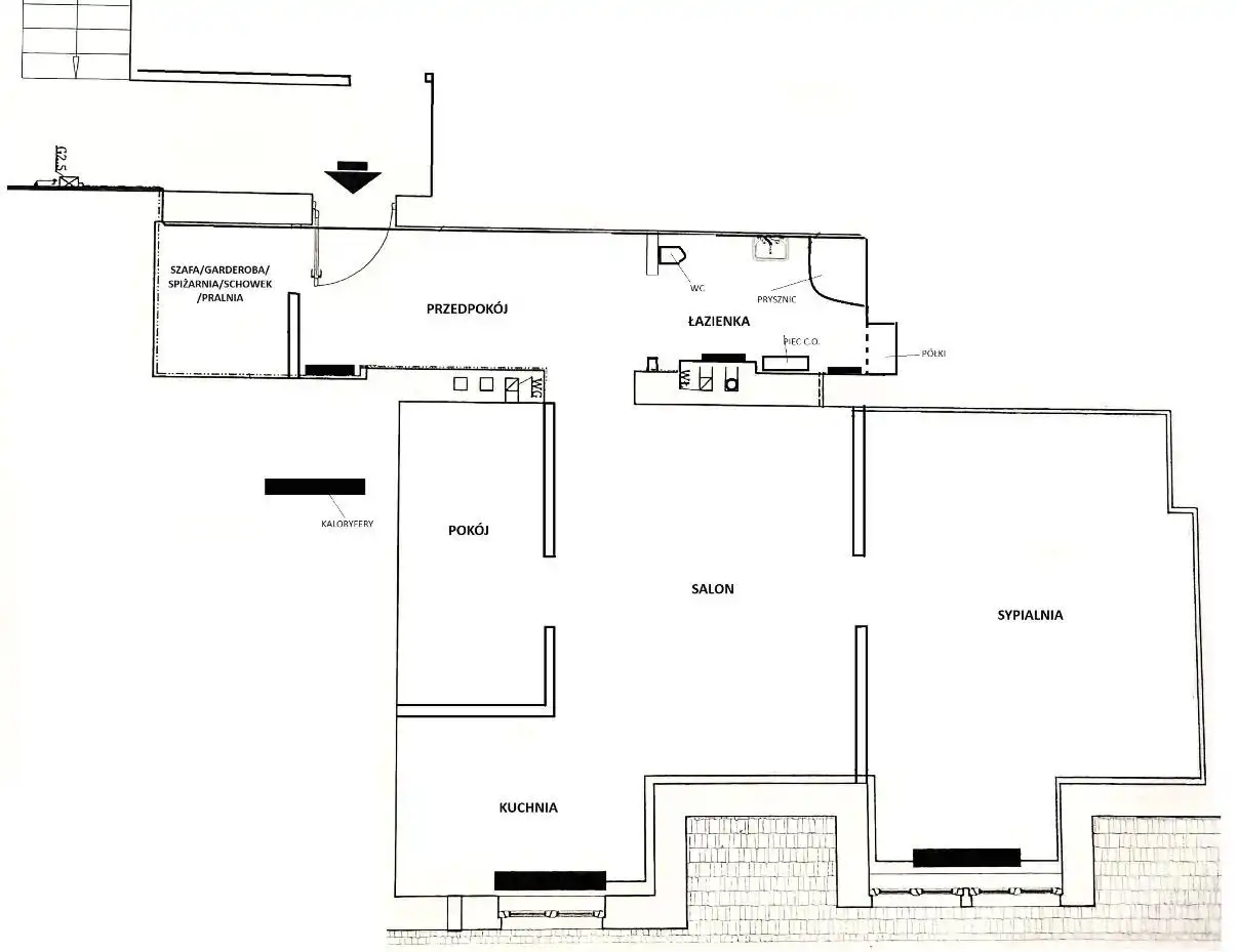
Na sprzedaż mieszkanie o powierzchni 51 m², położone na 4. piętrze w kamienicy.
✔️ salon z aneksem kuchennym
✔️ sypialnia duża oraz mniejszy pokój dziecięcy
✔️ łazienka z WC + przedpokój
✔️ instalacje po wymianie
✔️ ogrzewanie - dwufunkcyjny piec gazowy firmy TERMET
- mieszkanie po generalnym remoncie - gotowe do zamieszkania
- czynsz: ok. 200 zł
📍 Wałbrzych – Nowe Miasto, w pobliżu Park Sobieskiego
Świetna lokalizacja – blisko zieleni, sklepów i komunikacji.
Idealne dla rodziny lub pod inwestycję.
📞 Zapraszam do kontaktu i na prezentację!
Oferta została sporządzona na podstawie oględzin i informacji uzyskanych od właściciela, może ulec zmianie i nie stanowi oferty określonej w art. 66 i następnych K.C.
Nota prawna
Opis oferty zawarty na stronie internetowej sporządzany jest na podstawie oględzin nieruchomości oraz informacji uzyskanych od właściciela, może podlegać aktualizacji i nie stanowi oferty określonej w art. 66 i następnych K.C.
Kalkulator kredytowy
Formularz kontaktowy