Mieszkanie na sprzedaż








Szczegóły ogłoszenia
- Symbol oferty WOZ-MS-4095
- Typ oferty mieszkanie na sprzedaż
- Cena 264 900 zł
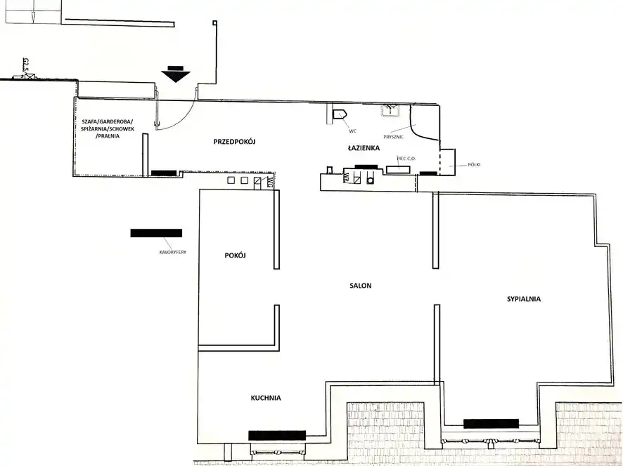
- Charakterystyka mieszkania 50.86 m2, 3 pokoje
- Budynek kamienica; rok budowy: 1940
- Rozkład mieszkania 4p piętro
- Media Ogrzewanie: piec dwufunkcyjny; Woda: tak; Gaz: jest
- Czynsz Czynsz letni: 200 zł
- Dojazd asfalt
- Ilość sypialni 2
- Okna PCV
- Otoczenie zabudowa wielorodzinna
- Stan lokalu do wprowadzenia
- Technologia budowlana cegła
Lokalizacja
- Adres dolnośląskie, Wałbrzych, Nowe Miasto
Opis nieruchomości
Parku Sobieskiego.
Mieszkanie znajduje się na czwartym piętrze.
Mieszkanie o powierzchni użytkowej 50,86 m2, które składa się z:
- salon z aneksem kuchennym
- sypialnia
- niewielki pokoik
- łazienka z wc
- garderoba
Mieszkanie bardzo komfortowe i słoneczne. Przedpokój duży, z szafą w której mieści się pralka, suszarka i regały.
Ogrzewanie: piec gazowy dwufunkcyjny TERMET.
Czynsz: 200 zł (fundusz remontowy, koszty zarządu).
Do mieszkania przynależy piwnica o powierzchni 1,68 m2.
Zadbana kamienica, częściowo po termomodernizacji. Klatka schodowa czysta, wyremontowana oraz z monitoringiem.
Lokalizacja: blisko sklepy, szkoła, przedszkole, do Centrum, w pobliżu park, hala lekkoatletyczna, przystanki autobusowe, Rynek, przychodnia, weterynarz.
Wszystkich dodatkowych informacji udzieli agent prowadzący:
Marta Kaczmarczyk 796 129 900
Więcej ofert na stronie: www.wozniak-nieruchomosci.pl lub bezpośrednio w biurze: ul. M. Konopnickiej 18, Wałbrzych
Adres mailowy: m.kaczmarczyk@wozniak-nieruchomosci.pl
Oferujemy bezpłatną pomoc przy uzyskaniu kredytu. Jesteśmy do Państwa dyspozycji, oferujemy bezpieczne przejście przez wszelkie formalności notarialne i kredytowe. Współpracujemy z wieloma bankami co umożliwia wybranie najkorzystniejszej oferty kredytowej.
NOTA PRAWNA: Opis oferty zawarty na stronie internetowej sporządzany jest na podstawie oględzin nieruchomości oraz informacji uzyskanych od właściciela, może podlegać aktualizacji i nie stanowi oferty określonej w art. 66 i następnych K.C.