Dom na sprzedaż








Szczegóły ogłoszenia
- Symbol oferty FRP-DS-196639
- Typ oferty dom na sprzedaż
- Cena 429 000 zł
- Charakterystyka mieszkania 74.74 m2, 4 pokoje, do wykończenia
- Budynek rok budowy: 2024
- Media Ogrzewanie: pompa ciepła; Woda: tak - miejska; Kanalizacja: miejska; Gaz: brak
- Działka Niezagospodarowana, płaska, prostokąt
- Ilość sypialni 3
- Instalacje nowe
- Okna PCV 3 szyby, ciepły montaż
- Otoczenie zabudowa jednorodzinna
- Pokrycie dachu dachówka betonowa
- Rodzaj domu bliźniak
Lokalizacja
- Adres zachodniopomorskie, Wałcz (gw), Kłębowiec
Opis nieruchomości
Zabudowa bliźniacza w stanie deweloperskim - Nowe Osiedle Kołatnik – k/Wałcza!
Przedmiotem oferty jest gotowy energooszczędny dom w stanie deweloperskim z pompą ciepła i działką min. 500 m2. Idealny dla rodzin 2+1 lub 2+2
Budynek zlokalizowany na pięknym nowo powstającym osiedlu domków jednorodzinnych Kołatnik koło Wałcza, zaledwie 30 km od Piły.
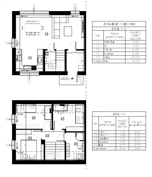
Optymalny układ pomieszczeń zawiera kuchnię, salon, 3 sypialnie, łazienkę, WC i wiatrołap. Możliwość zmiany układu pomieszczeń na poddaszu.
Powierzchnia pomieszczeń:
Parter - salon z aneksem kuchennym o pow. 30,71 m2, wc o pow. 1,40 m2, wiatrołap o pow. 3,81 m2,
Piętro - sypialnia o pow. 7,30 m2, sypialnia o pow. 7,19 m2, sypialnia o pow. 7,68 m2, łazienka o pow. 4,46 m2, holl o pow. 2,77 m2.
Stan deweloperski zawiera:
- gotowy energooszczędny dom o powierzchni użytkowej 70 m2 (po podłodze 79 m2),
- pompa ciepła z instalacją ogrzewania podłogowego,
- działka min. 500 m2,
- schody wejściowe ze stopnicą,
- taras z kostki betonowej,
- dachówka betonowa Brras,
- okna PCV, pakiet 3 szyby Ug-0,6 firmy Gealan,
- wykonanie podjazdu dla auta z płyt ażurowych.
Na osiedlu są zapewnione:
- sieci wodociągowo-kanalizacyjne, energetyczne, światłowodowe,
- drogi osiedlowe z infrastrukturą drogową,
- budynki z lokalami użytkowymi na usługi i handel,
- place zabaw i altany integracyjne,
- kompleksowe urządzenie terenu zieleni w postaci nowego nasadzenia drzew i krzewów.
Dostępne media:
- miejska sieć kanalizacyjna i wodociągowa,
- sieć energetyczna,
- sieć światłowodowa – szybki Internet i TV.
Planowany termin zakończenia inwestycji: 08/2024
Zapraszamy do kontaktu i obejrzenia nieruchomości!