Dom na sprzedaż



















Szczegóły ogłoszenia
- Symbol oferty CNG-DS-2536
- Typ oferty dom na sprzedaż
- Cena 446 000 zł
- Charakterystyka mieszkania 74.01 m2, 4 pokoje, do wykończenia
- Budynek rok budowy: 2024
- Media Ogrzewanie: podłogowe; Woda: piecyk gazowy; Kanalizacja: miejska; Prąd: jest; Gaz: brak
- Dojazd droga gruntowa
- Działka Niezagospodarowana, płaska, prostokąt
- Instalacje ELEKTRYCZNA
- Material konstrukcyjny beton komórkowy
- Okna PCV 3 szyby, ciepły montaż
- Otoczenie las
- Pokrycie dachu dachówka betonowa
- Rodzaj domu bliźniak
- Stan prawny Własność
Lokalizacja
- Adres zachodniopomorskie, wałecki, Wałcz (gw)
Opis nieruchomości
Chcesz sprawdzić swoją zdolność kredytową? Skorzystaj z bezpłatnych usług Naszego eksperta kredytowego!
Na SPRZEDAŻ nowe energooszczędne domy w zabudowie bliźniaczej na malowniczym osiedlu Kołatnik tuż obok Wałcza!
Pod lasem, z własną działką - Twój spokojny azyl blisko natury! Idealna propozycja dla osób szukających własnego domu z ogrodem, w spokojnej, zielonej okolicy - z dala od zgiełku, a jedocześnie blisko miasta!
Gotowy, energooszczędny dom - bliźniak w stanie deweloperskim z pompą ciepła i działką o powierzchni 500 m2 już w cenie mieszkania za jedyne 446 000 zł!
Idealny dla dojrzałych par i młodych rodzin 2+1 lub 2+2.
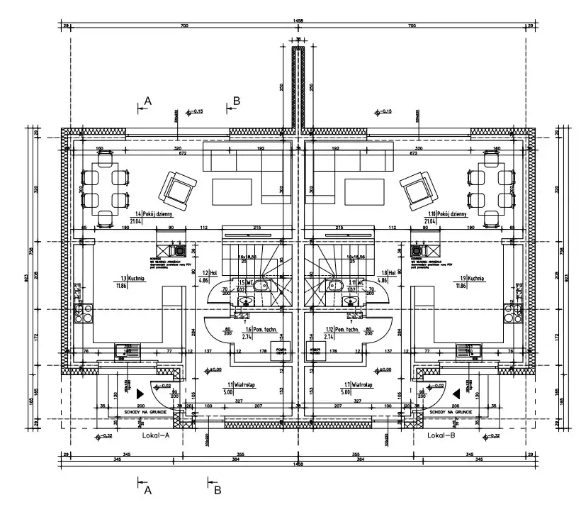
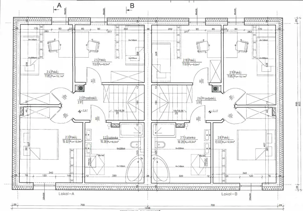
Optymalny układ pomieszczeń zawiera kuchnię, salon, 3 sypialnie, łazienkę, WC, pomieszczenie gospodarcze i wiatrołap.
Możliwość zmiany układu pomieszczeń na poddaszu oraz dalszej współpracy przy wykończeniu wnętrz.
Dostępne media:
- miejska sieć kanalizacyjna i wodociągowa,
- sieć energetyczna,
- sieć światłowodowa – szybki Internet i TV.
Stan deweloperski zawiera:
- gotowy energooszczędny dom o powierzchni użytkowej 88 m2 (po podłodze 97 m2),
- pompa ciepła z instalacją ogrzewania podłogowego,
- działka min. 500 m2,
- schody wejściowe ze stopnicą,
- taras z kostki betonowej,
- dachówka betonowa Braas,
- okna Gealan s9000.
Na osiedlu zapewnione:
- sieci wodociągowo-kanalizacyjne, energetyczne, światłowodowe,
- drogi osiedlowe z infrastrukturą drogową,
- budynki z lokalami użytkowymi na usługi i handel,
- place zabaw i altany integracyjne,
- kompleksowe urządzenie terenu zieleni w postaci nowego nasadzenia drzew i krzewów.
Budynek jest objęty 5 letnią gwarancją na wady konstrukcyjne. Gwarancja na elementy objęte gwarancja producenta zgodnie z odpowiedzialnością producenta.
Kupujący nie płaci podatku PCC 2%!
Zapraszam serdecznie po więcej szczegółów oraz w celu umówienia prezentacji!
W naszej ofercie również inne realizacje na osiedlu Kołatnik!