Lokal na sprzedaż





















Szczegóły ogłoszenia
- Symbol oferty WLI-LS-1334
- Typ oferty lokal na sprzedaż
- Cena 6 800 000 zł
- Charakterystyka mieszkania 353 m2, 12 pokoi
- Budynek blok; rok budowy: 2004
- Rozkład mieszkania 3p piętro
- Media Ogrzewanie: C.O. miejskie; Woda: jest; Gaz: jest
- Miejsce parkingowe Tak
- Balkon Barierka
- Czynsz Czynsz letni: 7262 zł
- Dojazd asfalt
- Instalacje ELEKTRYCZNA, GAZOWA
- Okna PCV
- Otoczenie park
- Stan lokalu do adaptacji
- Winda Tak
Lokalizacja
- Adres mazowieckie, Warszawa, Mokotów
Opis nieruchomości
Wyjątkowa powierzchnia biurowa przy Parku Morskie Oko – Dolny Mokotów
353 m² – całe piętro w kameralnym budynku z recepcją i ochroną
Przedmiotem sprzedaży jest reprezentacyjna powierzchnia biurowa o łącznej powierzchni 353 m², zajmująca całe piętro sześciopiętrowego budynku z recepcją, ochroną i systemem kontroli dostępu. Nieruchomość położona jest w jednej z najbardziej prestiżowych lokalizacji Dolnego Mokotowa – 120 metrów od Parku Morskie Oko i zaledwie 50 metrów od ulicy Puławskiej, co zapewnia doskonałą ekspozycję i znakomitą komunikację.
Układ i standard powierzchni pozwalają na aranżację nowoczesnej siedziby firmy, kancelarii, gabinetów specjalistycznych, biura projektowego lub prestiżowej przestrzeni usługowej.
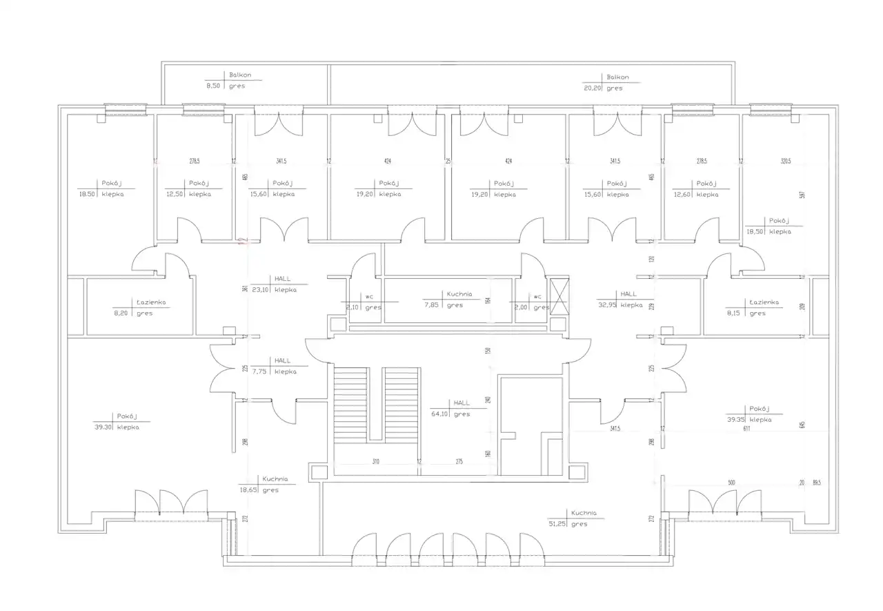
UKŁAD I FUNKCJONALNOŚĆ
Na oferowaną powierzchnię składają się dwa sąsiadujące lokale połączone w całość (możliwość ponownego wydzielenia). Aktualny podział obejmuje m.in.:
- liczne pokoje / gabinety,
- kuchnie / aneksy socjalne,
- łazienki i toalety,
- obszerny hol / recepcję,
- balkon od strony południowo-wschodniej.
WYKOŃCZENIE
- dębowy parkiet w pokojach i gabinetach,
- gres w strefach wejściowych, sanitarnych i kuchennych,
- drzwi wewnętrzne drewniane i szklane, drzwi wejściowe antywłamaniowe.
STANDARD I INSTALACJE
- indywidualna klimatyzacja w każdym pomieszczeniu,
- miejskie ogrzewanie i ciepła woda,
- pełne okablowanie strukturalne,
- światłowód w budynku,
- instalacje teletechniczne, TV, Wi-Fi,
- możliwość dowolnej adaptacji pod potrzeby firmy.
BUDYNEK
- kameralny, reprezentacyjny obiekt,
- recepcja dzienna i całodobowa ochrona,
- dwie windy hydrauliczne,
- system kontroli dostępu (karty magnetyczne, klawiatury przy wejściach z klatki i garażu),
- pełna izolacja akustyczna od ulicy Puławskiej.
Do lokalu przynależą 4 duże miejsca postojowe w garażu podziemnym (idealne również dla SUV-ów).
LOKALIZACJA
Jedna z najlepszych lokalizacji biurowych na Mokotowie:
- 70 m – przystanek tramwajowy,
- 50 m – przystanek autobusowy,
- 120 m – Park Morskie Oko,
- w promieniu 200 m – sklepy, restauracje, bank, apteka, szkoła.
Doskonały dojazd zarówno dla pracowników, jak i klientów.
PARAMETRY
- Powierzchnia całkowita: 353 m² (całe piętro).
- Piętro: 3/6.
- 4 miejsca postojowe w garażu podziemnym – 100 000 zł każde.
ATUTY NIERUCHOMOŚCI
- cała kondygnacja tylko dla jednego właściciela – pełna prywatność,
- prestiżowy adres na Dolnym Mokotowie,
- idealne miejsce na biuro, kancelarię, gabinety lub siedzibę firmy,
- klimatyzacja w każdym pomieszczeniu,
- kontrola dostępu i wysoki poziom bezpieczeństwa,
- możliwość elastycznej aranżacji i podziału,
- reprezentacyjny budynek i doskonała komunikacja.
STAN PRAWNY
Pełna własność, możliwość zakupu na kredyt hipoteczny.
Pierwsze dwa zdjęcia przedstawiają wizualizację.
Jeżeli zainteresowała Państwa oferta - serdecznie zapraszam do kontaktu.
Patrycja Włodarska
Premium Property Advisor
wlodarska@wli.pl
Niniejsze ogłoszenie jest wyłącznie informacją i nie stanowi oferty w rozumieniu art. 66 § 1 Kodeksu Cywilnego. Dokładamy wszelkich starań, aby informacje przedstawione w naszych ofertach były aktualne i rzetelne. Informacje zawarte w ofercie uzyskano na podstawie oświadczeń sprzedających. Załączony plan nieruchomości jest poglądowy.
Agencja WHITE LION INVESTMENTS jest objęta obowiązkiem ubezpieczenia odpowiedzialności cywilnej zawodowej. Posiadamy OC zgodne z Rozporządzeniem Ministra Finansów z dn. 26.04.2019 r. w sprawie obowiązkowego ubezpieczenia odpowiedzialności cywilnej pośrednika w obrocie nieruchomościami (Dz. U. z 2019 r., poz. 804).
Pobieramy wynagrodzenie w formie prowizji za wykonaną usługę pośrednictwa. Bierzemy odpowiedzialność za bezpieczeństwo przeprowadzanych przez nas transakcji.