Dom na sprzedaż
1 190 000 zł
105 m2















1 / 15
Szczegóły ogłoszenia
- Symbol oferty DNX-DS-30705
- Typ oferty dom na sprzedaż
- Cena 1 190 000 zł
- Charakterystyka mieszkania 105 m2, 4 pokoje, do zamieszkania
- Budynek rok budowy: 2025
- Media Ogrzewanie: C.O. GAZOWE; Woda: jest; Kanalizacja: tak; Prąd: jest; Gaz: tak - miejski
- Dojazd asfalt
- Działka częściowo zagospodarowana, płaska, kwadrat
- Ilość sypialni 3
- Instalacje nowe
- Material konstrukcyjny ceramika
- Okna PCV 3 komorowe
- Otoczenie działki niezabudowane
- Pokrycie dachu dachówka ceramiczna
- Pozwolenie na użytkowanie Tak
- Rodzaj domu wolnostojący
- Stan prawny Własność
Lokalizacja
- Adres małopolskie, Wieliczka (gw), Koźmice Wielkie
Opis nieruchomości
KOŹMICE WIELKIE, DOM – o powierzchni 105 m2 (użytkowa 94,4m2), wybudowany w 2025 r., wykończony w wysokim standardzie. Wybudowany według projektu Archonu "Dom na wzgórzu N"
Atuty.
Dom z tarasem.
Dom położony w malowniczej i cichej okolicy, z dużą ilością zieleni, zbudowany z pustaków ceramicznych MAX( pustak + ocieplenie na zewnątrz 10 cm styropian+ tynk akrylowy), kryty dachówką ceramiczną- ocieplony wełną mineralną, instalacja alarmowa w całym domu,
CO gazowe - piec dwu funkcyjny.
W budynku okna PCV, na podłogach parkiety, panele, gresy oraz terakota.
Rozkład pomieszczeń:
Parter
Piętro
Działka.
Kształtna, ogrodzona. Całe osiedle (8 domów) zamykane bramą na pilota.
Działka pięknie zagospodarowana, o pow. 2,8 ara.
Lokalizacja.
Nieruchomość to idealne miejsce dla ceniących swoją prywatność i bezpośredni kontakt z przyrodą.
Szybki dojazd do Krakowa samochodem lub komunikacją zbiorową.
Jeśli więc chcesz mieszkać w oazie zieleni, ciszy i spokoju, a zarazem, szybko dostać się do pracy - do miasta, to jest to miejsce idealne dla Ciebie.
ZADZWOŃ A JA DOPOWIEM SZCZEGÓŁY, BO O NIERUCHOMOŚCI NIE DA SIĘ WSZYSTKIEGO OPISAĆ.
Atuty.
- zaciszne położenie nieruchomości
- dogodny dojazd do centrum miejscowości
- pięknie zagospodarowany działka z widokiem na zieleń
- dom wybudowany i urządzony z najwyższej jakości materiałów
- duży taras
Dom z tarasem.
Dom położony w malowniczej i cichej okolicy, z dużą ilością zieleni, zbudowany z pustaków ceramicznych MAX( pustak + ocieplenie na zewnątrz 10 cm styropian+ tynk akrylowy), kryty dachówką ceramiczną- ocieplony wełną mineralną, instalacja alarmowa w całym domu,
CO gazowe - piec dwu funkcyjny.
W budynku okna PCV, na podłogach parkiety, panele, gresy oraz terakota.
Rozkład pomieszczeń:
Parter
- wiatrołap (3,33 mkw.)
- przedpokój (3,46 mkw.)
- pralnia (1,5 mkw.)
- kuchnia (7,89 mkw.)
- spiżarka (1,5 mkw.)
- salon z wyjściem na taras (31,03 mkw.)
- łazienka (4,61 mkw.)
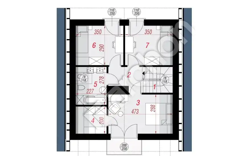
Piętro
- schody (4,39 mkw.)
- hol (3,86 mkw.)
- sypialni (11,68 mkw.)
- garderoba (3,24 mkw.)
- łazienka (4,53 mkw.)
- pokój (8,24 mkw.)
- pokój (8,24 mkw.)
- wykończony, na podłodze sztuczna trawa
Działka.
Kształtna, ogrodzona. Całe osiedle (8 domów) zamykane bramą na pilota.
Działka pięknie zagospodarowana, o pow. 2,8 ara.
Lokalizacja.
Nieruchomość to idealne miejsce dla ceniących swoją prywatność i bezpośredni kontakt z przyrodą.
Szybki dojazd do Krakowa samochodem lub komunikacją zbiorową.
Jeśli więc chcesz mieszkać w oazie zieleni, ciszy i spokoju, a zarazem, szybko dostać się do pracy - do miasta, to jest to miejsce idealne dla Ciebie.
ZADZWOŃ A JA DOPOWIEM SZCZEGÓŁY, BO O NIERUCHOMOŚCI NIE DA SIĘ WSZYSTKIEGO OPISAĆ.
Nota prawna
Opis oferty zawarty na stronie internetowej sporządzany jest na podstawie oględzin nieruchomości oraz informacji uzyskanych od właściciela, może podlegać aktualizacji i nie stanowi oferty określonej w art. 66 i następnych K.C.
Kalkulator kredytowy
Formularz kontaktowy