Mieszkanie na sprzedaż
480 128 zł
39 m2



1 / 3
Szczegóły ogłoszenia
- Symbol oferty TEC-MS-1903
- Typ oferty mieszkanie na sprzedaż
- Cena 480 128 zł
- Charakterystyka mieszkania 38.72 m2, 2 pokoje
- Budynek blok; rok budowy: 2023
- Rozkład mieszkania parter piętro
- Media Ogrzewanie: C.O. miejskie; Woda: ciepła - miejska; Gaz: brak
- Bezpieczeństwo Rolety antywłamaniowe
- Czynsz Czynsz letni: 500 zł
- Dojazd asfalt
- Garaż garaż pod budynkiem
- Ilość sypialni 1
- Instalacje ELEKTRYCZNA
- Okna PCV
- Otoczenie działki zabudowane
- Stan lokalu deweloperski
- Technologia budowlana beton, ocieplony, płyta
- Winda Tak
Lokalizacja
- Adres małopolskie, Wieliczka
Opis nieruchomości
LOKALIZACJA
II etap inwestycji Osiedle Solne to nowoczesna inwestycja mieszkaniowa zlokalizowana na granicy Krakowa i Wieliczki przy ul. Św. Barbary w sąsiedztwie domów jednorodzinnych i zabudowy szeregowej. To 3 nowocześnie zaprojektowane segmenty o eleganckiej architekturze, w których znajdzie się ponad 180 mieszkań o różnorodnych powierzchniach (od ok. 30 – 110 m2). Zaletą lokalizacji jest rozwinięta infrastruktura społeczna. Pobliskie tereny zielone czy obiekty sportowo-rekreacyjne sprawiają, że nasza inwestycja jest miejscem idealnym dla rodziny.
MIESZKANIE
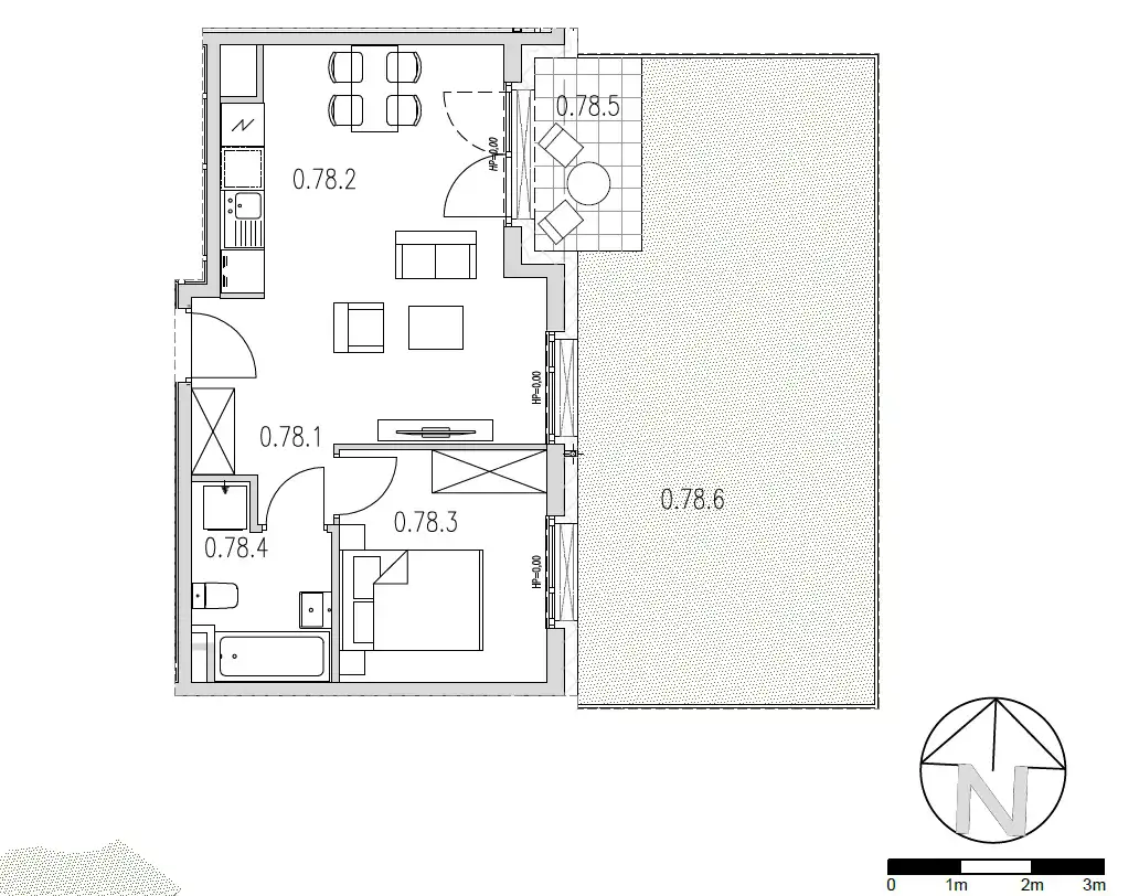
Mieszkanie będące przedmiotem sprzedaży mieści się na PARTERZE budynku B. Na powierzchnię 38,72 m2 składa się przedpokój z miejscem na szafę, salon z aneksem kuchennym 19 m2, sypialnia 9,3 m2 oraz łazienka 4,38m2. Do mieszkania przynależy taras 4m2 oraz ogrodek 35 m2. Mieszkanie o ekspozycji wschodniej. Mieszkanie mieści się w bloku B - mniejszym, bardziej kameralnym. Ogrzewanie miejskie, cichobieżna winda, wideodomofon. Rolety zewnętrzne.
Termin realizacji to I kwartał 2027. Umowa cesji.
CENA
12 400 pln / m2 mieszkanie
37 000 pln / miejsce postojowe
12 320 pln / komórka lokatorska
25 000 pln/ odstępne
DODATKOWE INFORMACJE
Więcej informacji pod nr tel. 500 460 451. CESJA
II etap inwestycji Osiedle Solne to nowoczesna inwestycja mieszkaniowa zlokalizowana na granicy Krakowa i Wieliczki przy ul. Św. Barbary w sąsiedztwie domów jednorodzinnych i zabudowy szeregowej. To 3 nowocześnie zaprojektowane segmenty o eleganckiej architekturze, w których znajdzie się ponad 180 mieszkań o różnorodnych powierzchniach (od ok. 30 – 110 m2). Zaletą lokalizacji jest rozwinięta infrastruktura społeczna. Pobliskie tereny zielone czy obiekty sportowo-rekreacyjne sprawiają, że nasza inwestycja jest miejscem idealnym dla rodziny.
MIESZKANIE
Mieszkanie będące przedmiotem sprzedaży mieści się na PARTERZE budynku B. Na powierzchnię 38,72 m2 składa się przedpokój z miejscem na szafę, salon z aneksem kuchennym 19 m2, sypialnia 9,3 m2 oraz łazienka 4,38m2. Do mieszkania przynależy taras 4m2 oraz ogrodek 35 m2. Mieszkanie o ekspozycji wschodniej. Mieszkanie mieści się w bloku B - mniejszym, bardziej kameralnym. Ogrzewanie miejskie, cichobieżna winda, wideodomofon. Rolety zewnętrzne.
Termin realizacji to I kwartał 2027. Umowa cesji.
CENA
12 400 pln / m2 mieszkanie
37 000 pln / miejsce postojowe
12 320 pln / komórka lokatorska
25 000 pln/ odstępne
DODATKOWE INFORMACJE
Więcej informacji pod nr tel. 500 460 451. CESJA
Nota prawna
Opis oferty zawarty na stronie internetowej sporządzany jest na podstawie oględzin nieruchomości oraz informacji uzyskanych od właściciela, może podlegać aktualizacji i nie stanowi oferty określonej w art. 66 i następnych K.C.
Kalkulator kredytowy
Formularz kontaktowy