Dom na sprzedaż











Szczegóły ogłoszenia
- Symbol oferty PAC-DS-8836
- Typ oferty dom na sprzedaż
- Cena 1 250 000 zł
- Charakterystyka mieszkania 124.29 m2, 5 pokoi, do wykończenia
- Budynek rok budowy: 2025
- Media Ogrzewanie: C.O. GAZOWE; Woda: jest; Kanalizacja: szambo; Prąd: jest; Gaz: jest
- Bezpieczeństwo ogrodzenie działki: ogrodzona
- Balkon jest
- Dojazd UTWARDZONA
- Działka częściowo zagospodarowana, płaska, prostokąt
- Garaż w bryle
- Ilość sypialni 4
- Material konstrukcyjny pustak
- Okna PCV 3 szyby, ciepły montaż
- Otoczenie zabudowa jednorodzinna
- Pokrycie dachu blacha
- Pozwolenie na użytkowanie W trakcie uzyskiwania
- Rodzaj domu bliźniak
- Taras taras
Lokalizacja
- Adres małopolskie, Wielka Wieś, Tomaszowice
Opis nieruchomości
0 % PROWIZJI - BRAK DODATKOWYCH KOSZTÓW!
Ostatni wolny dom!!!
Do sprzedania atrakcyjny dom jednorodzinny w zabudowie bliźniaczej (formalnie lokal mieszkalny) położony w miejscowości Tomaszowice, gm. Wielka Wieś. Budynek o pow. użytkowej 124,29m2, usytuowany działce o pow. ok. 4 arów. Dom położony w I linii zabudowy, dojazd drogą gminną. Budynek o nowoczesnej i eleganckiej bryle, usytuowany w cichym i spokojnym miejscu.
Media: prąd, woda, gaz, szambo.
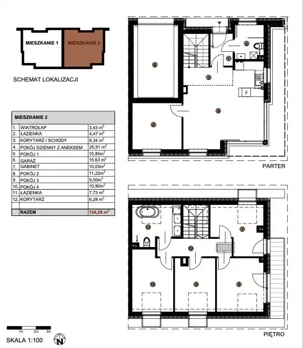
Rozkład pomieszczeń:
Parter: wiatrołap (3,43m2), salon z aneksem kuchennym i jadalnią (25,85m2), pokój (10,91m2), łazienka (4,47m2), schody + korytarz (8,34 m2), garaż (15,63 m2)
Poddasze: komunikacja (6,28m2), pokój (11,22m2), pokój (9,50m2), pokój (10,90m2), łazienka (7,73m2).
Dom wybudowany w technologii tradycyjnej, sprzedawany w stanie deweloperskim obejmującym:
- pokrycie dachu: blacha,
- dach dwuspadowy,
- podstawowy materiał budowlany: pustak ceramiczny,
- ocieplenie poddasza pinką;
- okna firmy Salamander,
- elewacja: tynk silikonowy + elementy drewnopodobne,
- instalacja pod klimatyzację,
- fotowoltaika - panele o mocy kWp,
- ogrzewanie podłogowe,
- instalacje: elektryczna, wodna, gazowa,
- kanalizacja deszczowa,
- taras wybrukowany,
- podejścia, podjazd, opaska wokół domu wybrukowane,
- działka zagospodarowana,
- posesja ogrodzona.
Nieruchomość położona w cichej i spokojnej okolicy w sąsiedztwie luźnej zabudowy jednorodzinnej. Świetna komunikacja z Krakowem. Nieopodal: gabinet lekarski, restauracja, Dwór w Tomaszowicach, sklep spożywczy. Przystanek MPK 700m, Factory Kraków, ewidencyjna granica Krakowa ok. 4km.
Planowany odbiór: I kwartał 2026r.
Cena: 1.250.000 zł brutto. Kupujący nie płaci 2% podatku PCC.
Serdecznie polecamy i zachęcamy do bezpłatnej prezentacji !!! Więcej podobnych ofert na naszej stronie www.pacanowscy.pl Kontakt do opiekuna oferty: 500-702-305 Michał Sibiga