Dom na sprzedaż




























Szczegóły ogłoszenia
- Symbol oferty SPEK-DS-6557
- Typ oferty dom na sprzedaż
- Cena 1 380 000 zł
- Charakterystyka mieszkania 163.54 m2, 4 pokoje, do wykończenia
- Budynek rok budowy: 2024
- Media Ogrzewanie: C.O. GAZOWE; Woda: jest; Kanalizacja: tak; Prąd: jest; Gaz: jest
- Instalacje dobre
- Okna PCV
- Rodzaj domu bliźniak
Lokalizacja
- Adres małopolskie, Wielka Wieś, Modlniczka
Opis nieruchomości
Powierzchnia całkowita: 163,54 m² | Garaż | Ogródek | 3 sypialnie | 2 łazienki + WC | Garderoby | Pom. gospodarcze
Prezentujemy przestronny i funkcjonalny segment w zabudowie szeregowej, położony w cichej i dobrze skomunikowanej części Modlniczki – zaledwie kilka minut od Krakowa. Nieruchomość w stanie deweloperskim, idealna do własnej aranżacji.
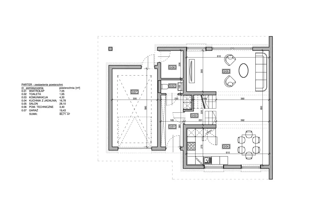
Parter – 80,71 m²:
-
Wiatrołap – 7,05 m² – miejsce na dużą szafę w zabudowie
-
Toaleta – 1,65 m² – idealna dla gości
-
Komunikacja – 4,30 m²
-
Kuchnia z jadalnią – 16,78 m² – duże okna zapewniają naturalne światło przez cały dzień
-
Przestronny salon – 28,10 m² – z bezpośrednim wyjściem na taras i ogród
-
Pomieszczenie techniczne – 3,40 m²
-
Garaż w bryle budynku – 19,43 m² – z wygodnym wejściem do części mieszkalnej
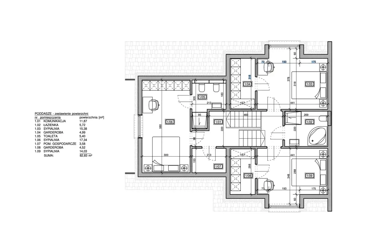
Poddasze – 82,83 m²:
-
Komunikacja – 11,87 m²
-
Łazienka główna – 5,72 m²
-
Dodatkowa toaleta – 5,40 m²
-
3 komfortowe sypialnie – 17,34 m², 15,38 m² i 14,03 m² – idealne jako sypialnie dziecięce, master bedroom czy gabinet
-
Dwie garderoby – 4,99 m² i 4,52 m² – koniec z brakiem miejsca na przechowywanie
-
Pomieszczenie gospodarcze – 3,58 m² – możliwość aranżacji pralni
Dodatkowe atuty:
-
Działka o powierzchni 3 arów – prywatna przestrzeń do wypoczynku
-
Przemyślany układ pomieszczeń – funkcjonalność i komfort
-
Stan deweloperski – możliwość własnej aranżacji wnętrz
-
Nowoczesna architektura i estetyczne wykończenie elewacji
-
Cicha i spokojna okolica, blisko natury i z szybkim dojazdem do Krakowa
Zapraszam na prezentacje!
Przed prezentacją obowiązuje podpisanie standardowej umowy pośrednictwa.
KONTAKT: 608-596-169
Spektrum Estate Wioletta Grubarek ul. Kazimierza Wielkiego 58/3 30-082 Kraków
Pośrednik odpowiedzialny zawodowo za wykonanie umowy pośrednictwa Nr Licencji 5989.
Oferuje skuteczną i bezpłatną pomoc w uzyskaniu kredytu.
Przedstawione powyżej informacje nie stanowią oferty handlowej w rozumieniu przepisów prawa, lecz stanowią zaproszenie do zapoznania się nią.
Wszelkie dane dotyczące nieruchomości uzyskano na podstawie oświadczeń właściciela.
ZAPRASZAM!