Dom na sprzedaż













Szczegóły ogłoszenia
- Symbol oferty RLN-DS-9280
- Typ oferty dom na sprzedaż
- Cena 2 590 000 zł
- Charakterystyka mieszkania 556 m2, 10 pokoi, do wykończenia
- Budynek rok budowy: 2026
- Media Ogrzewanie: pompa ciepła; Woda: tak - miejska; Kanalizacja: miejska; Prąd: jest; Gaz: brak
- Bezpieczeństwo ogrodzenie działki: brak
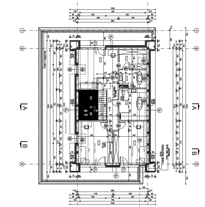
- Balkon duży
- Dojazd ASFALTOWA
- Działka Zagospodarowana, płaska, trapez
- Garaż brak
- Ilość sypialni 9
- Instalacje nowe
- Material konstrukcyjny pustak porotherm
- Okna PCV
- Otoczenie zabudowa jednorodzinna
- Podpiwniczenie Tak
- Pokrycie dachu dachówka
- Pozwolenie na użytkowanie W trakcie uzyskiwania
- Rodzaj domu wolnostojący
- Taras taras duży
Lokalizacja
- Adres małopolskie, krakowski, Wielka Wieś
Opis nieruchomości
REZERWACJA
Lokalizacja: Giebułtów to urokliwa okolica tuż przy granicy Krakowa, która jest ciszę i komfort życia blisko natury. Doskonała komunikacja (S52, DK94) pozwala szybko dotrzeć do centrum miasta. W pobliżu znajdują się tereny rekreacyjne, trasy rowerowe i Ojcowski Park Narodowy. Idealne miejsce dla osób szukających spokoju z łatwym dostępem do miejskich
Działka o powierzchni 14,5a.
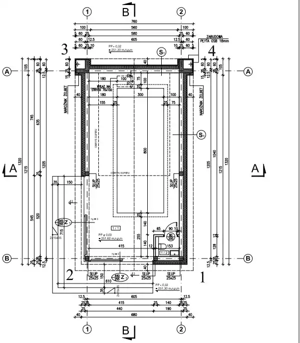
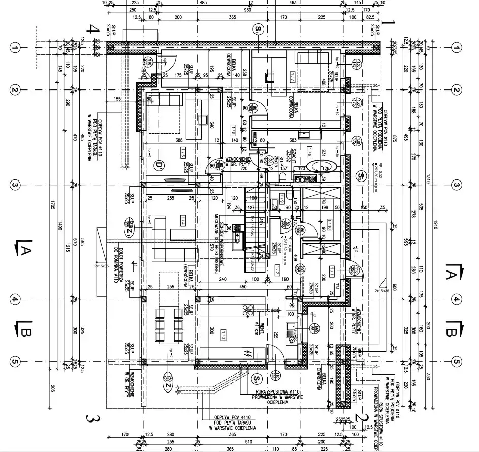
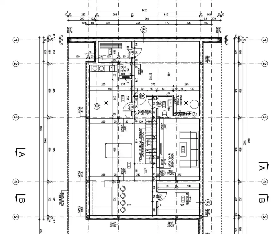
Dom z możliwościami dużych modyfikacji : o powierzchni użytkowej 385m2 składa się z 3 kondygnacji (piwnica, parter, poddasze). Rozkład pokoi:
PIWNICE: 4x pokoje, pralnia, kotłownia, wc
PARTER: Duży salon z jadalnią i kuchnią, 2x sypialnia, łazienka, wc, garderoba
PODDASZE: 3x sypialnie - w tym jedna z prywatną łazienką i garderobą, łazienka. Z każdej sypialni dostępne wyjście na duży taras.
Obok domu wybudowany zostanie budynek o pow. ok. 68m2 na podgrzewany basen lub inną funkcję - np biuro.
Standard deweloperski: pustak ceramiczny + ocieplenie, tynki, wylewki, okna 3-szybowe, komplet instalacji: prąd, woda, ogrzewanie, podłączanie do kanalizacji miejskiej, dachówka betonowa, drzwi zewnętrzne firmy Gerda, podjazd utwardzony.
Ogrodzenie do ustalenia indywidualnie.
Źródło ogrzewania: w cenie pompa ciepła, ogrzewanie podłogowe, możliwa instalacja fotowoltaiczna,
Termin realizacji 2026 rok - obecnie można wprowadzać INDYWIDUALNE zmiany w układzie ścianek - w cenie.
---- rezerwacja-----
Zapytaj o inne: Modlniczka obok lasu mamy 2 projekty w cenie ok 2 mln
Kontakt:
RealDom Nieruchomości
600 160 666