Dom na sprzedaż
629 999 zł
85 m2







1 / 7
Szczegóły ogłoszenia
- Symbol oferty LNR-DS-185
- Typ oferty dom na sprzedaż
- Cena 629 999 zł
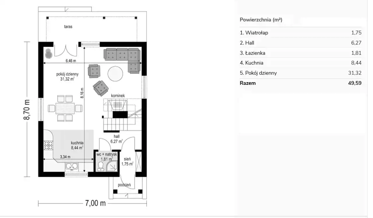
- Charakterystyka mieszkania 84.66 m2, 4 pokoje, do wykończenia
- Media Ogrzewanie: c.o.; Woda: jest; Kanalizacja: własna oczyszczalnia; Prąd: jest; Gaz: brak
- Bezpieczeństwo ogrodzenie działki: siatka
- Działka częściowo zagospodarowana, płaska, prostokąt
- Instalacje nowe
- Okna PCV
- Pokrycie dachu blachodachówka
- Rodzaj domu jednorodzinny
- Technologia budowlana gazobeton
- Umeblowanie brak
Lokalizacja
- Adres mazowieckie, Wieniawa, Koryciska
Opis nieruchomości
Dom jednorodzinny- projekt D03 „Grześ” | działka ok. 2100 m²
Na sprzedaż dom jednorodzinny w stanie deweloperskim, realizowany według projektu D03 Grześ.
Nieruchomość położona jest na działce o powierzchni około 2100 m², częściowo ogrodzonej, co zapewnia komfort i prywatność przyszłym właścicielom.
Dom wybudowany z pustaka H+H, z dbałością o solidność konstrukcji:
- lany strop
- pełne deskowanie dachu
- pokrycie - blachodachówka
- stan deweloperski - możliwość wykończenia według własnej wizji
W projekcie wprowadzono funkcjonalną zmianę - na parterze oddzielono pokój dzienny od salonu, co daje większą swobodę aranżacyjną i wyraźny podział stref w domu (np. osobna jadalnia, gabinet lub dodatkowy pokój).
Media:
- prąd
- woda
- szambo lub alternatywnie - przydomowa oczyszczalnia ścieków
Na działce znajduje się również studnia z bali, która nadaje nieruchomości wyjątkowego charakteru, oraz drewniana szopa - idealna jako miejsce do przechowywania narzędzi, sprzętu ogrodowego czy drewna.
Duża, około 2100-metrowa działka daje szerokie możliwości zagospodarowania – ogród, strefa relaksu, plac zabaw czy dodatkową zabudowę gospodarczą.
To solidnie wybudowany dom z potencjałem, idealny dla osób, które chcą wykończyć nieruchomość według własnych potrzeb i gustu.
Jeżeli ten projekt lub lokalizacja nie spełniają Twoich oczekiwań, zapraszam do zapoznania się z moimi pozostałymi ogłoszeniami.
https://www.nieruchomosci-online.pl/agenci/jaroslaw-nowak-2
Na sprzedaż dom jednorodzinny w stanie deweloperskim, realizowany według projektu D03 Grześ.
Nieruchomość położona jest na działce o powierzchni około 2100 m², częściowo ogrodzonej, co zapewnia komfort i prywatność przyszłym właścicielom.
Dom wybudowany z pustaka H+H, z dbałością o solidność konstrukcji:
- lany strop
- pełne deskowanie dachu
- pokrycie - blachodachówka
- stan deweloperski - możliwość wykończenia według własnej wizji
W projekcie wprowadzono funkcjonalną zmianę - na parterze oddzielono pokój dzienny od salonu, co daje większą swobodę aranżacyjną i wyraźny podział stref w domu (np. osobna jadalnia, gabinet lub dodatkowy pokój).
Media:
- prąd
- woda
- szambo lub alternatywnie - przydomowa oczyszczalnia ścieków
Na działce znajduje się również studnia z bali, która nadaje nieruchomości wyjątkowego charakteru, oraz drewniana szopa - idealna jako miejsce do przechowywania narzędzi, sprzętu ogrodowego czy drewna.
Duża, około 2100-metrowa działka daje szerokie możliwości zagospodarowania – ogród, strefa relaksu, plac zabaw czy dodatkową zabudowę gospodarczą.
To solidnie wybudowany dom z potencjałem, idealny dla osób, które chcą wykończyć nieruchomość według własnych potrzeb i gustu.
Jeżeli ten projekt lub lokalizacja nie spełniają Twoich oczekiwań, zapraszam do zapoznania się z moimi pozostałymi ogłoszeniami.
https://www.nieruchomosci-online.pl/agenci/jaroslaw-nowak-2
Nota prawna
Opis oferty zawarty na stronie internetowej sporządzany jest na podstawie oględzin nieruchomości oraz informacji uzyskanych od właściciela, może podlegać aktualizacji i nie stanowi oferty określonej w art. 66 i następnych K.C.
Kalkulator kredytowy
Formularz kontaktowy