Mieszkanie na sprzedaż













Szczegóły ogłoszenia
- Symbol oferty FMA-MS-2980
- Typ oferty mieszkanie na sprzedaż
- Cena 195 000 zł
- Charakterystyka mieszkania 37.6 m2, 2 pokoje
- Budynek blok; rok budowy: 1971
- Rozkład mieszkania 3p piętro
- Media Ogrzewanie: miejskie; Woda: ciepła - miejska; Gaz: tak - miejski
- Balkon jest
- Czynsz 287 zł
- Dojazd asfalt
- Okna PCV
- Otoczenie rzeka
- Stan lokalu do odnowienia
- Technologia budowlana płyta
- Umeblowanie częściowo umeblowane
- Winda Tak
Lokalizacja
- Adres kujawsko-pomorskie, Włocławek, Zazamcze
Opis nieruchomości
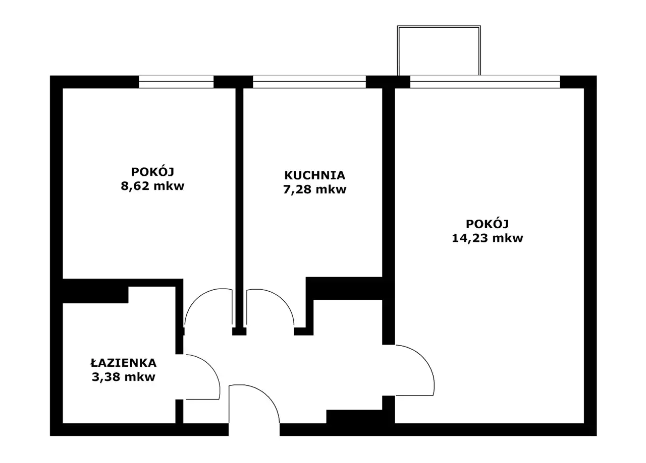
Mieszkanie 2-pokojowe o powierzchni 37,60 mkw + użytkowana piwnica, położone na 3. piętrze bloku 11-piętrowego, na Os „Zazamcze”, przy ul. Toruńskiej we Włocławku, z balkonem, z jasną kuchnią, bez pokoi przechodnich, duży pokój o powierzchni 14,23 mkw, sypialnia – 8,62 mkw, kuchnia – 7,28 mkw, łazienka z WC – 3,38 mkw, przedpokój – z wnęką na szafę – 4,09 mkw.
Okna PCW (prócz sypialni), w pokojach na podłodze parkiet, w pozostałych pomieszczeniach winigram, na ścianach tapety malowane, częściowo tynk, w kuchni i w łazience glazura.
Czysta klatka schodowa, funkcjonują dwie nowoczesne windy, blok ocieplony, z kolorową elewacją.
Dobra lokalizacja, w pobliżu różne sklepy, szkoły, przedszkole, przy bloku ogólnodostępne miejsca parkingowe, wokół zagospodarowane tereny zielone. Bardzo dobre połączenie z centrum miasta i innym osiedlami - w pobliżu przystanek kilku linii autobusowych Miejskiego Przedsiębiorstwa Komunikacji.
Niskie koszty użytkowania – miesięczne opłaty ponoszone do Spółdzielni Mieszkaniowej „Zazamcze” – 287 zł + opłaty za energie elektryczną, gaz, wodę, korzystanie z wind (9 zł od osoby) i za wywóz śmieci (34 zł od osoby).
Mieszkanie wolne, do przekazania nabywcy natychmiast po rozliczeniu transakcji.
Nr katalogowy oferty: 6439M