Mieszkanie na sprzedaż





Szczegóły ogłoszenia
- Symbol oferty FMA-MS-2895
- Typ oferty mieszkanie na sprzedaż
- Cena 367 128 zł
- Charakterystyka mieszkania 50.99 m2, 2 pokoje
- Budynek nowe budownictwo; rok budowy: 2024
- Rozkład mieszkania 5p piętro
- Media Ogrzewanie: miejskie; Woda: ciepła - miejska; Gaz: brak
- Balkon jest
- Czynsz 408 zł
- Dojazd asfalt
- Garaż miejsce parkingowe
- Instalacje nowe
- Okna PCV 3 szyby, ciepły montaż
- Otoczenie park
- Plac zabaw Tak
- Stan lokalu deweloperski
- Technologia budowlana beton, cegła
- Winda Tak
Lokalizacja
- Adres kujawsko-pomorskie, Włocławek, Południe
Opis nieruchomości
Nowe mieszkanie 2-pokojowe o powierzchni 50,99 mkw, w nowym osiedlu nowoczesnych budynków mieszkalnych, w terenie zamkniętym, przy ulicy Kapitulnej we Włocławku, do dyspozycji nabywcy natychmiast po rozliczeniu transakcji!
Jest także możliwość zakupu zewnętrznego miejsca postojowego.
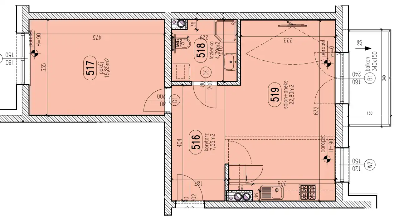
Położone na 5. piętrze budynku 5-piętrowego, oddanego do użytku w 2024 r., z windą, składające się z salonu z aneksem kuchennym o powierzchni 22,80 mkw, z wyjściem na balkon 5,10 mkw, sypialni 15,85 mkw, łazienki z WC – 4,79 mkw, przedpokoju - 7,55 mkw - w stanie deweloperskim: okna PCW 3-szybowe, solidne drzwi wejściowe, na ścianach i sufitach tynki gipsowe, grzejniki CO, instalacja elektryczna z przyłączem 3-fazowym do kuchni indukcyjnej.
Budynek o nieregularnym układzie geometrycznym, w stylu modernistycznym, z piękną elewacją w kolorach bieli, szarości z dekoracyjnymi elementami drewna i metalu (balustrady balkonowe). Teren osiedla zagospodarowany, utwardzone ciągi komunikacyjne, zadbane enklawy zieleni. Wygodna lokalizacja, na styku Osiedla Południe i Centrum, przy Parku Na Słodowie, dolinie rzeki Zgłowiączki, w promieniu 600 m do 1 km znajdują się duże i mniejsze obiekty handlowe – Castorama, Biedronka, Aldi, Lidl, Dino, Centrum Handlowe Wzorcownia z Multikinem i supermarketem Kaufland, urzędy, szkoły, przedszkola, przychodnie lekarskie, apteki, basen miejski.
Miesięczne koszty eksploatacji do wspólnoty mieszkaniowej – 408 zł, w tym zaliczka na CO + opłaty za wodę, energię elektryczną i wywóz śmieci.
Prowizja 0 %. Kupujący nie ponosi żadnych kosztów na rzecz biura ani podatku PCC (2 % do Urzędu Skarbowego) przy zakupie.