Mieszkanie na sprzedaż
439 000 zł
64 m2



















1 / 19
Szczegóły ogłoszenia
- Symbol oferty FMA-MS-2988
- Typ oferty mieszkanie na sprzedaż
- Cena 439 000 zł
- Charakterystyka mieszkania 64 m2, 3 pokoje
- Budynek blok; rok budowy: 1975
- Rozkład mieszkania 3p piętro
- Media Ogrzewanie: miejskie; Woda: ciepła - miejska; Gaz: jest
- Balkon loggia
- Czynsz 620 zł
- Dojazd asfalt
- Ilość sypialni 3
- Instalacje ELEKTRYCZNA, GAZOWA, TELEFONICZNA, INTERNETOWA
- Okna PCV
- Otoczenie centrum miasta
- Stan lokalu bardzo dobry
- Technologia budowlana cegła
Lokalizacja
- Adres kujawsko-pomorskie, Włocławek, Centrum
Opis nieruchomości
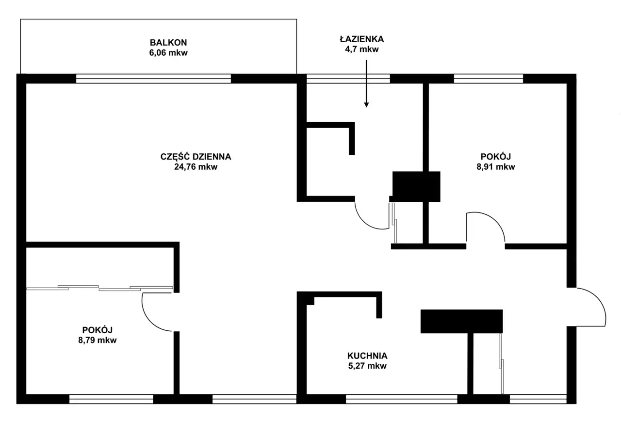
Mieszkanie 3-pokojowe o powierzchni 63,90 mkw położone na 3. piętrze bloku 4-piętrowego, w samym Centrum Włocławka, przy ulicy Świętego Antoniego, z dużym, zadaszonym balkonem (6,06 mkw) z widokiem na Os. Zawiśle, o oryginalnym rozkładzie pomieszczeń, dającym poczucie swobody i wolności, dwustronne, widne, okno w każdym pomieszczeniu.
Z przedpokoju wejście do rozległego hallu, pełniącego rolę pokoju dziennego, ze stołem i sześcioma krzesłami, połączonego z salonem 24,76 mkw, w którym mieści się ogromna, wygodna kanapa a na wprost niej szafka pod telewizor, obok sypialnia 8,79 mkw, z przedpokoju wejście do drugiej sypialni 8,91 mkw, jasnej kuchni 5,27 mkw i łazienki z WC – 4,70 mkw z oknem.
Całość starannie wykończona, począwszy od instalacji – wymieniona instalacja elektryczna i wodno-kanalizacyjna (oraz piony), okna PCW z parapetami z konglomeratu, z roletami materiałowymi, drzwi drewniane, w pokojach i hallu na podłodze panele, na ścianach i sufitach gładź, w salonie na jednej ze ścian ożywiająca wnętrze, czerwona cegła, w łazience – z oknem – jasna glazura i terakota, bardzo praktyczny blat, pod którym mieści się pralka, szafki, na blacie umywalka, wyżej lustro niemalże na całą ścianę, obok kabina prysznicowa, podwieszana muszla. Pięknie wykończona kuchnia z ciemnym gresem na podłodze, jasną glazurą na ścianach i przemyślaną zabudową meblową, wraz ze sprzętem, z podświetleniami. W cenie mieszkania pozostają trzy szafy z drzwiami przesuwnymi, z czego jedna w sypialni tak duża, że z powodzeniem zastępuje garderobę.
Blok wybudowany z cegły, dodatkowo ocieplony, w terenie zamkniętym, z możliwością parkowania w podwórku, z bramą wjazdową zdalnie sterowaną oraz wyjściem bezpośrednio z klatki schodowej na parking.
Bardzo wygodna lokalizacja, w Centrum miasta, wszędzie blisko, „pod ręką” sklepy, apteki, Park, bazar miejski, Urząd Miasta, szkoły, przedszkola, punkty gastronomiczne, przystanki autobusowe.
Miesięczne koszty eksploatacji ponoszone do spółdzielni mieszkaniowej - 620 zł + opłaty za wodę, energię elektryczną i wywóz śmieci.
Forma własności: spółdzielcze własnościowe prawo do lokalu z księgą wieczystą.
Termin wydanie: od zaraz.
Nr katalogowy oferty: 6386M
Z przedpokoju wejście do rozległego hallu, pełniącego rolę pokoju dziennego, ze stołem i sześcioma krzesłami, połączonego z salonem 24,76 mkw, w którym mieści się ogromna, wygodna kanapa a na wprost niej szafka pod telewizor, obok sypialnia 8,79 mkw, z przedpokoju wejście do drugiej sypialni 8,91 mkw, jasnej kuchni 5,27 mkw i łazienki z WC – 4,70 mkw z oknem.
Całość starannie wykończona, począwszy od instalacji – wymieniona instalacja elektryczna i wodno-kanalizacyjna (oraz piony), okna PCW z parapetami z konglomeratu, z roletami materiałowymi, drzwi drewniane, w pokojach i hallu na podłodze panele, na ścianach i sufitach gładź, w salonie na jednej ze ścian ożywiająca wnętrze, czerwona cegła, w łazience – z oknem – jasna glazura i terakota, bardzo praktyczny blat, pod którym mieści się pralka, szafki, na blacie umywalka, wyżej lustro niemalże na całą ścianę, obok kabina prysznicowa, podwieszana muszla. Pięknie wykończona kuchnia z ciemnym gresem na podłodze, jasną glazurą na ścianach i przemyślaną zabudową meblową, wraz ze sprzętem, z podświetleniami. W cenie mieszkania pozostają trzy szafy z drzwiami przesuwnymi, z czego jedna w sypialni tak duża, że z powodzeniem zastępuje garderobę.
Blok wybudowany z cegły, dodatkowo ocieplony, w terenie zamkniętym, z możliwością parkowania w podwórku, z bramą wjazdową zdalnie sterowaną oraz wyjściem bezpośrednio z klatki schodowej na parking.
Bardzo wygodna lokalizacja, w Centrum miasta, wszędzie blisko, „pod ręką” sklepy, apteki, Park, bazar miejski, Urząd Miasta, szkoły, przedszkola, punkty gastronomiczne, przystanki autobusowe.
Miesięczne koszty eksploatacji ponoszone do spółdzielni mieszkaniowej - 620 zł + opłaty za wodę, energię elektryczną i wywóz śmieci.
Forma własności: spółdzielcze własnościowe prawo do lokalu z księgą wieczystą.
Termin wydanie: od zaraz.
Nr katalogowy oferty: 6386M
Nota prawna
Opis oferty zawarty na stronie internetowej sporządzany jest na podstawie oględzin nieruchomości oraz informacji uzyskanych od właściciela, może podlegać aktualizacji i nie stanowi oferty określonej w art. 66 i następnych K.C.
Kalkulator kredytowy
Formularz kontaktowy