Dom na sprzedaż
















Szczegóły ogłoszenia
- Symbol oferty NHM-DS-36776
- Typ oferty dom na sprzedaż
- Cena 1 478 000 zł
- Charakterystyka mieszkania 180.57 m2, 5 pokoi, do wykończenia
- Budynek rok budowy: 2025
- Media Ogrzewanie: pompa ciepła; Woda: jest; Kanalizacja: szambo; Prąd: jest
- Bezpieczeństwo Rolety antywłamaniowe; ogrodzenie działki: siatka
- Dojazd ASFALTOWA
- Działka płaska, prostokąt
- Garaż dwustanowiskowy
- Instalacje nowe
- Okna PCV
- Otoczenie zabudowa jednorodzinna
- Taras taras duży
Lokalizacja
- Adres dolnośląskie, Wrocław, Fabryczna
Opis nieruchomości
Nowoczesny dom dla rodziny w spokojnej części Wrocławia
Wrocław – Marszowice | 180 m² | Garaż dwustanowiskowy | Ogród | Pompa ciepła | 1 478 000 zł
Marzysz o domu, który łączy komfort, funkcjonalność i bliskość natury – a jednocześnie daje szybki dostęp do miasta?
Ta oferta spełni oczekiwania nawet najbardziej wymagającej rodziny!
Nowoczesny dom jednorodzinny dwulokalowy (rok budowy 2025) to idealne miejsce dla 4–5-osobowej rodziny.
Przemyślany układ pomieszczeń, duże przeszklenia i doskonała izolacja cieplna gwarantują wygodę oraz niskie koszty utrzymania.
Powierzchnia całkowita: 180,57 m²
Powierzchnia użytkowa: 147,56 m²
Działka: 504 m² – prostokątna
Stan: deweloperski – możliwość wykończenia wnętrza według własnego projektu
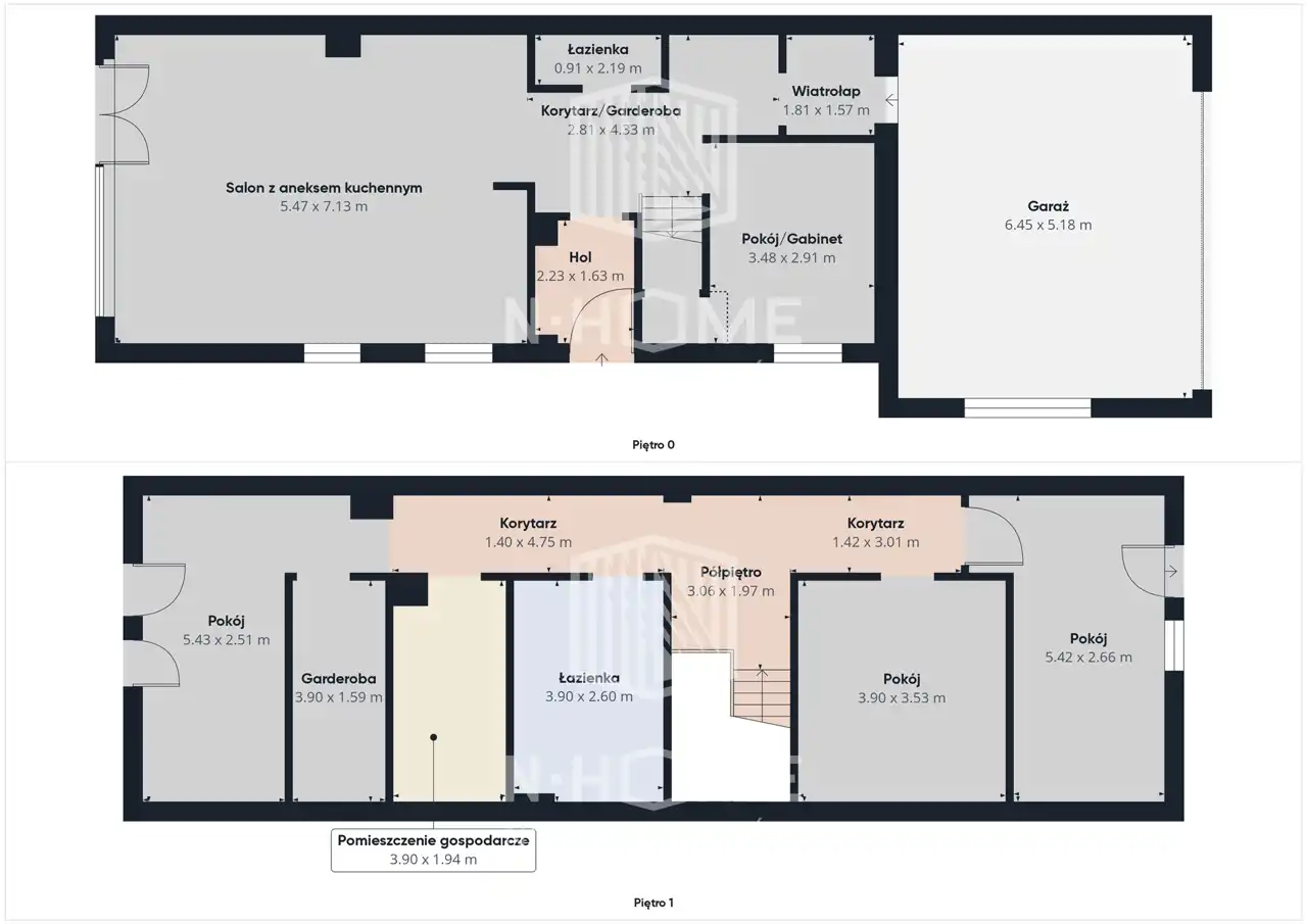
Parter:
Przestronny salon z jadalnią i kuchnią - 38,44 m² z wyjściem na ogród, gabinet - 9,36 m², garderoba - 3,21 m², łazienka - 1,99 m², hol - 5,60 m², klatka schodowa - 2,60 m² oraz wiatrołap - 3,53 m² połączony z garażem dwustanowiskowym - 33,01 m².
Piętro:
Trzy pokoje - 14,40 m², 13,98 m², 11,86 m², duża łazienka - 8,58 m², garderoba - 5,27 m², pomieszczenie gospodarcze - 6,26 m², korytarz - 16,50 m², klatka schodowa - 2,72 m² oraz strych.
To idealny układ dla rodziny – każdy znajdzie tu swoją prywatną przestrzeń.
-
Nowoczesna pompa ciepła sterowana z telefonu
-
Instalacja pod fotowoltaikę – gotowa do montażu paneli
-
Rolety antywłamaniowe i system alarmowy z kamerą
-
Ogrzewanie podłogowe w całym budynku (sterowane indywidualnie)
-
Stacja uzdatniania wody firmy VIESSMANN zainstalowana w garażu
-
Wyprowadzenie pod kominek – dla miłośników klimatu domowego ciepła
-
Możliwość wykończenia pod klucz
Spokojna, zielona część zachodniego Wrocławia. W pobliżu Las Mokrzański, idealny na spacery i rekreację.
W zasięgu kilku minut:
-
szkoła i przedszkole,
-
sklepy, punkty usługowe, plac zabaw,
-
przystanek autobusowy,
-
szybki dojazd do obwodnicy,
-
centrum Wrocławia – zaledwie 25 minut samochodem.
- Idealny dla rodziny – przestrzeń, bezpieczeństwo i prywatność
- Nowoczesna technologia – niskie koszty utrzymania
- Wysoki standard budowy i wykończenia
- Możliwość podłączenia do kanalizacji (w drodze)
- Doskonała lokalizacja – blisko miasta, ale z dala od zgiełku
- Gotowy do wykończenia według Twojej wizji
TELEFON: 884 707 175
Ten dom to nie tylko nieruchomość – to miejsce, w którym Twoja rodzina może stworzyć swój wymarzony dom z ogrodem i przestrzenią do życia.
Nie czekaj, takie oferty pojawiają się rzadko!
Przy zakupie oferujemy wsparcie przy uzyskaniu finansowania na zakup nieruchomości z opcją dodatkowych korzyści! Szczegóły u Doradcy Finansowego. Oferujemy szereg innych usług związanych z rynkiem nieruchomości. Zapraszamy do współpracy z naszym biurem.
Prezentowana oferta nie stanowi oferty handlowej w rozumieniu Art. 66 par. 1 Kodeksu Cywilnego, a dane w niej zawarte mają charakter jedynie informacyjny i mogą ulec zmianie