Dom na sprzedaż
1 090 000 zł
114 m2









1 / 9
Szczegóły ogłoszenia
- Symbol oferty PAC-DS-8860
- Typ oferty dom na sprzedaż
- Cena 1 090 000 zł
- Charakterystyka mieszkania 114.4 m2, 5 pokoi, do wykończenia
- Budynek rok budowy: 2025
- Media Ogrzewanie: piec dwufunkcyjny; Woda: jest; Kanalizacja: tak; Prąd: jest; Gaz: jest
- Bezpieczeństwo ogrodzenie działki: ogrodzona
- Balkon Barierka
- Dojazd droga utwardzona
- Działka Zagospodarowana, lekko nachylona, prostokąt
- Garaż miejsce postojowe
- Ilość sypialni 4
- Instalacje nowe
- Material konstrukcyjny pustak ceramiczny
- Okna PCV 3 szyby, ciepły montaż
- Otoczenie zabudowa jednorodzinna
- Pokrycie dachu dachówka ceramiczna
- Pozwolenie na użytkowanie W trakcie uzyskiwania
- Rodzaj domu wolnostojący
- Taras taras
Lokalizacja
- Adres małopolskie, krakowski, Zabierzów
Opis nieruchomości
OSTATNI WOLNY DOM!!!
0% PROWIZJI OD KUPUJĄCEGO!!!
Brak podatku PCC
0% PROWIZJI OD KUPUJĄCEGO!!!
Brak podatku PCC
Do sprzedania dom wolnostojący w miejscowości Rudawa, gm. Zabierzów zlokalizowany wśród domów jednorodzinnych. Dom o pow. po podłodze 114,4 m2, pow. użytkowa 102,8m2, na działce o pow. około 6,55 ara. Budynek zbudowany według projektu " Dom w Malinówkach 2 " - firmy ARCHON.
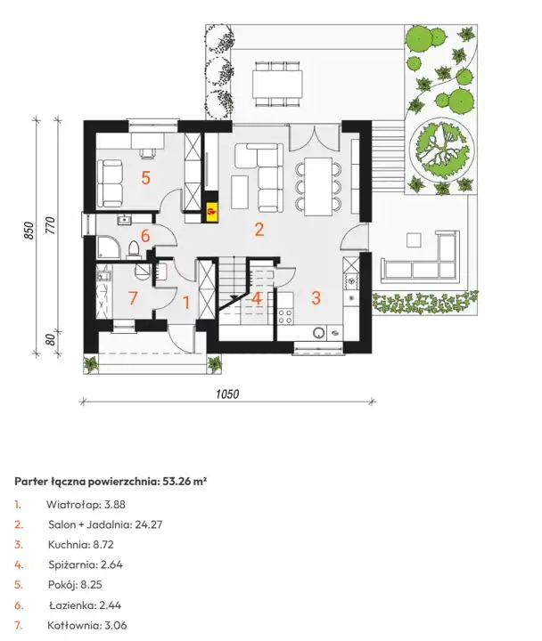
Rozkład pomieszczeń:
Parter: wiatrołap (3,88m2), salon + jadalnia (24,27 m2), kuchnia (8,72m2), spiżarnia (2,64m2), pokój (8,25m2), łazienka (2,44m2), kotłownia (3,06m2)
Poddasze: hol + schody (11,18m2), pralnia (9,47m2), pokój (10,77m2), pokój (11,46m2), łazienka (6,62m2),
Dom sprzedawany w stanie deweloperskim obejmującym:
Rozkład pomieszczeń:
Parter: wiatrołap (3,88m2), salon + jadalnia (24,27 m2), kuchnia (8,72m2), spiżarnia (2,64m2), pokój (8,25m2), łazienka (2,44m2), kotłownia (3,06m2)
Poddasze: hol + schody (11,18m2), pralnia (9,47m2), pokój (10,77m2), pokój (11,46m2), łazienka (6,62m2),
Dom sprzedawany w stanie deweloperskim obejmującym:
- ławy fundamentowe żelbetowe,
- ściany fundamentowe żelbetowe + izolacja termiczna i izolacja przeciwwilgociowa,
- ściany zewnętrzne z pustaka ceramicznego POROTHERM o gr. 25cm,
- ocieplenie zewnętrzne styropianem o gr. 20cm + tynk cienkowarstwowy (kolor szary, grafit. biały)
- więźba dachowa drewniana,
- strop żelbetowy, monolityczny,
- schody żelbetowe,
- dach kryty płaską dachówka ceramiczną, kolor antracyt,
- podbitka okapów w kolorze obróbki blacharskiej,
- wyłaz dachowy, obróbki blacharskie z blachy aluminiowej,
- okna dachowe drewniane, trzyszybowe,
- dach ocieplony wełną mineralną o gr. 30cm,
- rynny stalowe,
- ściany wewnętrzne działowe z pustaka ceramicznego o gr. 11,5cm
- okna PVC trzyszybowe, kolor zewnętrzny antracyt, od wewnątrz biały
- drzwi wejściowe drewniane, wysokiej klasy
- parapety zewnętrzne metalowe, kolor grafitowy,
- parapety wewnętrzne - KONGLOMERAT (brak w kuchni i łazience),
- tynki wewnętrzne gipsowe,
- na poddaszu (sufity i skosy) płyty gipsowo-kartonowe na metalowym ruszcie,
- wylewki cementowe na warstwie styropianu i folii polietylenowej
- ocieplenie płyty na parterze styropianem o gr. 15cm,
- podłoga na strychu wykończona płytami OSB,
- drewniany, składany właz na strych,
- instalacja elektryczna wewnętrzna, zamontowane gniazdka i wyłączniki,
- instalacja elektryczna zewnętrzna, wykonane obwody z możliwością podłączenia oświetlenia zewn., zamontowane wyłączniki i gniazdka,
- instalacja alarmowa z pełnym podłączonym wyposażeniem (czujniki, centrala, szyfratory, syrena itp) z możliwością powiadamiania na komórkę właściciela i agencji ochrony,
- rozprowadzona instalacja TV w budynku, doprowadzona do jednego punku centralnego na strychu z każdego pokoju, zamontowane gniazdka,
- instalacja wideofon - doprowadzona do punkt na parterze i poddaszu,
- instalacja internetowa zamontowane gniazdka w budynku, doprowadzona instalacja do jednego punku centralnego (gniazdko internetowe w jednym pokoju na piętrze, w gabinecie i w salonie)
- zamontowana na dachu instalacja odgromowa,
- instalacja wodna i kanalizacyjna,
- instalacja pod fotowoltaikę, przygotowana instalacja pod fotowoltalikę z kotłowni na strych (bez paneli),
- instalacja wentylacji mechanicznej (REKUPERACJA),
- instalacja klimatyzacji - rozprowadzona instalacja pod klimatyzatory (1 szt na parterze, 1 szt na poddaszu)
- instalacja C.O. - piec Viessmann
- ogrzewanie podłogowe w całym domu,
- dodatkowo w łazienkach grzejniki drabinkowe,
- rekuperacja z zamontowanymi urządzeniami
- ogrodzenie z paneli ogrodzeniowych - kolor grafit z podmurówką betonową
- brama do posesji przesuwna lub dwuskrzydłowa, stalowa z pionowym wypełnieniem, z możliwością podłączenia napędu do otwierania elektrycznego pilotem oraz z domofonu
- furtka dopasowana wzorem do bramy przesuwnej, z możliwością otwierania z domofonu,
- dojście do domu i podjazd do garażu wybrukowane kostką brukową,
- droga dojazdowa utwardzona kruszywem.
Nowoczesny dom, zlokalizowany wśród nowych budynków jednorodzinnych, wybudowany z najwyższej klasy materiałów. Dojazd do działki drogą gminną asfaltową, a następnie drogą prywatną (współwłasność). Nieruchomość położona na wzniesieniu, na widokowej działce. Dom znajduje się w spokojnej części miejscowości, wokół luźna zabudowa jednorodzinna oraz liczne tereny niezabudowane. W pobliżu znajdują się liczne tereny rekreacyjne takie jak: Dolina Kobylańska, Dolina Będkowska oraz liczne szlaki rowerowe. Nieruchomość posiada dużą działkę w pełni nasłonecznioną. Idealne miejsce dla osób ceniących sobie ciszę i spokój, z dala od miejskiego zgiełku.
Zakończenie budowy: I kwartał 2026.
Cena 1.090.000 zł brutto. Kupujący nie płaci 2% podatku PCC. Kupujący nie płaci prowizji
Serdecznie polecamy i zachęcamy do bezpłatnej prezentacji !!! Więcej podobnych ofert na naszej stronie www.pacanowscy.pl Kontakt do opiekuna oferty: 500-702-305 Michał Sibiga.
Nota prawna
Opis oferty zawarty na stronie internetowej sporządzany jest na podstawie oględzin nieruchomości oraz informacji uzyskanych od właściciela, może podlegać aktualizacji i nie stanowi oferty określonej w art. 66 i następnych K.C.
Kalkulator kredytowy
Formularz kontaktowy