Dom na sprzedaż













Szczegóły ogłoszenia
- Symbol oferty RLN-DS-9235
- Typ oferty dom na sprzedaż
- Cena 1 449 000 zł
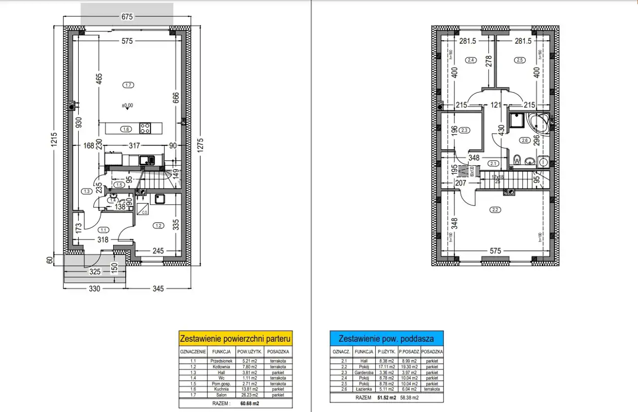
- Charakterystyka mieszkania 112 m2, 4 pokoje, do wykończenia
- Budynek rok budowy: 2025
- Media Ogrzewanie: C.O. GAZOWE; Woda: tak - miejska; Kanalizacja: miejska; Prąd: jest; Gaz: jest
- Bezpieczeństwo ogrodzenie działki: ogrodzona
- Dojazd asfalt
- Działka Zagospodarowana, płaska, prostokąt
- Garaż w budynku
- Ilość sypialni 3
- Instalacje KLIMATYZACJA
- Material konstrukcyjny bloczki betonowe
- Okna PCV 3 szyby, ciepły montaż
- Otoczenie las
- Pozwolenie na użytkowanie W trakcie uzyskiwania
- Rodzaj domu wolnostojący
- Taras taras
Lokalizacja
- Adres małopolskie, Zabierzów, Szczyglice
Opis nieruchomości
Wyjątkowy dom wolnostojący przy ul. Balickiej – granica Rząski i Szczyglic
Przedsprzedaż.
Szukasz komfortowego, energooszczędnego domu w spokojnej okolicy, tuż przy granicy Krakowa? Ta oferta jest dla Ciebie. Przedstawiamy nowoczesny dom jednorodzinny w prestiżowej lokalizacji – Szczyglice/Rząska, gmina Zabierzów.
Lokalizacja:
-
Zaledwie 15 minut do centrum Krakowa
-
Blisko autostrady A4 i stacji kolejowej P&R Mydlniki
-
W sąsiedztwie Lasu Wolskiego i Dolinek Krakowskich
-
Pełna infrastruktura: sklepy, szkoły, przedszkola, przystanek autobusowy
Dom o powierzchni 112,40 m² – projekt „Eskulap 2”
-
Salon, 3 sypialnie, garderoba, łazienka, WC, kotłownia, wiatrołap
-
Użytkowe poddasze, klasyczna bryła z dwuspadowym dachem
-
Elegancka elewacja i funkcjonalny układ pomieszczeń
Wyposażenie i udogodnienia:
-
Rekuperacja z urządzeniem
-
Instalacja pod klimatyzację
-
Ogrzewanie podłogowe w całym domu (piec Valiant w cenie)
-
Fotowoltaika – panele w cenie
-
Rolety elektryczne sterowane pilotem (parter) i przyciskami (piętro)
-
Okna 3-szybowe z systemem przesuwnym
-
Instalacja alarmowa, ogrodzenie, brama wjazdowa
-
Parapety kamienne (wewnętrzne) i aluminiowe (zewnętrzne)
-
Zbiornik na deszczówkę 5000 l
-
Tynki cementowo-wapienne
-
Wybrukowany front działki
Parametry techniczne:
-
Ocieplenie styropianem grafitowym 25 cm
Termin realizacji:
-
Budowa od 2025, przeniesienie własności do połowy 2026
-
Komplet mediów i kanalizacja
-
Cena brutto – brak podatku PCC 2%
Finansowanie:
-
Pomoc doświadczonego doradcy kredytowego– wszystkie banki w jednym miejscu
Kontakt: Biuro sprzedaży RealDom tel/SMS/WhatsApp: 600 160 666
To nie jest osiedle – to Twój własny, wyjątkowy dom. Zapraszamy na prezentację.