Mieszkanie na sprzedaż
790 000 zł
82 m2









1 / 9
Szczegóły ogłoszenia
- Symbol oferty DNX-MS-30713
- Typ oferty mieszkanie na sprzedaż
- Cena 790 000 zł
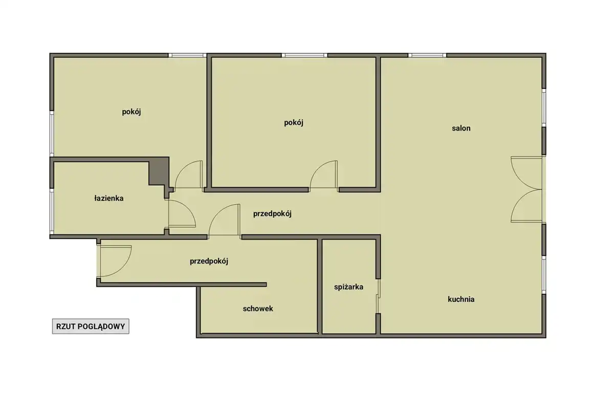
- Charakterystyka mieszkania 81.88 m2, 3 pokoje
- Budynek rok budowy: 2022
- Rozkład mieszkania parter piętro
- Media Ogrzewanie: C.O. GAZOWE; Woda: ciepła - piecyk gazowy; Gaz: jest
- Instalacje nowe
- Okna PCV
- Stan lokalu deweloperski
Lokalizacja
- Adres małopolskie, Zabierzów, Rząska
Opis nieruchomości
MIESZKANIE 3 POKOJOWE O POWIERZCHNI 81,88 M2 ZNAJDUJĄCE SIĘ W MIEJSCOWOŚCI RZĄSKA
ZAKUP BEZ PODATKU PCC
ZAKUP BEZ PODATKU PCC
MIESZKANIE
Funkcjonalne 3 pokojowe mieszkanie o powierzchni 81,88 mkw., położone na parterze w bliźniaku czterolokalowym. Ogrzewanie podłogowe w kuchni, łazience oraz korytarzu. Tynki cementowo-wapienne. Na dachu dachówka firmy EURONIT. Okna PCV 3 szybowe. Ocieplenie budynku styropianem o grubości 15 cm.
Cena nie obejmuje grzejników oraz pieca gazowego.
Do mieszkania przynależy około 1,5 a ogrodu oraz jedno miejsce postojowe.
MIESZKANIE BEZCZYNSZOWE !
Media: Gaz, prąd, kanalizacja i woda gminna.
Mieszkanie składa się z:
- salonu z aneksem kuchennym,
- spiżarni,
- 2 pokoi,
- łazienki,
- przedpokoju,
- korytarza,
- schowek pod schodami.
LOKALIZACJA
Mieszkanie znajduję się w cichej oraz spokojnej okolicy. W bliskiej odległości przystanek autobusowy, z którego odjeżdżają autobusy 238, 258 oraz 948. Szybki dostęp do obwodnicy i autostrady A4. W pobliżu szkoła podstawowa, sklep spożywczy oraz kościół.
W bliskiej odległości Galeria Bronowice, Ikea, KFC, Futura Park, Castorama, OBI, Leroy Merlin itd..
LOKALIZACJA
Mieszkanie znajduję się w cichej oraz spokojnej okolicy. W bliskiej odległości przystanek autobusowy, z którego odjeżdżają autobusy 238, 258 oraz 948. Szybki dostęp do obwodnicy i autostrady A4. W pobliżu szkoła podstawowa, sklep spożywczy oraz kościół.
W bliskiej odległości Galeria Bronowice, Ikea, KFC, Futura Park, Castorama, OBI, Leroy Merlin itd..
ZACHĘCAM DO KONTAKTU, Z MIŁĄ CHĘCIĄ ODPOWIEM TOBIE NA WSZYSTKIE PYTANIA DOTYCZĄCE TEJ NIERUCHOMOŚCI
Nota prawna
Opis oferty zawarty na stronie internetowej sporządzany jest na podstawie oględzin nieruchomości oraz informacji uzyskanych od właściciela, może podlegać aktualizacji i nie stanowi oferty określonej w art. 66 i następnych K.C.
Kalkulator kredytowy
Formularz kontaktowy