Mieszkanie na sprzedaż
280 000 zł
47 m2















1 / 15
Szczegóły ogłoszenia
- Symbol oferty AFK-MS-2816
- Typ oferty mieszkanie na sprzedaż
- Cena 280 000 zł
- Charakterystyka mieszkania 47.01 m2, 2 pokoje
- Budynek blok
- Rozkład mieszkania 2p piętro
- Media Ogrzewanie: C.O. miejskie; Woda: tak - miejska; Gaz: tak - miejski
- Balkon kratka balkonowa
- Dojazd asfalt
- Okna PCV
- Otoczenie bloki
- Stan lokalu do remontu
- Technologia budowlana cegła
Lokalizacja
- Adres łódzkie, zgierski, Zgierz
Opis nieruchomości
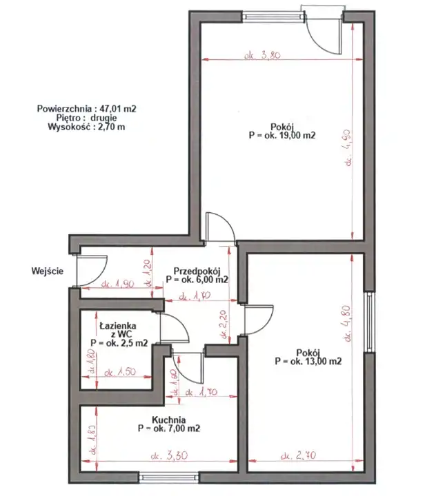
Do sprzedaży dwupokojowy lokal mieszkalny o powierzchni 47,01m2 w Zgierzu. Mieszkanie położone jest na drugim piętrze w bloku, po termomodernizacji.
Lokal składa się z 2 pokoi (o pow. ok.19m2 oraz ok.13m2), przedpokoju (pow. ok.6m2), kuchni (pow. ok.7m2) i łazienki z WC (pow. ok.2,5m2). Wysokość pomieszczeń ok.2,7m.
W dużym pokoju oraz kuchni na podłodze panele, na ścianach gładź gipsowa, malowana. W kuchni na ścianach częściowo glazura. W łazience (razem z WC) na podłodze terakota, na ścianach glazura, kabina prysznicowa, umywalka, WC. W kuchni: kuchnia gazowa, zlewozmywak w zabudowie. Mieszkanie rozkładowe. Okna PCV.
Opłaty do Wspólnoty mieszkaniowej wynoszą: 597,03zł (w tym centralne ogrzewanie 319,67zł), bez zaliczek na ciepłą i zimną wodę oraz śmieci). Koszt 1m3 zimnej wody i ścieki- 19,33zł, podgrzania 1m3- 40,00zł, koszt wywozu śmieci- 12,73zł za każdy 1 m3 zużytej wody. Energia elektryczna i gaz według wskazań liczników.
Mieszkanie słoneczne, ciepłe, z balkonem papieskim.
Media: wszystkie miejskie.
Czas przekazania mieszkania- natychmiast.
Bardzo dobra lokalizacja - w pobliżu przystanki komunikacji miejskiej, przedszkole, przychodnia zdrowia. Dobry dojazd komunikacją miejską do centrum miasta oraz do Łodzi.
DLA KOGO OFERTA:
- dla inwestora, dla pary, dla rodziny.
Zapraszamy do obejrzenia wizyty wirtualnej:
Sygnatura oferty: MS-2816.
Zapraszamy do oglądania!
Uwaga: dane o ofercie mogą odbiegać od stanu faktycznego i prawnego - biuro nie odpowiada za niezgodność danych z rzeczywistością. Oferta może być w danym momencie nieaktualna. Prosimy o telefon.
Lokal składa się z 2 pokoi (o pow. ok.19m2 oraz ok.13m2), przedpokoju (pow. ok.6m2), kuchni (pow. ok.7m2) i łazienki z WC (pow. ok.2,5m2). Wysokość pomieszczeń ok.2,7m.
W dużym pokoju oraz kuchni na podłodze panele, na ścianach gładź gipsowa, malowana. W kuchni na ścianach częściowo glazura. W łazience (razem z WC) na podłodze terakota, na ścianach glazura, kabina prysznicowa, umywalka, WC. W kuchni: kuchnia gazowa, zlewozmywak w zabudowie. Mieszkanie rozkładowe. Okna PCV.
Opłaty do Wspólnoty mieszkaniowej wynoszą: 597,03zł (w tym centralne ogrzewanie 319,67zł), bez zaliczek na ciepłą i zimną wodę oraz śmieci). Koszt 1m3 zimnej wody i ścieki- 19,33zł, podgrzania 1m3- 40,00zł, koszt wywozu śmieci- 12,73zł za każdy 1 m3 zużytej wody. Energia elektryczna i gaz według wskazań liczników.
Mieszkanie słoneczne, ciepłe, z balkonem papieskim.
Media: wszystkie miejskie.
Czas przekazania mieszkania- natychmiast.
Bardzo dobra lokalizacja - w pobliżu przystanki komunikacji miejskiej, przedszkole, przychodnia zdrowia. Dobry dojazd komunikacją miejską do centrum miasta oraz do Łodzi.
DLA KOGO OFERTA:
- dla inwestora, dla pary, dla rodziny.
Zapraszamy do obejrzenia wizyty wirtualnej:
Sygnatura oferty: MS-2816.
Zapraszamy do oglądania!
Uwaga: dane o ofercie mogą odbiegać od stanu faktycznego i prawnego - biuro nie odpowiada za niezgodność danych z rzeczywistością. Oferta może być w danym momencie nieaktualna. Prosimy o telefon.
Nota prawna
Opis oferty zawarty na stronie internetowej sporządzany jest na podstawie oględzin nieruchomości oraz informacji uzyskanych od właściciela, może podlegać aktualizacji i nie stanowi oferty określonej w art. 66 i następnych K.C.
Kalkulator kredytowy
Formularz kontaktowy