Mieszkanie na sprzedaż
310 000 zł
48 m2














1 / 14
Szczegóły ogłoszenia
- Symbol oferty AFK-MS-2829
- Typ oferty mieszkanie na sprzedaż
- Cena 310 000 zł
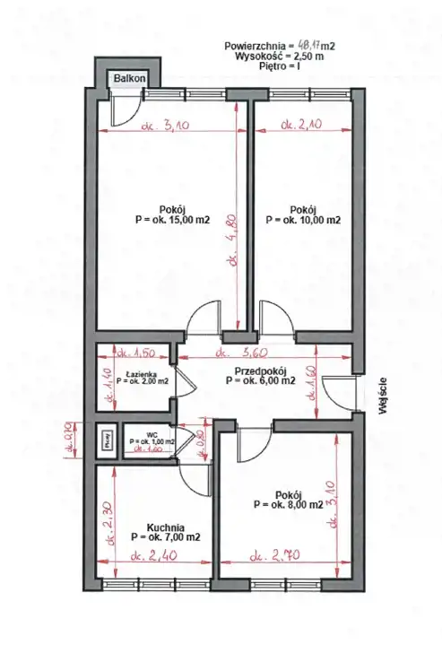
- Charakterystyka mieszkania 48.17 m2, 3 pokoje
- Budynek blok
- Rozkład mieszkania 1p piętro
- Stan lokalu do remontu
Lokalizacja
- Adres łódzkie, Zgierz, os. 650-lecia
Opis nieruchomości
Na sprzedaż rozkładowe, 3-pokojowe mieszkanie z balkonem, o powierzchni 48,17 m², położone na pierwszym piętrze, w 4-piętrowym bloku, na dobrze skomunikowanym, popularnym osiedlu 650-lecia w Zgierzu. Lokal z balkonem, w stanie do remontu- idealny do własnej aranżacji.
Mieszkanie dwustronne, jasne, z widokiem na zieleń. Lokal jest w pełni rozkładowy, co zapewnia komfort codziennego użytkowania. W jego skład wchodzą:
Mieszkanie do remontu. Daje to przyszłemu właścicielowi szerokie możliwości aranżacji wnętrza według własnego projektu i potrzeb.
Budynek znajduje się w spokojnej części osiedla, z łatwym dostępem do licznych punktów usługowych, sklepów, szkół oraz przystanków komunikacji miejskiej. Ogólnodostępny parking przed blokiem. Okolica zielona i przyjazna dla rodzin.
To propozycja idealna zarówno dla osób szukających mieszkania do własnej adaptacji, jak i inwestorów.
Zapraszamy do obejrzenia wizyty wirtualnej: kliknij TUTAJ
Sygnatura oferty: MS-2829.
Zapraszamy do oglądania!
Uwaga: dane o ofercie mogą odbiegać od stanu faktycznego i prawnego - biuro nie odpowiada za niezgodność danych z rzeczywistością.
Oferta może być w danym momencie nieaktualna. Prosimy o telefon.
Mieszkanie dwustronne, jasne, z widokiem na zieleń. Lokal jest w pełni rozkładowy, co zapewnia komfort codziennego użytkowania. W jego skład wchodzą:
- trzy ustawne pokoje,
- oddzielna kuchnia,
- łazienka
- WC (oddzienie),
- przedpokój,
- balkon z widokiem na zieleń.
Mieszkanie do remontu. Daje to przyszłemu właścicielowi szerokie możliwości aranżacji wnętrza według własnego projektu i potrzeb.
Budynek znajduje się w spokojnej części osiedla, z łatwym dostępem do licznych punktów usługowych, sklepów, szkół oraz przystanków komunikacji miejskiej. Ogólnodostępny parking przed blokiem. Okolica zielona i przyjazna dla rodzin.
To propozycja idealna zarówno dla osób szukających mieszkania do własnej adaptacji, jak i inwestorów.
Zapraszamy do obejrzenia wizyty wirtualnej: kliknij TUTAJ
Sygnatura oferty: MS-2829.
Zapraszamy do oglądania!
Uwaga: dane o ofercie mogą odbiegać od stanu faktycznego i prawnego - biuro nie odpowiada za niezgodność danych z rzeczywistością.
Oferta może być w danym momencie nieaktualna. Prosimy o telefon.
Nota prawna
Opis oferty zawarty na stronie internetowej sporządzany jest na podstawie oględzin nieruchomości oraz informacji uzyskanych od właściciela, może podlegać aktualizacji i nie stanowi oferty określonej w art. 66 i następnych K.C.
Kalkulator kredytowy
Formularz kontaktowy