Dom na sprzedaż
















Szczegóły ogłoszenia
- Symbol oferty BLU-DS-6986
- Typ oferty dom na sprzedaż
- Cena 669 000 zł
- Charakterystyka mieszkania 80.5 m2, 3 pokoje, do wykończenia
- Działka płaska, prostokąt
- Garaż brak
- Ilość sypialni 2
- Instalacje nowe
- Material konstrukcyjny bloczki betonowe
- Okna PCV
- Pokrycie dachu blacha
- Taras taras
Lokalizacja
- Adres kujawsko-pomorskie, Zławieś Wielka, Górsk
Opis nieruchomości
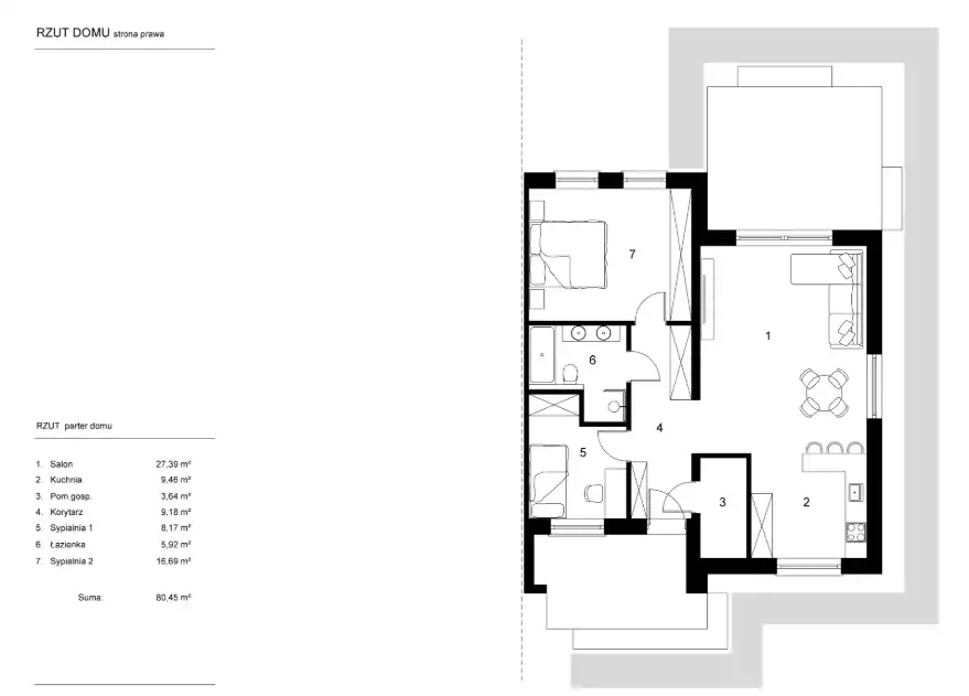
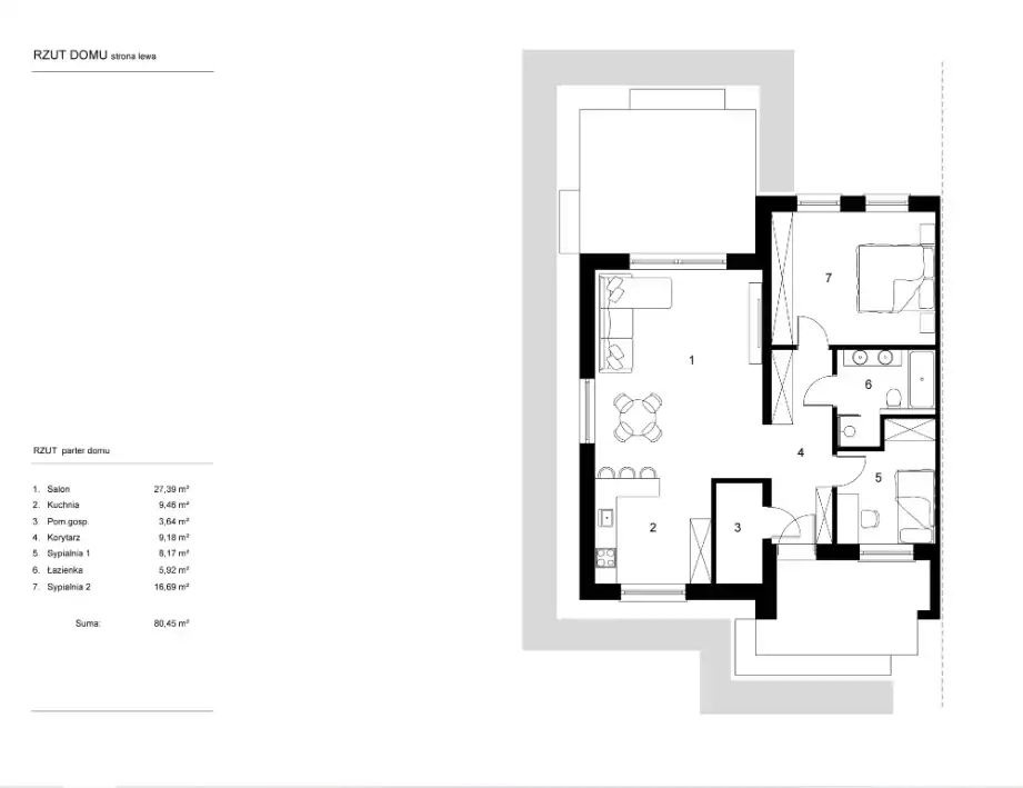
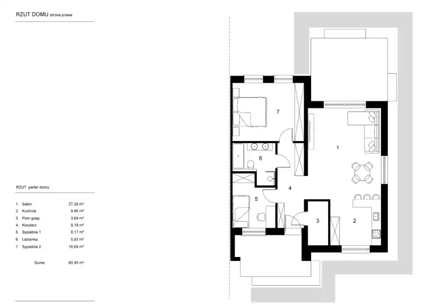
3 POKOJE | PARTEROWY | BLIŹNIAK | GÓRSK | 80,50 m² | DZIAŁKA 500 m² | STAN DEWELOPERSKI | 669 000 ZŁ
Biuro pośrednictwa w nieruchomościach Blue-Home prezentuje ofertę sprzedaży 3-POKOJOWEGO, PARTEROWEGO DOMU W ZABUDOWIE BLIŹNIACZEJ – PRAWA LUB LEWA STRONA – o pow. 80,50 m², zlokalizowanego w podtoruńskiej miejscowości Górsk
Oferowane domy stanowią nową inwestycję, w ramach której powstaną 4 budynki w zabudowie bliźniaczej oraz jeden dom wolnostojący
Dom sprzedawany w STANIE DEWELOPERSKIM, idealny do aranżacji według własnych potrzeb
Budynek posadowiony na działce o pow. ok. 500 m²
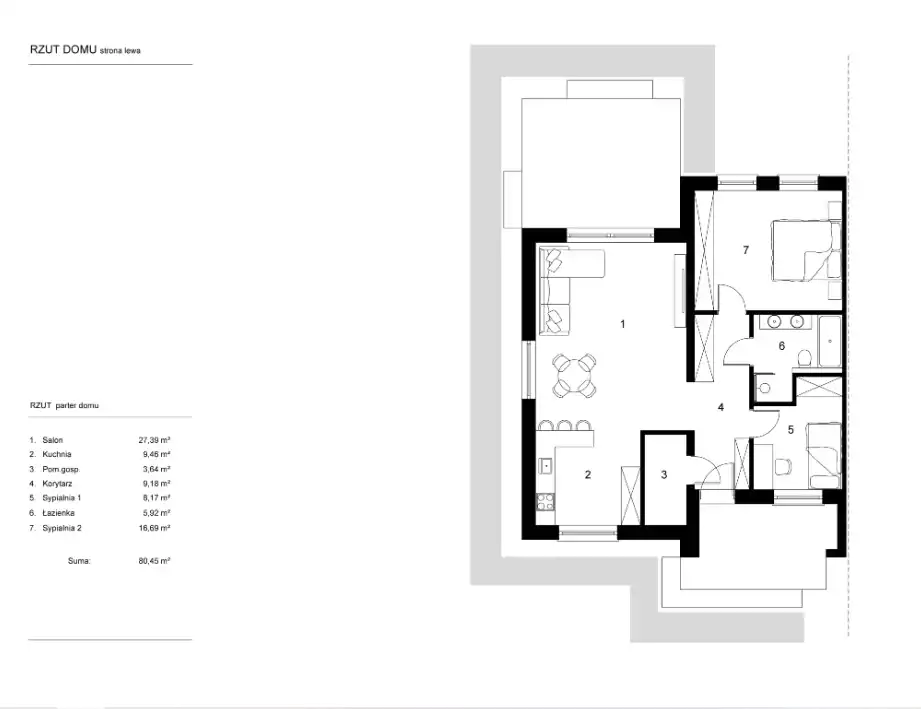
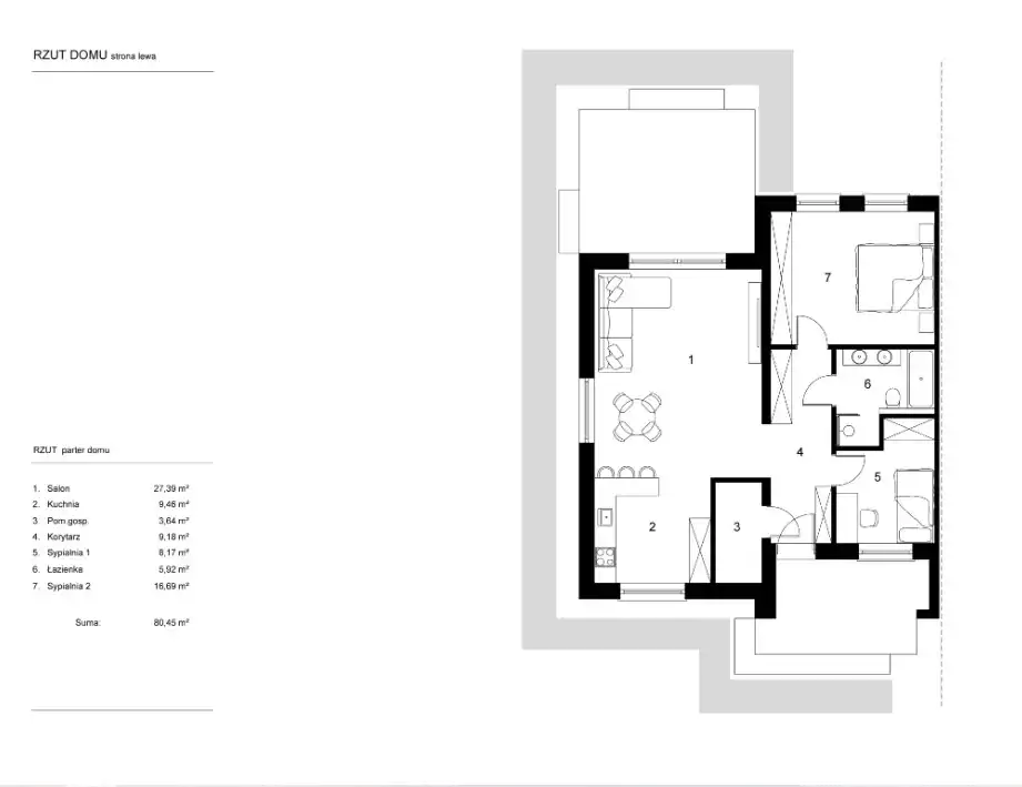
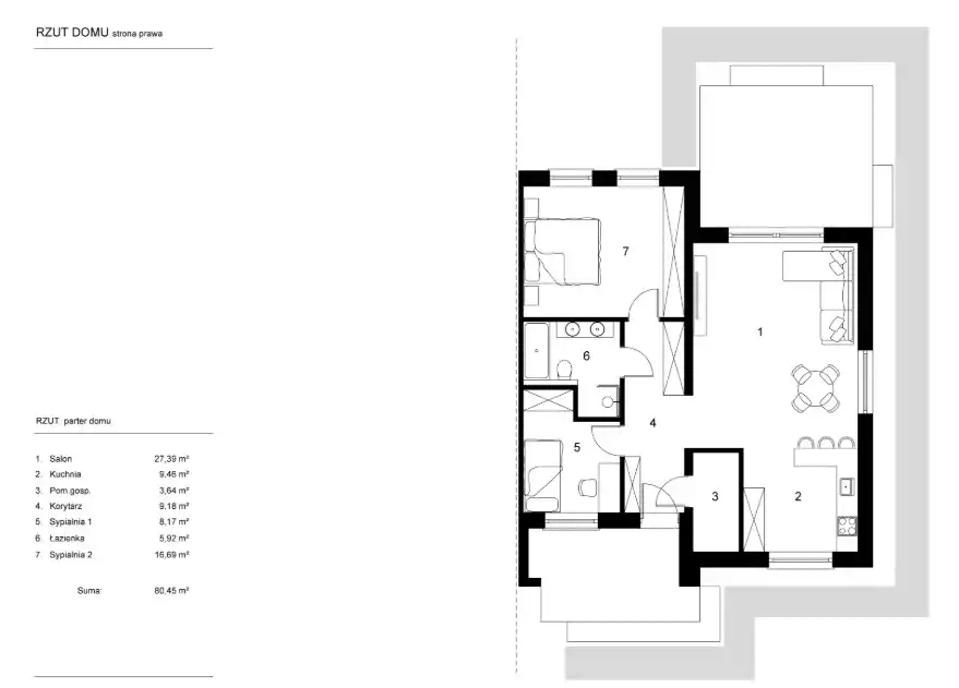
ROZKŁAD POMIESZCZEŃ:
– salon z jadalnią 27,39 m² z wyjściem na taras
– otwarta kuchnia 9,46 m²
– sypialnia 16,69 m²
– sypialnia 8,17 m²
– łazienka 5,92 m²
– korytarz 9,18 m²
– pomieszczenie gospodarcze 3,64 m²
DZIAŁKA:
– powierzchnia ok. 500 m²
– możliwość aranżacji ogrodu i tarasu
STANDARD WYKOŃCZENIA – STAN DEWELOPERSKI:
– pompa ciepła
– ogrzewanie podłogowe w całym budynku
– instalacja elektryczna
– instalacja wodno-kanalizacyjna
– tynki wewnętrzne
– parapety
– okna PCV trzyszybowe
– drzwi wejściowe ANTYWŁAMANIOWE
– elewacja – tynk cienkowarstwowy
Czynsz administracyjny – brak
LOKALIZACJA – GÓRSK:
– spokojna, kameralna okolica
– bezpośrednie sąsiedztwo terenów leśnych
– idealne miejsce dla osób szukających ciszy i prywatności
– szybki dojazd do Torunia 🚗
– doskonała alternatywa dla mieszkania w mieście
Cena: 669 000 zł
Termin rozpoczęcia prac budowlanych – IV kwartał 2025 roku
Usługa pośrednictwa jest płatna
Zapewniamy kompleksową pomoc w procesie kredytowania
Karol – 883 900 224
Blue-Home Nieruchomości
Szosa Chełmińska 175A/6
87-100 Toruń
właściciel: Agnieszka Płachta
NIP: 879-185-37-94