Dom na sprzedaż
2 650 000 zł
207 m2














1 / 14
Szczegóły ogłoszenia
- Symbol oferty SOL-DS-146789
- Typ oferty dom na sprzedaż
- Cena 2 650 000 zł
- Charakterystyka mieszkania 207 m2, 6 pokoi, do zamieszkania
- Budynek rok budowy: 1965
- Media Ogrzewanie: C.O. GAZOWE; Woda: tak - miejska; Kanalizacja: miejska; Prąd: jest; Gaz: jest
- Bezpieczeństwo ogrodzenie działki: mieszane
- Balkon jest
- Działka płaska, prostokąt
- Garaż jest
- Ilość sypialni 4
- Instalacje dobre
- Material konstrukcyjny cegła
- Okna PCV
- Podpiwniczenie Tak
- Pokrycie dachu blachodachówka
- Rodzaj domu bliźniak
- Stan prawny Własność
Lokalizacja
- Adres mazowieckie, Warszawa, Wawer
Opis nieruchomości
Do sprzedaży bliźniak o pow. 270 m 2. Położony na działce o pow. ok. 700 m 2.
Dom odnowiony i odświeżony, do zamieszkania.
Dom cichy, ogród kameralny, cichy, sąsiedztwo:
-Dwie prywatne posesje, oraz biblioteka która w weekend jest nieczynna.
Dodatkowe atuty nieruchomości:
-Nowy piec gazowy.
-Ogrzewana podłoga w salonie.
-Nowa rozdzielnia elektryczna
-Nowe rozprowadzenie instalacji wodnej.
-Całe podpiwniczenie jasne, wszystkie pomieszczenia maja okna.
Dom posiada 3 kondygnacje
1) Podpiwniczenie o pow. 72,62 m 2.
Znajdują się tam:
4 pomieszczenia i wymiarach 17, 36 m 2 11, 55 m 2, 16,96 m 2, 18, 52 m 2 4,41 m 2 6,86 m 2 klatka schodowa o pow. 6,96 m 2
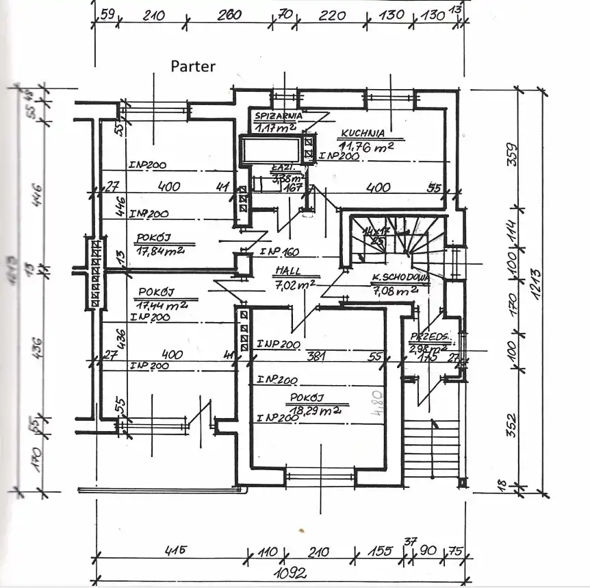
2) Parter o pow. ok 86 m 2
Na parterze rozmieszczone są:
-Pokój 18,29 m 2
-Pokój 17, 44 m 2
-Pokój 17,84 m 2
-Kuchnia 11,79 m 2
-Łazienka 3,38 m 2
-Hall 7,02 m 2
-Klatka schodowa z przedsionkiem o pow. 10,06 m 2
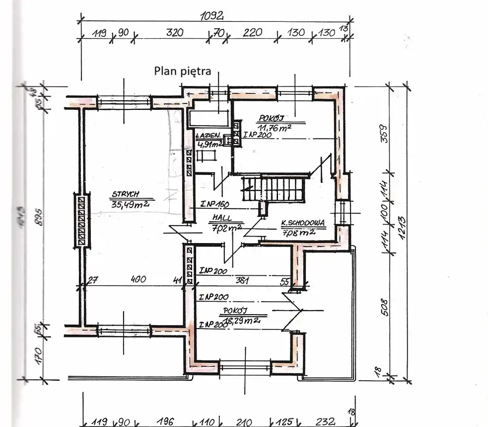
3) Piętro o pow. 49,06 m 2
Rozmieszczone pomieszczenia na piętrze:
-Pokój 18, 29 m 2
-Pokój 11,76 m 2
-Łazienka 4,91
-Hall 7,02 m 2
-Klatka schodowa 7,08 m 2
Na posesji znajduje się wolnostojący garaż z miejscem na dwa samochody.
8 minut do stacji SKM Anin
Blisko do szkoły podstawowej, szkoły średniej.
W bliskim otoczeniu bogata dobrze rozwinięta infrastruktura:
-Sklepy, przychodnie lekarskie, kluby sportowe, restauracje.
Dom odnowiony i odświeżony, do zamieszkania.
Dom cichy, ogród kameralny, cichy, sąsiedztwo:
-Dwie prywatne posesje, oraz biblioteka która w weekend jest nieczynna.
Dodatkowe atuty nieruchomości:
-Nowy piec gazowy.
-Ogrzewana podłoga w salonie.
-Nowa rozdzielnia elektryczna
-Nowe rozprowadzenie instalacji wodnej.
-Całe podpiwniczenie jasne, wszystkie pomieszczenia maja okna.
Dom posiada 3 kondygnacje
1) Podpiwniczenie o pow. 72,62 m 2.
Znajdują się tam:
4 pomieszczenia i wymiarach 17, 36 m 2 11, 55 m 2, 16,96 m 2, 18, 52 m 2 4,41 m 2 6,86 m 2 klatka schodowa o pow. 6,96 m 2
2) Parter o pow. ok 86 m 2
Na parterze rozmieszczone są:
-Pokój 18,29 m 2
-Pokój 17, 44 m 2
-Pokój 17,84 m 2
-Kuchnia 11,79 m 2
-Łazienka 3,38 m 2
-Hall 7,02 m 2
-Klatka schodowa z przedsionkiem o pow. 10,06 m 2
3) Piętro o pow. 49,06 m 2
Rozmieszczone pomieszczenia na piętrze:
-Pokój 18, 29 m 2
-Pokój 11,76 m 2
-Łazienka 4,91
-Hall 7,02 m 2
-Klatka schodowa 7,08 m 2
Na posesji znajduje się wolnostojący garaż z miejscem na dwa samochody.
8 minut do stacji SKM Anin
Blisko do szkoły podstawowej, szkoły średniej.
W bliskim otoczeniu bogata dobrze rozwinięta infrastruktura:
-Sklepy, przychodnie lekarskie, kluby sportowe, restauracje.
Nota prawna
Opis oferty zawarty na stronie internetowej sporządzany jest na podstawie oględzin nieruchomości oraz informacji uzyskanych od właściciela, może podlegać aktualizacji i nie stanowi oferty określonej w art. 66 i następnych K.C.
Kalkulator kredytowy
Formularz kontaktowy