Dom na sprzedaż
2 890 000 zł
236 m2








1 / 8
Szczegóły ogłoszenia
- Symbol oferty BRZ-DS-163609
- Typ oferty dom na sprzedaż
- Cena 2 890 000 zł
- Charakterystyka mieszkania 236 m2, 6 pokoi, do zamieszkania
- Budynek rok budowy: 1998
- Media Woda: ciepła - miejska; Kanalizacja: miejska; Prąd: jest; Gaz: jest
- Garaż miejsce postojowe
- Material konstrukcyjny cegła
- Okna PCV
- Rodzaj domu bliźniak
- Stan prawny Własność
Lokalizacja
- Adres mazowieckie, Warszawa, Praga-Południe
Opis nieruchomości
Ul. ALZACKA /ZŁOCZOWSKA / BRUKSELSKA.
Dom w zabudowie szeregowej o całkowitej powierzchni 236 m2, /4 kondygnacje/ na Saskiej Kępie, z 1998 r., na działce o pow. 249 m2.
Budynek jest zlokalizowany przy cichej, klimatycznej uliczce w pobliżu ulicy Alzackiej / Brukselskiej.
Pod inwestycję.
Wynajęty na czas nieokreślony z 3-miesięcznym okresem wypowiedzenia.
Dom jest podzielony na 6 jednostek, które są wynajęte, dodatkowo piwnica.
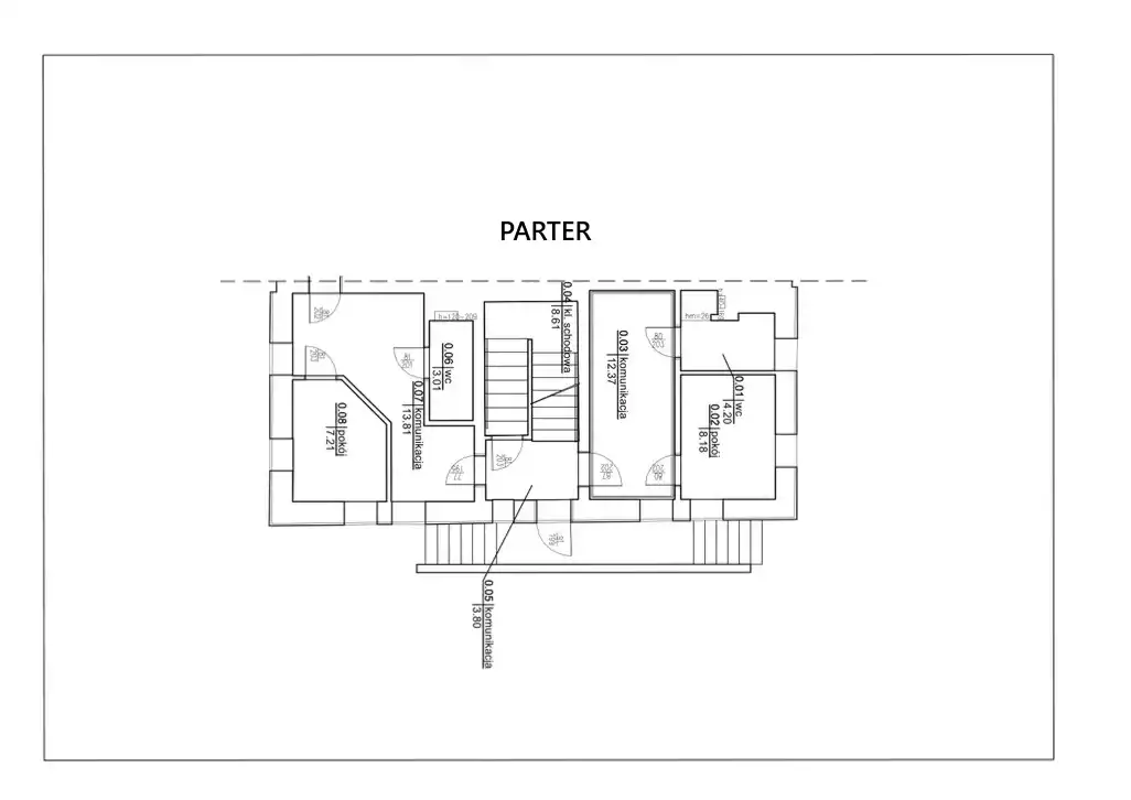
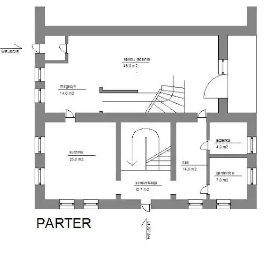
PARTER (48,78 m2): dwa niezależne wejścia, podzielony na dwie części (24,03 m2, 24,75 m2), pierwsza część - pokój, komunikacja, WC, druga część - pokój, komunikacja, WC.
PIĘTRO (63,79 m2): klatka schodowa, dwie części (24,47 m2, 25,11 m2): pierwsza - pokój, WC, druga część - pokój, WC.
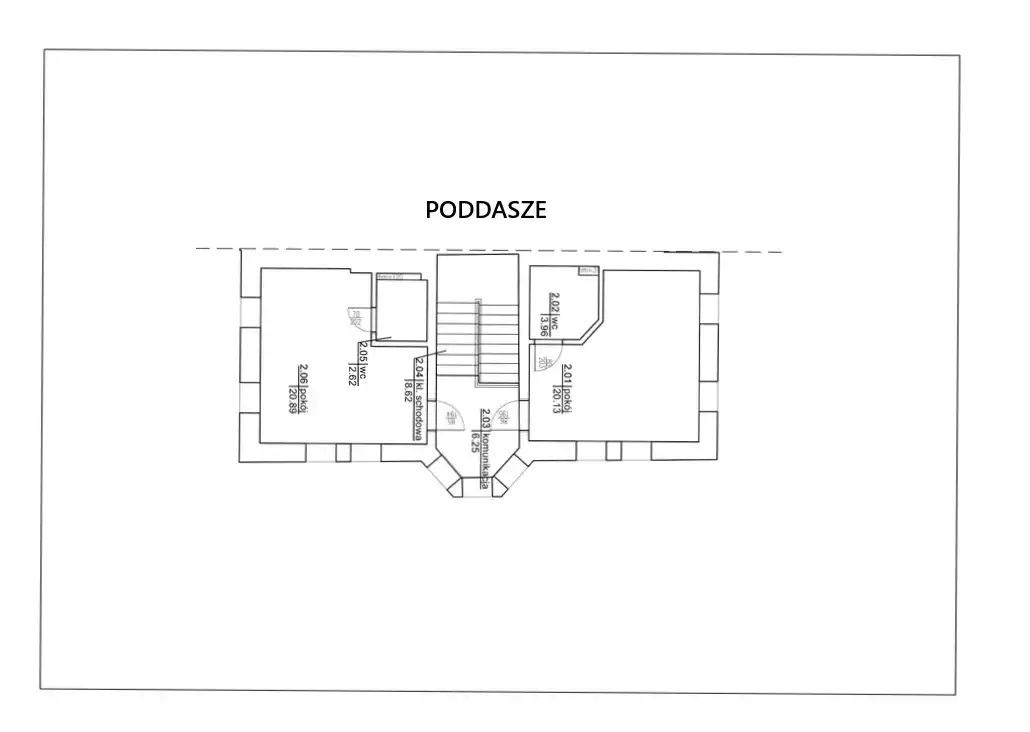
PODDASZE (62,47 m2): klatka schodowa, dwie części (23,51 m2, 24,09 m2): pierwsza - pokój, WC, druga - pokój WC.
PIWNICA (61,11 m2): dwa pomieszczenia (24,75 m2, 20,13 m2 m2), WC, klatka schodowa, komunikacja.
Działka stanowi przedmiot własności.
Dom w zabudowie szeregowej o całkowitej powierzchni 236 m2, /4 kondygnacje/ na Saskiej Kępie, z 1998 r., na działce o pow. 249 m2.
Budynek jest zlokalizowany przy cichej, klimatycznej uliczce w pobliżu ulicy Alzackiej / Brukselskiej.
Pod inwestycję.
Wynajęty na czas nieokreślony z 3-miesięcznym okresem wypowiedzenia.
Dom jest podzielony na 6 jednostek, które są wynajęte, dodatkowo piwnica.
PARTER (48,78 m2): dwa niezależne wejścia, podzielony na dwie części (24,03 m2, 24,75 m2), pierwsza część - pokój, komunikacja, WC, druga część - pokój, komunikacja, WC.
PIĘTRO (63,79 m2): klatka schodowa, dwie części (24,47 m2, 25,11 m2): pierwsza - pokój, WC, druga część - pokój, WC.
PODDASZE (62,47 m2): klatka schodowa, dwie części (23,51 m2, 24,09 m2): pierwsza - pokój, WC, druga - pokój WC.
PIWNICA (61,11 m2): dwa pomieszczenia (24,75 m2, 20,13 m2 m2), WC, klatka schodowa, komunikacja.
Działka stanowi przedmiot własności.
W budynku jest ogrzewanie gazowe.
Miejsca parkingowe na terenie nieruchomości.
Nota prawna
Opis oferty zawarty na stronie internetowej sporządzany jest na podstawie oględzin nieruchomości oraz informacji uzyskanych od właściciela, może podlegać aktualizacji i nie stanowi oferty określonej w art. 66 i następnych K.C.
Kalkulator kredytowy
Formularz kontaktowy